Rapport d'enquête aéronautique A05F0047

Perte de la gouverne de direction en vol
de l'Airbus A310-308 C-GPAT
exploité par Air Transat
à 90 nm au sud de Miami en Floride 

Le Bureau de la sécurité des transports du Canada (BST) a enquêté sur cet événement dans le but de promouvoir la sécurité des transports. Le Bureau n’est pas habilité à attribuer ni à déterminer les responsabilités civiles ou pénales. Le présent rapport n’est pas créé pour être utilisé dans le contexte d’une procédure judiciaire, disciplinaire ou autre. Voir Propriété et utilisation du contenu. Les pronoms et les titres de poste masculins peuvent être utilisés pour désigner tous les genres afin de respecter la Loi sur le Bureau canadien d’enquête sur les accidents de transport et de la sécurité des transports (L.C. 1989, ch. 3).

Table des matières

    Résumé

    À 6 h 45, temps universel coordonné (UTC), un Airbus 310-308 exploité par Air Transat et assurant le vol 961 (TSC961) quitte Varadero à Cuba à destination de Québec (Québec) avec à son bord 9 membres d'équipage et 262 passagers. Vers 7 h 2 UTC, alors que l'appareil est en vol en palier au niveau de vol (FL) 350 à 90 milles marins (nm) au sud de Miami en Floride aux États-Unis, l'équipage de conduite entend une forte détonation accompagnée de vibrations. Un roulis hollandais apparaît, et le commandant de bord débraye le pilote automatique afin de piloter l'appareil en manuel. Pendant que le commandant de bord essaie de mettre fin au roulis hollandais, l'appareil grimpe d'environ 1000 pieds. L'équipage amorce alors une descente pour revenir au FL350, puis demande à poursuivre la descente et envisage la possibilité de se dérouter vers Fort Lauderdale en Floride. Pendant la descente, l'intensité du roulis hollandais s'atténue pour s'arrêter complètement alors que l'appareil franchit le FL280 en descente. Aucune situation d'urgence n'est déclarée. Lorsque l'appareil se trouve par le travers de Miami, l'équipage décide de retourner à Varadero.

    Pendant l'arrondi, les sollicitations de la commande de direction ne permettent pas de corriger le léger vol en crabe adopté par l'appareil. L'avion atterrit sans autre incident puis rejoint son poste de stationnement. Une fois les moteurs arrêtés, l'équipage constate l'absence de la gouverne de direction. Seules de petites parties de gouverne sont restées fixées à la dérive. Au cours de l'incident, un agent de bord a subi des blessures légères au dos.

    1.0 Renseignements de base

    1.1 Déroulement du vol

    C'est le commandant de bord qui a effectué l'inspection prévol avant le départ de Varadero; aucun dommage n'a alors été relevé sur la gouverne de direction. L'inspection s'est déroulée de nuit; le projecteur d'empennage était allumé, et le pilote a procédé à l'inspection avec une lampe torche. Il s'est avéré difficile d'observer la gouverne de direction dans son ensemble, notamment la partie inférieure qui était partiellement obstruée par les gouvernes de profondeur. Pour vérifier cette partie inférieure, le pilote doit reculer, ce qui réduit la précision de son observation.

    L'équipage a embrayé le pilote automatique no 2 au départ de Varadero. Le vol s'est déroulé normalement jusqu'à ce que l'appareil atteigne le niveau de vol (FL)Note de bas de page 1 350, son altitude assignée. Vers 7 h 2, temps universel coordonné (UTC)Note de bas de page 2, l'équipage de conduite a entendu une forte détonation, immédiatement suivie par des vibrations qui ont duré plusieurs secondes. Les membres d'équipage qui se trouvaient à l'arrière de l'appareil ont été projetés au sol et des chariots d'office non arrimés se sont déplacés. Un roulis hollandaisNote de bas de page 3 est apparu; le commandant de bord a repris les commandes, puis a débrayé le pilote automatique. L'avion était difficile à contrôler sur l'axe transversal. Dans l'espoir de mieux gérer la charge de travail dans le poste de pilotage, le pilote automatique no 1 a été embrayé. Alors que le mouvement de roulis hollandais commençait à s'intensifier, le pilote automatique no 1 a été débrayé, et l'avion a été piloté en manuel.

    Durant l'exécution de ces actions, l'appareil est monté jusqu'au FL359. L'équipage de conduite a demandé l'autorisation d'amorcer une descente et a informé le contrôle de la circulation aérienne (ATC) qu'il avait eu un problème avec le pilote automatique et qu'il était passé au pilotage manuel. Lors de la descente, l'équipage a examiné les pages du moniteur électronique centralisé de bord (ECAM) dans l'espoir de diagnostiquer l'anomalie. Lors de l'incident, l'ECAM n'a généré aucun message en rapport avec le problème de contrôle de l'avion, et aucun voyant lumineux ni indication dans le poste de pilotage n'ont signalé un défaut de fonctionnement de l'avion. Même s'il ne possédait que peu d'indices concernant l'origine du roulis hollandais, l'équipage savait que le fait de réduire l'altitude pourrait atténuer, voire arrêter, les mouvements de roulis. Les indications initiales auraient pu laisser supposer que les deux amortisseurs de lacet étaient défaillants, mais les deux interrupteurs d'amortisseur de lacet étaient en position de marche. Si une double défaillance des amortisseurs de lacet s'était produite, le calculateur du système d'alarme de pilotage aurait déclenché des avertissements et des messages en conséquence, et le pilote automatique se serait débrayé.

    Le roulis hollandais a diminué progressivement pendant la descente pour cesser complètement une fois le FL280 franchi. L'équipage a poursuivi la descente jusqu'à 10 000 pieds au-dessus du niveau de la mer (asl) en vue d'un atterrissage à Fort Lauderdale. Le commandant de bord a délégué la conduite du vol au copilote et a appelé le directeur de vol pour lui faire l'exposé normalisé destiné à l'équipage de cabine en cas de situation anormale ou d'urgence.

    L'équipage a contacté le régulateur de la compagnie pour discuter de la situation, puis a décidé de retourner à Varadero où la compagnie était mieux équipée pour prendre en charge l'appareil et les passagers. À 7 h 39, le vol a reçu l'autorisation de monter au FL190 pour rejoindre Varadero.

    Lors de la montée jusqu'au FL190, l'équipage a embrayé le pilote automatique no 1, puis l'a débranché pendant le segment final de l'approche à vue sur la piste 06 de Varadero. Lors de l'arrondi, le pilote s'est servi du dispositif d'orientation du train avant pour conserver la maîtrise en direction de l'appareil sur la piste. L'avion s'est posé sans autre incident à 8 h 19.

    Après l'atterrissage, l'équipage a procédé à la vérification des commandes de vol. L'ECAM n'a rien indiqué d'anormal. L'avion a roulé jusqu'au poste de stationnement où les passagers ont débarqué normalement en empruntant la porte principale. Une fois les moteurs arrêtés, une inspection visuelle a permis de constater l'absence de la plus grande partie de la gouverne de direction.

    1.2 Victimes

    Équipage Passagers Tiers Total
    Tués - - - -
    Blessés graves - - - -
    Blessés légers/Indemnes 9 262 - 271
    Total 9 262 - 271

    1.3 Dommages à l'aéronef

    La gouverne de direction était lourdement endommagée (Photo 1), et les raccords de fixation arrière de la dérive présentaient un délaminage. Le cône de queue présentait des dommages légers.

    Photo 1. Vue de la dérive et des restes de la gouverne de direction - côté droit
    Image
    Photo of Vue de la dérive et des restes de la gouverne de direction - côté droit

    1.4 Renseignements sur le personnel

    Commandant de bord Copilote
    Licence Pilote de ligne Pilote professionnel
    Date d'expiration du certificat de validation 1er septembre 2005 1er juillet 2005
    Heures de vol totales 10 795 11 305
    Heures de vol sur type 450 500
    Heures de vol dans les 90 derniers jours 75 200
    Heures de vol sur type dans les 90 derniers jours 75 200
    Heures en service avant l'atterrissage 4,6 4,6
    Heures libres avant la prise de service 60 60

    1.4.1 Commandant de bord

    Le commandant de bord était titulaire d'une licence de pilote de ligne - avion délivrée au Canada avec annotation pour avions terrestres monomoteurs et multimoteurs, qualifications de type sur Boeing 727, Boeing 737, Boeing 757, Convair 580, Airbus A310, Fokker 100 et Lockheed 1011, et qualification de vol aux instruments du groupe 1 valide jusqu'au 1er septembre 2005.

    Le commandant a commencé à travailler pour la compagnie en qualité de commandant de bord sur Boeing 757 le 18 mars 1996. En 1997, il s'est qualifié comme pilote commandant de bord sur Boeing 737-400 et a volé sur ce type d'appareil pendant environ six mois avant de réintégrer son poste de commandant de bord sur Boeing 757. En 2003, il a entamé sa conversion sur A310 et, sous la supervision d'un instructeur d'Air Transat, a suivi une instruction théorique informatisée au sol sur l'A310. La partie « simulateur » de la formation initiale sur A310 a été dispensée par des instructeurs d'Air Transat dans un centre de formation de Miami en Floride, du 12 au 27 août 2003. L'ensemble de la formation était conforme au programme d'instruction sur A310 de la compagnie.

    Le commandant a réussi le contrôle initial de compétence pilote (CCP) en qualité de commandant de bord sur A310 le 27 août 2003, et a subi sa dernière vérification de compétence en ligne le 17 septembre 2004. Son dernier CCP a eu lieu le 14 décembre 2004. Les dossiers de formation de la compagnie indiquent qu'il a suivi avec succès toutes les formations périodiques requises.

    1.4.2 Copilote

    Le copilote était titulaire d'une licence de pilote professionnel - avion avec annotation pour avions terrestres monomoteurs et multimoteurs, et qualifications de type sur Convair 580, Airbus 310 et Lockheed 1011, et qualification de vol aux instruments du groupe 1 valide jusqu'au 1er écembre 2005.

    Le copilote a commencé à travailler pour la compagnie le 15 février 1988 en tant que mécanicien navigant sur Lockheed 1011, cumulant ainsi 8500 heures de vol. Il a ensuite été qualifié comme copilote sur Lockheed 1011 le 18 juin 2002. En 2004, il a entamé sa conversion sur A310. Il a suivi le cours informatisé sur l'A310 sous la supervision d'un instructeur d'Air Transat. La partie « simulateur » de la formation initiale sur A310 a été dispensée par des instructeurs d'Air Transat dans un centre de formation de Montréal (Québec) du 25 mai au 15 juin 2004. Toutes les formations suivies par le copilote sont conformes au programme de formation sur A310 de la compagnie.

    Le copilote a réussi le CCP initial en qualité de copilote sur A310 le 15 juin 2004, et a subi sa dernière vérification de compétence en ligne le 7 juillet 2004. Son dernier CCP a eu lieu le 8 octobre 2004. Les dossiers de formation de la compagnie indiquent qu'il a suivi avec succès toutes les formations périodiques requises.

    1.4.3 Agents de bord

    L'équipage de cabine était constitué de sept agents de bord (dont un directeur de vol et un directeur de vol adjoint) comptant tous de 10 à 16 ans de service. Tous étaient qualifiés et formés conformément aux exigences de Transports Canada et d'Air Transat.

    1.5 Renseignements sur l'aéronef

    1.5.1 Généralités

    L'avion est un Airbus A310-308 portant le numéro de série 597. Transports Canada a délivré le certificat d'immatriculation de l'avion le 16 mai 2001 et le certificat de navigabilité le 16 juin 2001; les deux certificats étaient valides au moment de l'incident.

    1.5.2 Antécédents de l'aéronef

    L'avion a effectué son premier vol en septembre 1991 et a été livré à une compagnie aérienne du Moyen-Orient au mois d'août 1992, où il est resté en service jusqu'à son acquisition par Air Transat en mai 2001. Au moment de l'incident, l'appareil totalisait 49 202 heures de vol et 13 441 cycles de vol. À titre de comparaison, le premier appareil de la flotte correspondant à ce type d'aéronef totalisait 75 675 heures de vol et 34 384 cycles de vol.

    1.5.3 Conception de la dérive

    Figure 1. Vue éclatée de la dérive
    Image
    Figure of Vue éclatée de la dérive

    La dérive se compose d'un caisson de longeron, d'un carénage de bord d'attaque, de panneaux de bord de fuite et d'une extrémité (Figure 1). Le caisson de longeron comporte des panneaux latéraux droit et gauche, chacun étant composé de raidisseurs internes et d'un revêtement stratifié résistant en plastique renforcé par fibres de carbone (CFRP). À la partie inférieure de chaque panneau, trois grandes pattes de fixation en CFRP intégrés, qui font office de raccords de fixation principale, sont montées sur le fuselage. Sur la partie avant et arrière du caisson, des longerons pleins en stratifié CFRP se prolongent sur toute la longueur de la dérive afin de relier les panneaux de revêtement gauche et droit, et forment ainsi les faces avant et arrière du caisson de longeron.

    Un longeron plein en stratifié et CFRP plus court est monté au centre du caisson; ce longeron s'étend uniquement jusqu'à la nervure 5. À la partie inférieure de chacun de ces trois longerons, deux pattes intégrées, appelées raccords de charge transversale, sont fixées au fuselage. À l'intérieur du caisson, on compte, au total, 18 nervures pleines en stratifié et CFRP, ce qui inclut des nervures de fermeture dans la partie inférieure et supérieure. Le bord d'attaque et l'extrémité de la dérive sont fabriqués en composite sandwich. Un panneau de bord de fuite plat, fixé de chaque côté du longeron arrière et se prolongeant vers l'arrière, sert de carénage aérodynamique et vient combler l'espace qui existe entre le longeron arrière de la dérive et le bord d'attaque de la gouverne de direction.

    La gouverne de direction est fixée à la dérive au moyen de sept charnières disposées le long du longeron arrière de la dérive. Ces charnières sont numérotées de 1 à 7, de bas en haut. La Figure 2 montre les détails de conception au niveau de ces points d'articulation. À chaque charnière, un raccord CFRP est fixé au longeron arrière. Chacun de ces raccords comporte deux pattes, une à gauche et une à droite. Les deux bras avant de chaque bras d'articulation métallique triangulaire viennent s'emboîter dans ces pattes, à l'arrière du longeron de la dérive.

    Figure 2. Schéma détaillé d'un bras d'articulation
    Image
    Figure of Schéma détaillé d'un bras d'articulation

    Les bras d'articulation sont fixés aux raccords CFRP par des paliers sphériques pour leur permettre de pivoter librement vers le haut et vers le bas. La partie arrière de chaque bras d'articulation comporte une charnière prévue pour fixer la gouverne de direction. Le bras d'articulation situé au niveau de la charnière 4 est maintenu en position verticale par un tube structural en métal appelé profilé en Z. Toutes les charges verticales provenant de la gouverne de direction sont transférées à la dérive par l'intermédiaire du profilé en Z. Le braquage de la gouverne de direction est commandé par trois actionneurs hydrauliques montés à l'intérieur de la dérive aux charnières 2, 3 et 4. Les extrémités avant des actionneurs sont fixées aux raccords CFRP, sur le longeron arrière de la dérive, tandis que les extrémités arrière sont fixées aux ferrures en alliage d'aluminium du longeron avant de la gouverne de direction.

    1.5.4 Renseignements sur la gouverne de direction

    1.5.4.1 Généralités

    La gouverne de direction porte le numéro de série 1331 et la référence A55471500, laquelle correspond aux gouvernes de direction montées sur les appareils A310, A300-600, A330 et A340 d'ancienne génération. Il s'agit de la même gouverne de direction que celle installée initialement sur le C-GPAT au moment de sa construction en 1991. Cette gouverne est l'une des premières d'un lot de cinq gouvernes de direction dont les panneaux latéraux ont été fabriqués par l'entreprise Soko à Mostar en ex-Yougoslavie. Les panneaux latéraux ont ensuite été expédiés dans les installations d'Airbus à Stade en Allemagne, où ils ont été assemblés pour former des gouvernes de direction.

    1.5.4.2 Conception de la gouverne de direction

    La gouverne de direction se compose d'un longeron unique à l'avant, de deux panneaux latéraux fixés ensemble au niveau du bord de fuite et de nervures de fermeture en parties supérieure et inférieure (Figure 3). Les panneaux latéraux sont en une seule pièce et ne comportent aucune caractéristique de conception permettant d'interrompre mécaniquement la propagation d'un décollement. Chaque panneau latéral se compose d'une âme en nid d'abeilles en aramide Nomex®, de feuilles de surface en CFRP et d'une couche intermédiaire en plastique renforcé à la fibre de verre (GFRP) disposée entre le CFRP et le nid d'abeilles, comme le montre la Figure 4. La couche intermédiaire en GFRP ne joue aucun rôle d'un point de vue structural; elle sert uniquement de support à la résine utilisée pour coller le CFRP au nid d'abeilles. La face intérieure comporte une couche de Tedlar® qui assure une barrière contre l'humidité, tandis que la face extérieure est revêtue d'une couche de pellicule adhésive (AF 126) dans un souci d'uniformité aérodynamique. La densité et l'épaisseur du nid d'abeilles ainsi que le nombre de feuilles protectrices varient en fonction de leur emplacement, ceux-ci étant conçus pour encaisser les charges imposées.

    Figure 3. Schéma de la gouverne de direction
    Image
    Figure of Schéma de la gouverne de direction

    Différents morceaux de nid d'abeilles sont collés ensemble le long de leur bordure latérale avec une colle de jonction. Ce même adhésif est également utilisé pour coller les bords latéraux du nid d'abeilles au profilé en Z. Les bords avant et inférieur des panneaux latéraux sont fabriqués dans un profilé en Z CFRP pré-polymérisé. Les panneaux latéraux sont fixés au longeron et aux nervures à l'aide d'attaches mécaniques aveugles.

    Trois plaques de protection contre la foudre en aluminium sont disposées dans le sens de la corde, sur chaque panneau latéral. Afin d'éviter toute réaction galvanique entre ces plaques métalliques et le CFRP, une couche de GFRP isolante intermédiaire a été prévue. Il n'y a qu'un seul longeron, situé le long du bord avant de la gouverne de direction et se prolongeant sur toute la longueur de la gouverne. Le longeron est fait d'un matériau en composite sandwich pourvu d'une âme en nid d'abeilles Nomex® et de feuilles de surface en CFRP. Sept trous d'allègement sont disposés sur toute la longueur du longeron.

    Figure 4. Structure du panneau latéral de la gouverne de direction
    Image
    Photo of Structure du panneau latéral de la gouverne de direction

    La gouverne de direction comprend deux nervures. La nervure 0 - nervure de fermeture située à la partie inférieure de la gouverne - est fabriquée en composite sandwich et pourvue d'une âme en nid d'abeilles Nomex® et de feuilles de surface en CFRP. La nervure 54a, qui est en aluminium, est la nervure de fermeture située à la partie supérieure de la gouverne de direction. Le carénage du bord d'attaque de la gouverne de direction comporte plusieurs sections disposées sur toute sa longueur, chacune étant fabriquée en composite sandwich (Figure 4). Les sections du carénage de bord d'attaque sont fixées aux profilés en Z du panneau latéral au moyen d'attaches filetées. Une bande en alliage d'aluminium, faisant partie intégrante du dispositif de protection contre la foudre, est apposée le long de cette rangée d'attaches. Un bourrelet d'étanchéité destiné à combler l'espace situé entre la partie inférieure de la gouverne de direction et la partie supérieure du cône de queue est également fixé au profilé en Z, à la partie inférieure de chaque panneau latéral. Le bourrelet est maintenu par des fixations filetées, et une bande métallique sert de garniture de protection le long de cette rangée de fixations. Les panneaux latéraux sont montés à l'arrière de la gouverne de direction au moyen d'une rangée d'attaches mécaniques disposées parallèlement au bord de fuite, à environ 30 cm devant celui-ci. Une feuille de protection métallique court le long du bord de fuite de la gouverne de direction, de haut en bas, lequel est également fixé à l'aide de fixations mécaniques. Chaque panneau latéral compte trois points de levage.

    Il y a sept charnières numérotées de 1 à 7, en partant du bas. La Figure 5 montre les détails de conception au niveau de ces points d'articulation. Au niveau de chaque charnière, des ferrures en alliage d'aluminium sont fixées à des blocs en GFRP pleins, intégrés localement aux panneaux de revêtement et à l'âme du longeron au moyen de fixations mécaniques. Le noyau de l'âme du longeron, qui est traversé par les fixations, est garni d'un matériau de remplissage et renforcé par une plaque d'appui en aluminium. Les trois actionneurs de gouverne sont fixés à la gouverne de direction au niveau des charnières 2, 3 et 4. Les ferrures d'articulation en métal situées à ces emplacements comportent deux pattes : l'une sert de point de charnière, tandis que l'autre se fixe à un actionneur hydraulique.

    Figure 5. Schéma détaillé des ferrures d'articulation de la gouverne de direction
    Image
    Figure of Schéma détaillé des ferrures d'articulation de la gouverne de direction

    1.5.5 Méthode de fabrication de la gouverne de direction

    Les panneaux latéraux de la gouverne de direction, le longeron et la nervure 0 sont fabriqués et durcis séparément, puis assemblés à l'aide de fixations mécaniques pour constituer la gouverne de direction. Chaque panneau latéral est assemblé dans un moule, face extérieure orientée vers le bas en appui contre la face du moule. Pendant la cuisson, le revêtement (externe) inférieur bénéficie d'un meilleur collage en raison du processus de fabrication. Bien que les deux collages dépassent les exigences de conception, le collage du revêtement interne est légèrement moins performant. Les trois plaques de protection contre la foudre sont fabriquées d'une seule pièce et intégrées au panneau latéral pour la polymérisation.

    1.5.6 Registres de fabrication de la gouverne de direction

    Certains registres de fabrication concernant les panneaux latéraux de la gouverne de direction du C-GPAT ont été perdus lors des bombardements que l'usine a essuyés durant la guerre en Yougoslavie. Il a donc été nécessaire de consulter les registres de fabrication disponibles chez Airbus à Stade en Allemagne et à Toulouse en France. L'étude de ces documents a permis de constater que des non-conformités avaient été décelées par le système d'assurance qualité, que des mesures correctives avaient été définies, que des réparations avaient été effectuées et que le produit final avait été inspecté puis déclaré en état de navigabilité. Ces non-conformités concernaient la position des points de levage, la résistance de la peinture antistatique et diverses retouches liées au collage de jonction, le revêtement et le matériau de remplissage. L'assurance qualité des composants fabriqués à Soko incombait toujours à Airbus. Les registres de fabrication indiquent que la gouverne de direction était en état de navigabilité lors de l'assemblage final.

    1.5.7 Modifications relatives à la gouverne de direction

    Voici une liste des modifications concernant la gouverne de direction :

    • Modification 5844 (Couche intermédiaire en fibres de verre). La gouverne de direction a été conçue après la modification 5844 (bulletin de service SB A310-55-2012), qui a incorporé une couche de GFRP entre le nid d'abeilles et le revêtement en CFRP, en lieu et place du plastique renforcé à la fibre aramide (AFRP) utilisé dans les conceptions précédentes.
    • Modification 8408 (Modification de la taille du nid d'abeilles). La gouverne de direction a une configuration postérieure à la modification 8408, qui a incorporé un nid d'abeilles à densité accrue à certains endroits.
    • Modification 8827 (Modification de la fabrication du longeron). La gouverne de direction a été construite avant la modification 8827, ce qui signifie que son longeron a été construit selon le concept de sandwich CFRP/nid d'abeilles Nomex® en vigueur antérieurement, plutôt que selon le concept de longeron plein en CFRP apparu ultérieurement.
    • Modification 5185 (Panneaux latéraux d'une seule pièce). La gouverne de direction porte un numéro de série postérieur à 1035, ce qui signifie que chaque panneau latéral est formé d'une seule pièce. Les panneaux latéraux antérieurs étaient formés de deux pièces : une partie inférieure et une partie supérieure, qui étaient jointes dans le sens de la corde.
    • Modification SRM (structural repair manual ou manuel de réparations structurales) 55-41-12 (Boulons de renforcement dans les blocs en GFRP). La gouverne de direction a fait l'objet de la modification SRM 55-41-12, paragraphe 27, en cours de fabrication. Cette modification s'est traduite par l'ajout de boulons de renforcement à travers les blocs GFRP au niveau des points de charnière.

    1.5.8 Circuit de commande de la gouverne de direction

    1.5.8.1 Composants du circuit de commande de la gouverne de direction

    Voici une liste descriptive des composants du circuit de commande de la gouverne de direction de l'Airbus A310 :

    • Les pédales de palonnier, le vérin de compensation de la direction, les deux actionneurs d'amortisseurs de lacet et la servocommande en lacet du pilote automatique, qui permettent de commander le braquage de la gouverne de direction.
    • Les tiges-poussoirs, les guignols, les câbles et le compensateur d'élasticité, connus sous le terme de tringlerie, qui transmettent les commandes de direction.
    • Les trois servocommandes - supérieure, intermédiaire et inférieure - qui actionnent la gouverne de direction. (La vitesse de déplacement maximale de la gouverne de direction sans charge est de 60 ± 5° par seconde. Le braquage maximum de la gouverne de direction est de 30° à gauche ou à droite).
    • Le module différentiel, un dispositif mécanique qui envoie une commande aux servocommandes de la gouverne de direction. Ce module additionne les ordres du pilote ou du pilote automatique et les commandes de l'amortisseur de lacet.
    • Les deux limiteurs de débattement de la direction qui comportent une butée variable qui limite le déplacement de la tringlerie de la gouverne de direction en aval du module différentiel et, par conséquent, la commande transmise aux trois servocommandes lorsque la vitesse indiquée augmente.
    • Le transmetteur, qui est situé sur la dérive, au niveau de la nervure 1, et qui est relié à la gouverne de direction par une biellette fixée à la ferrure no 1, qui affiche la position de la gouverne de direction sur l'écran ECAM.
    1.5.8.2 Fonctionnement du circuit de commande de la gouverne de direction

    Les actionneurs des amortisseurs de lacet sont des mécanismes électro-hydrauliques qui permettent de faire fonctionner le système d'amortissement en lacet. Ce système remplit trois fonctions : il amortit le roulis hollandais, assure la coordination en virage ainsi que la compensation en lacet en cas de panne moteur au décollage ou lors d'une remise des gaz. Les commandes de l'amortisseur de lacet sont limitées par un logiciel du calculateur servant à optimiser la gestion du domaine de vol à un maximum de 39° de déplacement de gouverne de direction par seconde. Le déplacement maximum de la gouverne de direction autorisé par l'amortisseur de lacet est de ±10° à des vitesses indiquées pouvant atteindre 165 noeuds. Le déplacement maximum admissible à des vitesses indiquées supérieures à 165 noeuds est déterminé par une formule (10 x [165/vitesse indiquée en noeuds ou KIAS]²).

    Du fait que l'appareil volait à une vitesse indiquée de 270 noeuds au moment de l'incident, le braquage maximum de la gouverne de direction autorisé par l'amortisseur de lacet était de ±3.7°. L'amortisseur de lacet et les pédales de direction n'étant pas couplés, les commandes de l'amortisseur de lacet n'induisent aucun mouvement des pédales. Les pédales de direction et les commandes de l'amortisseur de lacet sont soumises aux limites imposées par le limiteur de débattement de la direction. La position de la gouverne de direction est fonction de la somme des ordres du pilote ou du pilote automatique et des commandes de l'amortisseur de lacet assujettis au limiteur de débattement.

    La servocommande en lacet du pilote automatique, qui génère des commandes de pilote automatique en lacet, est un module simple qui renferme deux actionneurs électro-hydrauliques, chacun étant commandé par un calculateur de commandes de vol (FCC). La servocommande en lacet du pilote automatique est dotée d'un levier de sortie qui est relié au guignol principal par un limiteur de couple. Le limiteur de couple permet au pilote de surpasser l'ordre du pilote automatique en appliquant environ 65 décanewtons (daN) de plus que les forces de sensation artificielle aux pédales. Les ordres de commande de direction du pilote automatique sont limités par le logiciel du FCC à un maximum de 34° de débattement de gouverne de direction par seconde. La servocommande en lacet du pilote automatique et les pédales de direction sont solidaires; c'est pourquoi un ordre du pilote automatique en lacet induit un mouvement des pédales.

    Le limiteur de débattement de la direction réduit le débattement maximum autorisé de la gouverne de direction à mesure que la vitesse augmente. Cette restriction est telle que la capacité de débattement maximum de la gouverne reste inférieure à celle qui induirait des charges limites sur la structure dans tout le domaine de vol.

    1.5.8.3 Description du roulis hollandais

    Le Airplane Upset Recovery Training Aid (manuel de formation traitant de la procédure de redressement en cas de perte de maîtrise de l'avion)Note de bas de page 4 décrit le roulis hollandais de la façon suivante :

    [Traduction]

    La stabilité statique directionnelle correspond à une mesure de la capacité de l'avion à voler en ligne droite dans une masse d'air à écoulement non perturbé. La dérive et la répartition de surfaces planes à l'arrière du centre de gravité (CG) tendent à réduire la glissade de l'appareil et contribuent à une bonne stabilité de route. Tous les avions classiques doivent avoir une stabilité directionnelle statique positive. En d'autres termes, un aéronef qui a une bonne stabilité directionnelle a toujours tendance à s'orienter dans le vent relatif, avec un angle de glissade nul. Plus la stabilité directionnelle augmente, plus la vitesse à laquelle l'appareil revient à un angle de glissade nul après avoir été perturbé augmente (fréquence plus élevée). Afin de réduire les dépassements en glissade, l'amortissement sur l'axe directionnel doit augmenter lorsque la stabilité directionnelle augmente. Une caractéristique indésirable peut apparaître lorsque l'amortissement directionnel ne suffit pas à prévenir des dépassements en glissade. Un phénomène connu sous le nom de « roulis hollandais » (basé sur la similitude avec les mouvements faits par les patineurs de vitesse) peut apparaître lorsque des vitesses angulaires de lacet induisent des glissades, lesquelles, à leur tour, entraînent des vitesses angulaires de roulis. Si les glissades ne sont pas amorties comme il se doit, le nez de l'appareil subira des oscillations latérales et directionnelles par rapport au vent relatif, et l'avion accusera des roulis à droite et à gauche en raison de l'effet du dièdre (la flèche de l'aile provoque une portance dissymétrique, selon le vent relatif). Les avions conçus pour voler à des nombres de Mach supérieurs ont une flèche de voilure plus prononcée afin de réduire le nombre de Mach critique (vitesse à laquelle des ondes de choc commencent à se former sur l'aile). Plus la flèche augmente, plus l'effet de dièdre augmente; si l'avion n'est pas compensé en conséquence dans l'axe directionnel, il se peut qu'un roulis hollandais apparaisse lorsque la stabilité de route de l'avion est perturbée. Les amortisseurs de lacet ont été conçus pour réduire au minimum les vitesses angulaires de lacet qui provoquent des vitesses de glissade, et ils s'avèrent particulièrement efficaces sur les avions de transport modernes lorsqu'il s'agit d'amortir le roulis hollandais. Cependant, un roulis hollandais neutre ou légèrement divergent apparaît sur certains avions de transport lorsque l'amortisseur de lacet est désactivé ou inopérantNote de bas de page 5. Les avions classiques ont davantage tendance à subir un roulis hollandais à des altitudes plus élevées (amortissement moindre) et à des vitesses plus élevées (davantage de stabilité de route). C'est pourquoi, lorsqu'un roulis hollandais apparaît, le pilote doit déployer tous les efforts possibles pour « ralentir l'appareil et réduire son altitude ». Sur les avions de transport modernes équipés d'un amortisseur de lacet qui fonctionne bien, le roulis hollandais est inexistant. Les avions de transport sont certifiés pour démontrer un amortissement positif du roulis hollandais. La gouverne de direction ne doit pas servir à compléter l'amortisseur de lacet. Lorsque cet amortisseur est en panne, il ne faut pas utiliser la gouverne de direction pour amortir un roulis hollandais.

    1.5.8.4 Formation portant sur le redressement en cas de roulis hollandais

    La formation initiale dispensée par Air Transat comprend un exercice de redressement en cas de roulis hollandais. L'exercice est d'abord réalisé avec les amortisseurs de lacet embrayés, afin de démontrer l'amortissement automatique, puis avec amortisseurs de lacet débrayés afin d'entraîner le pilote à appliquer la technique de redressement et de démontrer l'amortissement naturel. Au cours de l'exercice, à la demande du pilote aux commandes, le pilote qui n'est pas aux commandes met du pied rapidement jusqu'à atteindre une inclinaison de 40°, puis relâche la pédale de direction. La gouverne de direction ne devrait pas être utilisée durant le processus de redressement, et la commande de direction devrait rester à la position neutre. Le fait de transférer du carburant vers l'avant améliore les caractéristiques du roulis hollandais, et le fait de voler au FL310 ou à un niveau inférieur améliore la stabilité de route de l'appareil.

    1.5.8.5 Documentation de bord

    L'index des procédures (quick reference handbook/ ou QRH) de l'A310 ne mentionne aucune procédure à suivre en cas de conditions de vol inhabituelles associées au roulis hollandais. Cependant, les listes de vérifications détaillées du manuel de l'équipage de conduite fournissent des renseignements sur la façon de maîtriser le roulis hollandais en cas d'anomalie de l'amortisseur de lacet. Il n'y a eu aucune anomalie de l'amortisseur de lacet lors de l'incident du 6 mars 2005.

    1.5.9 Renseignements sur la certification

    1.5.9.1 Certificat de type

    Ce modèle d'avion est régi par le certificat de type A-151 de Transports Canada. La fiche de données contient les renseignements suivants :

    • Vitesse maximale en exploitation : 340 KIAS
    • Nombre de Mach maximum : 0,84
    • Facteur de charge en vol avec volets rentrés : -1,0 à +2,5
    1.5.9.2 Essais de certification de la gouverne de direction

    Lors de la certification initiale de la gouverne de direction, le constructeur a procédé aux essais de structure et de vibrations aéroélastiques (flottement) suivants :

    Essais de structure Essai de charge statique - La gouverne de direction a été testée et a été soumise à une charge représentant 1,6 fois la charge limite dans des conditions de températures et d'humidité élevées.
    Essai de fatigue - La gouverne de direction a été actionnée pendant l'équivalent de trois durées de vie (3 x 48 000 cycles de vol) entre −35 °C et 70 °C et avec une teneur en humidité variable.
    Essais de tolérance aux dommages - À la suite de l'essai de fatigue, un dommage artificiel a été introduit dans le spécimen, et celui-ci a été soumis à une autre durée de vie en fatigue. Aucun accroissement du dommage n'a été observé. À la suite de ce quatrième essai de durée de vie en fatigue, le spécimen a été soumis à une charge représentant 1,8 fois la charge limite, sans rupture. Le spécimen a ensuite été soumis plusieurs fois de suite à une charge représentant 2,3 fois la charge limite, sans rupture. Il a ensuite été soumis à des dommages de plus grandes dimensions, et a finalement cédé à une charge représentant 2,15 fois la charge limite. La charge appliquée durant ces essais était strictement d'origine mécanique, et les essais ne comprenaient pas d'essais de cycles de fonctionnement sous vide. Pour obtenir la certification, on n'exigeait pas spécifiquement d'essais de cycles de fonctionnement sous vide.
    Essais des sous-composants - Les écrous d'ancrage utilisés pour fixer le bord d'attaque au profilé en Z, le raccord du bord de fuite, le raccord du panneau latéral au longeron avant, la zone d'application des charges au niveau des actionneurs hydrauliques ainsi que le longeron avant ont été soumis à des essais.
    Essais de vibrations aéroélastiques (flottement) Enquête théorique (cas normal) - Un modèle dynamique théorique a été fabriqué. Le comportement vibratoire a été calculé à l'aide du logiciel d'analyse par éléments finis MSC Nastran, et le modèle a été adapté pour coïncider avec les résultats des essais de vibration au sol. Un modèle d'éléments finis plus complexe a ensuite été développé pour la conversion de l'avion de transport et de ravitaillement multi-rôle (MRTT). Ce modèle était précis à 3 % près par rapport aux résultats des essais de vibration au sol. L'analyse a révélé que l'aéronef affichait des marges de vibration satisfaisantes jusqu'à la limite de certification de 1,2 fois la vitesse nominale en piqué à une vitesse inférieure à Mach 1,0, se conformant ainsi aux exigences de certification.
    Enquête théorique (cas de défaillance) - Une analyse des vibrations aéroélastiques a été effectuée pour un certain nombre de cas de défaillance incluant des criques dans le longeron ou dans le revêtement, une défaillance de deux circuits hydrauliques sur trois, une accumulation de glace sur les bords d'attaque et une infiltration d'eau dans l'âme en nid d'abeilles. Les marges de vibrations aéroélastiques se sont révélées satisfaisantes dans tous les cas de défaillance.
    Essais de vibration au sol - Les versions MRTT des appareils A310-200, A310-300 et A310-300 ont été soumises à des essais de vibration au sol en vue de calibrer les modèles numériques.
    Essais de vibration en vol - Les versions MRTT des appareils A310-200, A310-300 et A310-300 ont été soumises à des essais de vibration en vol. Aucune vibration aéroélastique ni aucune réduction critique de l'amortissement ne s'est produite jusqu'à la vitesse de piqué maximum réalisée aux essais en vol, qui a été de 410 KCAS (vitesse corrigée en nœuds), Mach 0,9.

    1.5.10 Calendrier d'inspection

    1.5.10.1 Cycle des inspections régulières

    Le cycle des inspections régulières de l'avion est le suivant :

    Vérification en transit Avant chaque vol
    Vérification quotidienne Intervalle de 36 heures
    Vérification hebdomadaire 8 jours civils
    Visite A (1 à 12) 450 heures de vol
    Visite C (1 à 8) 15 mois

    Nota : L'avion vole environ 300 heures par mois (3600 heures par an).

    1.5.10.2 Inspections régulières de la gouverne de direction

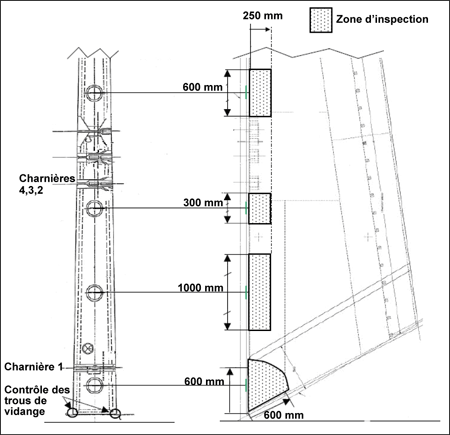
    La gouverne de direction est contrôlée à l'occasion des inspections suivantes :

    Inspection visuelle générale de l'empennage à partir du sol (G) Vérification quotidienne et en transit
    Inspection visuelle générale de l'empennage effectuée à une certaine distance (A) Vérification de type 2-C
    Inspection visuelle générale (A) de la gouverne de direction Vérification de type 2-C
    Mesure du jeu des charnières de la gouverne de direction Vérification de type 4-C
    Examen visuel détaillé des bras d'articulation de la gouverne de direction 5 ans
    Examen visuel détaillé des ferrures d'articulation de la gouverne de direction 5 ans
    Examen visuel détaillé du longeron avant de la gouverne de direction 5 ans
    Inspection non destructive des panneaux latéraux de la gouverne de direction 5 ans
    1.5.10.3 Inspections récentes

    Les principales inspections effectuées peu de temps avant l'incident sont les suivantes :

    Mai 2001 Inspection non destructive de la gouverne de direction effectuée aux 5 ans : 34 415 heures et 10 037 cycles
    Mai 2004 Vérification de type 2-C (chez TAP Portugal) : 46 198 heures et 12 809 cycles
    1er mars 2005 Vérification de type A-11 : 49 156 heures et 13 429 cycles
    5 mars 2005 Vérification quotidienne et en transit (avant le départ de Québec à destination de Varadero) : 49 197 heures et 13 439 cycles
    1.5.10.4 Limites énoncées dans le manuel de réparations structurales concernant les dommages à la gouverne de direction

    Le chapitre 55-41-00, Figure 105, du manuel de réparations structurales stipule que tout dommage touchant des panneaux latéraux de gouverne de direction du type « impact et décollement sans crique ni trou visible » doit être réparé dans le respect des exigences ci-après :

    • Dommage inférieur à 1000 mm² : dommage toléré
    • Entre 1000 et 10 000 mm² : surveiller le dommage et le réparer si ses dimensions augmentent
    • Entre 10 000 et 40 000 mm² : surveiller le dommage et le réparer dans les 2500 heures conformément au manuel
    • Dommage supérieur à 40 000 mm² : réparer immédiatement et contacter le constructeurNote de bas de page 6

    1.5.11 Opérations de maintenance

    1.5.11.1 Généralités

    Tous les comptes rendus d'inspection et de travaux de maintenance ont été analysés depuis la date du premier vol de l'avion en septembre 1991 jusqu'à la date de l'incident (le 6 mars 2005). Tous les registres de réparation structurale ont été examinés, y compris tous les rapports d'opérations de maintenance touchant des composants de la gouverne de direction et des composants du circuit de la gouverne de direction, ainsi que les inspections spéciales. L'enquête a révélé que l'avion était maintenu en état de navigabilité conformément au programme de maintenance approuvé par Transports Canada. Des opérations de maintenance majeures concernant la gouverne de direction sont décrites ci-après.

    1.5.11.2 Contrôle de la synchronisation de la gouverne de direction

    Une disposition du bulletin de service d'Airbus SB A310-27-2082 exige que la gouverne de direction soit soumise à un contrôle de synchronisation toutes les 1300 heures de vol. Cette inspection oblige les techniciens à accéder à la partie située à la partie inférieure de la gouverne de direction. Même si cette opération n'inclut pas une inspection structurale de la gouverne de direction, tout dommage extérieur significatif peut être décelé. Cette inspection a été effectuée avec l'inspection de type A-11 en date du 1er mars 2005, soit cinq jours avant l'incident. Aucun problème n'a été signalé.

    1.5.11.3 Remplacement des plaques de protection contre la foudre

    Le 20 mai 2004, moins d'un an avant l'incident, et à l'occasion de la vérification de type 2-C, les techniciens ont constaté que la zone de fixation arrière de la plaque de protection contre la foudre inférieure côté droit de la gouverne de direction présentait des traces de corrosion. La plaque a été remplacée, et des essais de percussionNote de bas de page 7 de la zone concernée, effectués après le remplacement, n'ont révélé aucun signe de collage insuffisant. Comme il s'agissait de l'une des seules opérations de maintenance à avoir été consignée visant la gouverne de direction, tout le processus de remplacement de la plaque a été examiné. Aucune anomalie susceptible d'avoir contribué à l'incident n'a été décelée.

    1.5.11.4 Réparation consécutive à un foudroiement

    Le 12 août 1997, lors de la vérification de type 4-C à laquelle l'avion a été soumis, une fiche d'inspection non programmée a été rédigée pour signaler un dommage probablement causé par la foudre. Le dommage a été décrit ainsi : [Traduction] « coin supérieur de la gouverne de direction, marque causée par la foudre » et l'action corrective a été décrite comme suit : [Traduction] « le coin supérieur de la gouverne de direction qui a été endommagé par la foudre a été réparé conformément au chapitre 51-73-10 du manuel de réparations structurales. » Il s'agissait d'une réparation mineure ne dépassant pas les limites énoncées dans le manuel; le constructeur n'a pas été informé. Aucune photo du dommage n'a été prise et aucun document n'a été rédigé à ce sujet. Ce dommage est survenu plus de sept ans avant l'incident du 6 mars 2005, et entre-temps, l'avion a subi toutes les inspections périodiques prévues.

    1.5.11.5 Opérations de maintenance diverses touchant les servocommandes de la gouverne de direction

    En décembre 1999, le bras d'articulation no 7 de la gouverne de direction présentait un jeu excessif et a été réparé en conséquence. En mai 2004, les servocommandes de la gouverne de direction ont fait l'objet d'une modification conformément au bulletin de service SB A310-27-2091.

    1.5.11.6 Installations de maintenance

    L'inspection de la base de maintenance de l'exploitant située à Montréal n'a révélé aucun signe indiquant que la gouverne de direction de l'appareil aurait pu être heurtée par des dispositifs de levage ou d'autres équipements de piste ou qu'elle aurait heurtée un cadre de porte de hangar. L'enquête a également établi que la queue de l'appareil n'a pas pu être endommagée par les systèmes de chauffage ou d'éclairage présents dans les installations ou dans celles de l'ancienne base de la compagnie située à Mirabel (Québec).

    1.6 Conditions météorologiques

    Les conditions météorologiques signalées au moment du décollage à Varadero (6 h) étaient les suivantes : vents variables à 2 noeuds, visibilité de 8000 mètres, quelques nuages (moins de 2/8 de ciel couvert) à 1800 pieds agl, température de 14 °C, point de rosée de 12 °C, calage altimétrique de 1021 millibars. Les conditions météorologiques signalées à Varadero au moment de l'atterrissage (8 h) étaient les suivantes : vents variables à 2 noeuds, visibilité de 7000 mètres, quelques nuages à 1800 pieds agl, température de 12 °C, point de rosée de 11 °C, calage altimétrique de 1020 millibars.

    Au moment de l'incident, l'avion volait dans des conditions de vol à vue de nuit; aucune turbulence n'a été signalée.

    1.7 Aides à la navigation

    Aucun problème n'a été signalé concernant les aides à la navigation.

    1.8 Télécommunications

    1.8.1 Contrôle de la circulation aérienne

    L'avion assurant le vol TSC961 s'est mis en palier au FL350 à 7 h 1. Du fait de l'incident en vol, l'altitude de TSC961 a augmenté d'environ 1000 pieds. À noter qu'il n'y avait pas d'autre avion dans la zone. Cette incursion d'altitude n'a pas provoqué de perte d'espacement. Dans un premier temps, le vol TSC961 bénéficiait d'un guidage pour effectuer une approche à Fort Lauderdale, mais l'équipage a finalement décidé de retourner à Varadero.

    Entre le moment de l'incident et l'atterrissage à Varadero, l'équipage a été en contact avec les contrôleurs de quatre secteurs de contrôle différents. Aucune situation d'urgence n'a été déclarée.

    1.8.2 Communications entre l'équipage et la compagnie

    À 7 h 17, l'équipage a utilisé la radio HF pour établir une liaison téléphonique avec le régulateur d'Air Transat à Montréal par l'intermédiaire du système ARINC (Aeronautical Radio Incorporated) de New York aux États-Unis. Le problème survenu en vol a été discuté avec la régulation et la maintenance.

    1.8.3 Communications entre le poste de pilotage et les agents de bord

    • T - Type d'urgence : pilote automatique n'obéissant pas, vol dérouté sur
      Fort Lauderdale
    • E - Évacuation (sur terre ou en mer) : aucune évacuation
    • S - Signaux (standard ou autres) : signaux standard
    • T - Temps restant avant l'atterrissage : 10 minutes
    • R - Relocalisation des passagers : pas nécessaire
    • A - Annonces aux passagers faites par le (commandant de bord ou le
      directeur de vol) : commandant de bord

    Le commandant n'a pas demandé au directeur de vol de faire un exposé sur la situation en cabine, et aucun n'a été fait. En situation anormale ou d'urgence, aucune procédure ou pratique n'oblige l'équipage de conduite à demander au directeur de vol s'il a des renseignements à communiquer. En pareil cas, on suppose que toute information susceptible de faciliter la prise de décision sera systématiquement communiquée. La procédure d'Air Transat en cas de situation anormale ou d'urgence exige que l'équipage de conduite demande, une fois l'exposé TESTRA effectué, s'il y a des questions, procédure qu'il a respectée. Les agents de bord présents dans la zone de l'office arrière n'ont pas contacté le directeur de vol ni l'équipage de conduite pour signaler les phénomènes inhabituels qu'ils percevaient, car ils ont supposé que l'équipage de conduite et le directeur de vol étaient conscients de la gravité de la situation à l'arrière de l'appareil.

    Conformément aux règlements et normes applicables, et en vertu du programme de formation approuvé de l'exploitant, tous les membres d'équipage, pilotes et agents de bord, ont suivi une formation sur les procédures de communication entre les membres d'équipage. Ils ont également reçu une formation en gestion des ressources en équipe, qui traite aussi des procédures de communication entre les membres d'équipage. Ce type de formation est dispensé à l'occasion des formations initiale et annuelle. Pendant la formation annuelle, les agents de bord et les pilotes participent aussi à des séances de formation communes sur la communication entre les membres d'équipage, au cours desquelles les aptitudes à communiquer et les procédures de communication sont passées en revue sous forme de scénarios d'urgence simulés.

    La formation initiale des agents de bord a pour objectif de montrer l'importance de communiquer efficacement en situation normale, en situation anormale et en situation d'urgence et à enseigner les procédures à suivre pour y parvenir. L'accent est mis :

    • sur la responsabilité des agents de bord de communiquer des renseignements complets et précis au pilote commandant de bord pour faciliter la prise de décision;
    • sur les risques potentiels pour la sécurité du vol lorsque la communication entre les membres d'équipage n'est pas efficace;
    • sur les conséquences d'une mauvaise communication lors d'un accident ou incident d'aviation.

    On enseigne aux agents de bord à signaler tout problème de sécurité à bord dont ils seraient témoins ou qui a pu leur être signalé par des passagers. Lorsqu'ils font part d'un problème de sécurité en situation normale ou en situation anormale, les agents de bord sont tenus de respecter la voie hiérarchique, dans la mesure du possible.

    À noter toutefois que lorsqu'un agent de bord est témoin d'une situation anormale ou d'urgence soudaine, y compris des bruits inhabituels, il est tenu de contacter immédiatement l'équipage de conduite par interphone, en précisant son emplacement et la nature du problème. La formation sensibilise notamment les agents de bord au fait qu'ils ne doivent jamais supposer que l'équipage de conduite est conscient de tout ce qui se passe. À défaut de communiquer une information, la valeur potentielle qu'elle représente pour la sécurité du vol est perdue.

    Il existe des procédures qui énoncent les exigences à respecter et la façon dont le directeur de vol doit communiquer les renseignements aux agents de bord en cas de situation anormale ou d'urgence. Mais aucune procédure ou directive n'oblige le directeur de vol à interroger les agents de bord pour recueillir des renseignements. De même, aucune exigence n'oblige le directeur de vol à faire un exposé formel à l'équipage de conduite au sujet de la situation en cabine en pareilles situations.

    1.9 Renseignements sur l'aérodrome

    Le vol TSC961 a emprunté la piste 06 de l'aéroport international de Varadero/Juan Gualberto Gómez (MUVR) à Cuba pour l'arrivée initiale, le départ et le retour la nuit de l'incident. La piste 06 mesure 11 490 pieds de longueur sur 148 pieds de largeur, et sa surface est asphaltée. Elle est équipée d'un système d'atterrissage aux instruments (ILS). Du personnel de maintenance d'Air Transat se trouve sur place à l'aéroport.

    L'aéroport international de Fort Lauderdale/Hollywood (KFLL) en Floride (É.-U) possède des pistes parallèles et une piste sécante. Le vol TSC961 était guidé vers la piste 27R. Cette piste mesure 9000 pieds de longueur sur 150 pieds de largeur, et sa surface est asphaltée. Cette piste est également équipée d'un ILS. Du personnel de maintenance d'Air Transat est présent à l'aéroport de Fort Lauderdale, mais le service des douanes n'est pas disponible la nuit.

    L'aéroport international de Miami (KMIA) en Floride possède quatre pistes : la 08/26L, la 08/26R, la 09/27 et la 12/30. Les pistes 12, 08R, 09, 26L et 27 sont dotées d'un ILS. Air Transat ne dispose d'aucun personnel de maintenance sur place à Miami.

    Les services de sauvetage et de lutte contre les incendies d'aéronefs des trois aéroports qui auraient pu accueillir le vol TSC961 la nuit de l'incident satisfont largement aux exigences minimales en matière d'intervention, de sauvetage et de lutte contre l'incendie pour un avion de la taille d'un Airbus A310.

    1.10 Enregistreurs de bord

    1.10.1 Enregistreur numérique de données de vol

    L'avion était équipé d'un enregistreur de données de vol universel (UFDR) Honeywell/Sundstrand (référence 980-4100-DXUN, numéro de série 10623). L'enregistreur est muni d'une bande magnétique en mylar à huit pistes. Le système d'enregistrement consiste en une trame de données de 64 mots par seconde, permettant d'enregistrer plus de 300 paramètres, avec une capacité d'enregistrement minimale de 25 heures. L'enregistreur numérique de données de vol (DFDR) était en très bon état lorsqu'il a été reçu. Il a été démonté, puis la bande a été retirée de la cartouche de mémoire antichoc afin d'être lue à une vitesse plus lente sur un enregistreur d'instruments à bobines à huit pistes. Au total, 25,3 heures de données ont été récupérées sur l'enregistreur.

    1.10.2 Enregistreur de la parole dans le poste de pilotage

    L'avion était équipé d'un enregistreur de la parole dans le poste de pilotage (CVR) Loral Fairchild A100-A (référence 93-A100-80, numéro de série 60662), qui a été reçu en très bon état. L'enregistreur comportait quatre pistes audio de 30 minutes. Les pistes 1 et 2 contenaient les données des canaux radio du commandant de bord et du copilote; la piste 3 était consacrée au canal du microphone d'ambiance installé dans le poste de pilotage, et la piste 4 contenait les annonces passagers ainsi que les communications par interphone et radio. La qualité de l'enregistrement était bonne.

    L'avion a volé pendant 1 heure et 17 minutes après la perte de la gouverne de direction. La bande audio du CVR associée à la perte de la gouverne de direction a été oblitérée, ce qui signifie que les données ont été perdues, y compris les bruits entendus dans le poste de pilotage lors de la rupture de la gouverne de direction. Le CVR a commencé à enregistrer alors que l'avion était en route pour Varadero, soit environ 15 minutes avant l'atterrissage. Les 15 dernières minutes ont été enregistrées au sol à Varadero; l'équipage n'avait pas désactivé les enregistreurs. À la suite de l'enquête du BST sur l'accident du vol 111 de Swissair survenu en Nouvelle-Écosse, le Bureau avait formulé deux recommandations en 1999 pour que les CVR installés à bord ait une capacité d'enregistrement d'au moins deux heures (A99-01 et A99-02). En conséquence, les aéronefs construits après le 31 décembre 2002 doivent conserver les données enregistrées durant les deux dernières heures d'utilisation de l'aéronef. Les aéronefs construits avant cette date continuent toutefois d'utiliser des CVR ayant une capacité d'enregistrement minimum de 30 minutes.

    Aucune procédure de la compagnie ne décrit comment désactiver les enregistreurs après l'atterrissage. Au Canada, les exigences en vigueur sont énoncées dans le Manuel d'information aéronautique de Transports Canada, à la section Généralités, Article 3.0, Bureau de la sécurité des transports du Canada, alinéa 3.4.3, Protection des lieux d'un fait aéronautique, de l'aéronef, de ses parties composantes et de la documentation, qui stipule notamment :

    Lorsqu'un aéronef est impliqué dans un incident devant être signalé, le pilote commandant de bord, l'exploitant, le propriétaire et tout membre d'équipage de l'aéronef doivent, dans la mesure du possible, garder intacts et protéger :

    1. les enregistreurs et les enregistrements de données de vol...

    Le Manuel d'information aéronautique est conforme au paragraphe 9(1), Conservation des éléments de preuve des accidents et incidents à signaler, du Règlement sur le Bureau de la sécurité des transports.

    1.10.3 Enregistreur à accès direct

    L'avion est équipé d'un enregistreur à accès direct (DAR) à disque optique ayant une capacité de mémoire de 128 mégaoctets. La trame de données a une configuration de 128 mots par seconde, permettant d'enregistrer environ 127 paramètres, identique à celle du DFDR. Le DAR et le DFDR ont tous deux enregistré des données de vol provenant de sources identiques; cependant, les échantillons enregistrés n'étaient pas identiques en raison des temps d'échantillonnage différents. L'acquisition de données pour le DAR et le DFDR est assurée par le module de surveillance et d'acquisition des données numériques en vol. Ce module, fabriqué par la société SAGEM, combine à la fois les fonctions d'un module d'acquisition de données numériques de vol pour le DFDR et les fonctions d'un module de gestion des données pour le DAR, en communiquant des données aux deux enregistreurs. Au début de l'enquête, le disque optique du DAR n'a pas été exigé par le BST. Des dispositions ont ensuite été prises en vue de transférer au BST toutes les données DAR pertinentes. Au total, 977 heures (non continues) de données DAR concernant le C-GPAT, dont le vol de l'incident, ont été communiquées par Air Transat.

    Les données DAR ont été lues à la recherche de tout événement éventuel survenu en vol ou au sol. Les données DAR disponibles ont permis de constater qu'aucun événement majeur enregistré n'indiquait des excursions par accélération latérale, des turbulences fortes ou des doublets de la gouverne de directionNote de bas de page 8. De même, aucun événement majeur au sol enregistré susceptible d'indiquer que la gouverne de direction aurait subi un impact n'a été relevé.

    1.10.4 Vitesses d'échantillonnage des données

    Les données DFDR et les données DAR ont été synchronisées manuellement dans le temps et ont indiqué une bonne corrélation, à l'exception des données d'accélération latérale pendant environ deux secondes au début de la perte de la gouverne de direction (Annexe A). La différence entre les données s'explique par le fait que l'événement a été très dynamique. Tant le DFDR que le DAR ont échantillonné une accélération latérale à une cadence de 4 Hz. À cette cadence, il n'a pas été possible d'identifier des fréquences d'accélération latérale supérieures à 2 HzNote de bas de page 9. Il n'a pas été possible non plus de déterminer les fréquences spécifiques présentes lors de la perte de la gouverne de direction en raison des faibles cadences d'échantillonnage des accélérations latérales enregistrées.

    En vertu de la réglementation en vigueur (Norme 625, Annexe 3, Enregistreur numérique de données de vol (DFDR) pour avion, du Règlement de l'aviation canadien [RAC], qui est harmonisée avec la Partie 121, Appendice M, des Federal Aviation Regulations des É.-U.), les intervalles d'échantillonnage des accélérations latérales et longitudinales sont de 4 Hz, et de 8 Hz pour les accélérations verticales. Ces cadences satisfont aux normes de performance recommandées par les spécifications de performances opérationnelles minimales (MOPS) de l'Organisation européenne pour l'équipement électronique de l'aviation civile (EUROCAE) relatives aux enregistreurs de bord résistant aux écrasements (document ED112).

    1.10.5 Filtrage des données enregistrées

    Les données de position des gouvernes enregistrées par le DFDR et le DAR, y compris la position de la gouverne de direction, ont été filtrées par le convertisseur analogique de données du système avant l'enregistrement. Les données filtrées ont ensuite été affichées sur le tableau de bord. Le processus de filtrage est conçu pour filtrer les données afin d'en extraire les pointes indésirables et de prévenir toute indication aberrante. Ces mêmes données sont également enregistrées par le DFDR et, du fait de l'échantillonnage et du filtrage, elles ne représentent pas avec exactitude la position réelle des gouvernes en conditions dynamiques. Comme la perte de la gouverne de direction du vol TSC961 a été un événement dynamique, des données essentielles concernant les gouvernes ont été potentiellement perdues en raison du filtrage.

    1.10.6 Récapitulatif des données enregistrées par les enregistreurs de bord

    Au moment de l'incident, l'avion était en vol stable en palier à environ 35 000 pieds et affichait 270 noeuds (Mach 0,795). Il n'y avait aucune turbulence et aucun mouvement de gouvernes significatif. L'avion n'avait dépassé aucune limite de charge ou de vitesse imposée par son domaine de conception structurale.

    Environ 50 secondes après la mise en palier au FL350, des oscillations dynamiques qui ont duré environ deux secondes ont été enregistrées en accélération latérale. Il s'agit de la première indication de la perte de la gouverne de direction enregistrée par le DFDR et le DAR. Au début des oscillations, l'accélération latérale est passée de +0,006 g à -0,073 g, ce qui indique qu'une force latérale s'est exercée sur l'avion. Dans la seconde qui a suivi les oscillations dynamiques en accélération latérale, le cap a diminué de 2° et l'avion a amorcé un roulis à gauche à partir de l'horizontale. Au même moment, le pilote automatique a ordonné le braquage de l'aileron et des déporteurs (déporteurs droits 5, 6 et 7 sortis) pour un roulis à droite. La position de la gouverne de direction enregistrée indique un mouvement vers la droite, de 1,2° à gauche du neutre (0° avec le biais de 1,2° déduit) jusqu'à environ 0,3° à gauche du neutre (0,9° à droite du neutre, avec le biais de 1,2° déduit). Une augmentation de l'assiette de 2 à 3° en cabré s'est produite, avec une augmentation correspondante de l'accélération verticale jusqu'à +1,28 g.

    Les oscillations en lacet et en roulis, typiques du roulis hollandais, ont débuté dans les deux secondes qui ont suivi la perte de la gouverne de direction, alors que les oscillations dynamiques en accélération latérale diminuaient. À cet instant, une légère augmentation de l'altitude a été suivie d'une diminution de l'assiette (de 3° à 2° en cabré) et d'une réduction de la poussée des réacteurs (N1 est passé de 90 % à 77 %). Une diminution progressive de la vitesse a suivi. L'inclinaison latérale a atteint 6° aile gauche basse, puis s'est inversée. Six secondes après le début de l'incident, la position de la gouverne de direction enregistrée a atteint 6,2° à droite du neutre (environ 7,4° à droite, avec le biais déduit). À la vitesse indiquée de 270 noeuds, le braquage de la gouverne de direction enregistré a surpassé l'efficacité de l'amortisseur de lacet de ±3,7°.

    Sept secondes après le début de l'incident, le pilote automatique no 2 a été débrayé, suivi immédiatement par le débrayage du mode de commande automatique de poussée (réglage manuel de la puissance enclenché). L'avion a franchi le FL350 en montée environ 18 secondes après le début de l'incident. Le pilote automatique étant débrayé, l'amplitude des oscillations a diminué alors que l'appareil franchissait les 35 200 pieds et que la vitesse indiquée chutait à 256 noeuds. La vitesse indiquée a diminué à 248 noeuds. L'altitude a accusé un bref pic à 35 900 pieds, puis l'avion a commencé à descendre.

    Le mode commande du pilote automatique no 1 a été enclenché un court instant alors que l'appareil franchissait 35 000 pieds en descente. L'embrayage du pilote automatique a entraîné une augmentation de l'amplitude du mouvement oscillatoire de lacet et de roulis. Au bout de 17 secondes environ, le pilote automatique a été débrayé et l'amplitude des oscillations a commencé à diminuer. Lorsque l'avion a franchi 27 900 pieds en descente et que la vitesse indiquée a diminué à 258 noeuds, les oscillations ont cessé.

    1.11 Renseignements sur l'épave et sur l'impact

    1.11.1 Dommages divers

    Certains panneaux de plafond de la cabine passagers sont partiellement sortis de leur emplacement. Les déplacements ont été mineurs et n'ont pas empêché les passagers de se mouvoir. L'intérieur du fuselage, derrière la cloison étanche arrière, a été inspecté; la structure ne présentait aucune trace de dommages qui auraient été causés par les charges et vibrations associées à la perte de la gouverne.

    L'extérieur de l'avion a été inspecté; aucun panneau ou élément de structure ayant pu se détacher et venir heurter la gouverne de direction ne manquait. Des rayures visibles situées sur le flanc du fuselage, orientées vers le haut en direction de la queue de l'appareil, étaient en fait de la peinture qui s'était décollée en raison d'une mauvaise adhérence, et non d'un dommage causé par un corps étranger (FOD). Des traces de peinture de couleur bleue étaient également visibles sur le flanc gauche du cône de queue, juste derrière la gouverne de direction; elles sont probablement attribuables à l'impact d'un morceau de gouverne de direction sur le cône de queue lors de la séparation. Une série de perforations a été observée dans le revêtement du fuselage, sur le bord supérieur droit près de la partie inférieure de la dérive. Ces perforations résultent de l'impact, causé lors de la rupture de la gouverne de direction, des attaches mécaniques qui permettent de fixer la gouverne de direction et le carénage du bord d'attaque à la gouverne de direction.

    1.11.2 Dommages à la dérive

    1.11.2.1 Généralités

    La Photo 2 montre des techniciens en train de retirer la dérive et les restes de la gouverne de direction de l'avion. De petits éclats de peinture ont été observés sur les panneaux de bord de fuite de la dérive. Aucun dommage permettant de penser à un débattement extrême de la gouverne de direction d'un bord à l'autre n'a été relevé.

    Photo 2. Dépose de la dérive et vue de l'emplacement des raccords de fixation principale
    Image
    Photo of Dépose de la dérive et vue de l'emplacement des raccords de fixation principale
    1.11.2.2 Raccords de fixation principale

    Les raccords de fixation principale de la dérive ont été examinés. Sur le flanc du fuselage, ces raccords sont en métal. L'inspection visuelle et non destructive effectuée après l'incident n'a révélé aucun dommage. Les six raccords de fixation principale en CFRP, situés sur le côté de la dérive, ont fait l'objet d'un contrôle non destructif par ultrasons qui a révélé la présence de délaminage sur les deux raccords de fixation principale arrière.

    Lorsque la dérive est soumise à une charge en flexion latérale, les deux raccords de fixation principale arrière sont ceux qui encaissent le plus de contraintes. Lors de la certification initiale, la dérive a fait l'objet d'un essai en grandeur réelle comprenant des essais de fatigue correspondant à l'équivalent de trois durées de vie, lesquels ont été suivis par des essais statiques au cours desquels les raccords de fixation principale du spécimen ont cédé à plus de 1,9 fois la charge limite. Par ailleurs, trois autres essais de charge statiques réalisés à l'occasion d'une enquête antérieure ont entraîné la rupture des raccords de fixation à plus de 1,8 fois la charge limite. À noter que la charge ultime de calcul correspond à 1,5 fois la charge limite, et que pour satisfaire aux exigences de certification, une structure doit résister à une charge ultime de calcul pendant au moins trois secondes. Ces essais ont démontré que la conception répondait largement aux exigences de la certification en matière de charge.

    Une analyse effectuée pour étayer la présente enquête a établi que, pour causer les dommages observés sur les raccords de fixation principale de la dérive, la contrainte subie lors de l'incident a dépassé la charge ultime de calcul en flexion latérale de la dérive. Il n'a cependant pas été possible de quantifier la valeur de charge précise atteinte.

    Une analyse par éléments finis en 3D a été effectuée et a pris en compte des détails du délaminage des raccords de fixation principale du C-GPAT, comme l'a révélé l'inspection non destructive. Cette analyse a été validée par un essai réalisé sur un raccord de fixation arrière endommagé. L'essai a indiqué que, lorsque des charges ultimes ont été appliquées au modèle, les niveaux de contraintes n'ont varié que légèrement par rapport à ceux du modèle non endommagé, et qu'ils étaient bien inférieurs aux niveaux requis pour entraîner une rupture des raccords de fixation principale. Le délaminage a donc eu une incidence minimale sur la résistance et la rigidité des raccords de fixation principale. Par conséquent, après la séparation de la gouverne de direction, l'aéronef ne risquait pas de perdre la dérive en vol, que ce soit en raison de la perte de résistance statique ou de la perte de rigidité.

    1.11.2.3 Bras d'articulation

    L'examen en laboratoire du bras d'articulation 1 a révélé que le boulon droit se situait sous la tolérance au point de fixation du bras d'articulation à la dérive. Le raccord situé sur la face arrière de la dérive ne présentait aucun signe visible de dommage, comme des criques dans la peinture ou dans le mastic d'étanchéité, mais le contrôle par ultrasons a révélé un décollement autour des attaches mécaniques. L'extrémité avant des bras d'articulation ne présentait aucun signe de déplacement vers le haut, comme c'était le cas au niveau du bras d'articulation 5. Les restes de la gouverne de direction étaient toujours fixés. Les trois fils de mise à la terre - deux sur le flanc de la dérive et un sur le flanc de la gouverne de direction - étaient attachés et ne portaient aucune trace de brûlure. Aucun signe de débattement extrême d'un bord à l'autre, comme c'est le cas avec les bras d'articulation 5 et 6, n'a été constaté. Des marques d'impact, situées sur le carénage du bord de fuite de la gouverne de direction et causées par les bras d'articulation, ont été relevées. Ces dommages étaient limités à la partie centrale; à noter qu'ils se confondent avec les bras d'articulation lorsque la gouverne de direction n'est pas braquée.

    Au niveau des charnières 2, 3 et 4, les bras d'articulation sont voisins des actionneurs hydrauliques. Une désynchronisation des actionneurs hydrauliques peut induire des phénomènes de résistance mutuelle susceptibles de causer des dommages au niveau de leurs points de fixation. L'inspection visuelle et l'inspection non destructive des fixations n'ont révélé aucun signe de dommage au niveau de la structure ou des attaches mécaniques. Aucun signe de dommage structural qui aurait pu altérer la rigidité de la fixation de l'actionneur n'a été constaté. Tous les fils de mise à la terre étaient fixés et ne présentaient aucune trace de brûlure. Aucune indication de débattement extrême de la gouverne de direction, comme c'est le cas au niveau des bras d'articulation 5 et 6, n'a été décelée. Le profilé en Z situé au-dessus de l'articulation 4 a été conçu pour transférer des charges verticales de la gouverne de direction vers la dérive. Le raccord de fixation monté au niveau de l'extrémité supérieure du profilé en Z ne présentait aucun signe apparent de détérioration, comme une crique dans la peinture ou dans le mastic d'étanchéité, mais des éclats de peinture ont été relevés sur sa surface supérieure. Ce dommage a probablement été causé par l'extrémité supérieure de la gouverne de direction lorsqu'elle s'est détachée et qu'elle est tombée à la verticale.

    Au niveau de la charnière 5, les bras d'articulation en métal étaient fermement fixés au raccord situé sur la face arrière du longeron arrière de la dérive, et le raccord ne présentait aucun signe de dommage visible, comme des criques dans la peinture ou dans le mastic d'étanchéité. Les dommages constatés sur les extrémités avant des bras d'articulation correspondent à un déplacement des bras d'articulation vers le haut. La ferrure d'articulation côté gouverne de direction était fixée de même qu'une petite section du longeron de la gouverne de direction mesurant environ 23 cm de hauteur sur 26 cm de largeur. Le contrôle par ultrasons n'a révélé aucun décollement autour des attaches mécaniques utilisées pour fixer le raccord en CFRP au longeron arrière de la dérive; en revanche, la majeure partie de la couche de calage qui sert à régler l'épaisseur du raccord en CFRP était décollée.

    Tous les fils de mise à la terre étaient fixés et ne présentaient aucune trace de brûlure. L'extrémité avant de la tresse de métallisation côté gouverne de direction était sérieusement effilochée, à peu près au niveau du boulon d'articulation. Le bras d'articulation présentait des dommages causés par les débattements extrêmes du raccord de charnière de la gouverne de direction, débattements qui ont atteint pratiquement 90° de chaque côté.

    D'après les schémas du constructeur, lorsque le débattement de la gouverne de direction est de 45°, l'échancrure du carénage de bord d'attaque de la gouverne de direction vient heurter le bras d'articulation. Pour un débattement de 60°, le raccord d'articulation côté gouverne de direction vient heurter le bras d'articulation. À 84°, le panneau latéral de la gouverne de direction vient heurter le panneau du bord de fuite de la dérive. Aucun dommage n'a été constaté sur le bras d'articulation à l'endroit où serait venu heurter le carénage de bord d'attaque lorsque la gouverne de direction a atteint un débattement de 45°, et aucun dommage n'a été relevé non plus sur le bord de fuite de la dérive à l'endroit où la gouverne de direction serait venue buter alors que son débattement atteignait 84°. L'absence de détérioration à ces endroits indique que les dommages causés par le débattement extrême d'un bord à l'autre se sont produits après la perte de la gouverne de direction et qu'ils seraient apparus tandis que la gouverne de direction atteignait un débattement de 60°, pour se propager jusqu'à ce que le débattement de la gouverne de direction atteigne 90° environ.

    Au niveau de la charnière 6, les bras d'articulation en métal étaient fermement fixés au raccord situé sur la face arrière de la dérive, et le raccord ne présentait aucun signe de dommage visible. Les extrémités avant des bras d'articulation ne comportaient aucune indication de course vers le haut. La ferrure d'articulation côté gouverne de direction était toujours fixée, de même qu'une petite partie du longeron de la gouverne de direction, mesurant environ 15 cm de haut sur 22 cm de large. Le contrôle par ultrasons a révélé la présence d'un décollement autour des attaches mécaniques utilisées pour fixer le raccord en CFRP au longeron arrière de la dérive. Tous les fils de mise à la terre étaient fixés et ils ne présentaient aucune trace de brûlure. Le boulon qui permet de fixer le côté gauche du bras d'articulation à la dérive était quasiment grippé.

    Le bras d'articulation a été endommagé par les débattements extrêmes de chaque côté de la gouverne de direction, précisément à l'endroit où le raccord de charnière côté gouverne de direction est venu heurter le bras d'articulation; ces débattements ont atteint pratiquement 90° de chaque côté. Les dommages étaient moins graves que ceux subis au niveau du bras d'articulation 5. Les schémas du constructeur indiquent que pour un débattement de la gouverne de direction de 43°, l'échancrure du carénage du bord d'attaque de la gouverne de direction vient heurter le bras d'articulation. Lorsque le débattement atteint 70°, le raccord de charnière côté gouverne de direction vient heurter le bras d'articulation. Lorsque le débattement atteint 84°, le panneau latéral de la gouverne de direction vient heurter le panneau du bord de fuite de la dérive.

    Aucun dommage n'a été constaté sur le bras d'articulation, à l'endroit où le carénage du bord d'attaque serait venu heurter lors d'un débattement de gouverne de direction de 43°, et aucun dommage n'a été observé non plus sur le bord de fuite de la dérive, à l'endroit où la gouverne de direction serait venue buter alors que son débattement atteignait 84°. L'absence de dommages à ces endroits indique que les dommages causés par les débattements extrêmes se sont produits après la perte de la gouverne de direction et qu'ils seraient apparus au moment où le débattement de la gouverne de direction atteignait 70°, pour se propager ensuite jusqu'à ce que le débattement de la gouverne de direction atteigne environ 90°.

    Au niveau de la charnière 7, le raccord de fixation en CFRP côté dérive s'était rompu et s'était détaché.

    1.11.3 Dommages à la gouverne de direction

    1.11.3.1 Généralités
    Photo 3. Vue de la dérive et des restes de la gouverne de direction - côté gauche
    Image
    Photo of Vue de la dérive et des restes de la gouverne de direction - côté gauche

    Comme il en sera question plus loin dans le rapport, une analyse subséquente a révélé que la perte de la gouverne de direction en vol avait été progressive et, que le temps que l'avion se pose, la plus grande partie de la gouverne s'était séparée de l'avion. La Photo 3 montre l'empennage après l'atterrissage à Varadero. Les morceaux arrachés sont tombés dans l'océan et aucun n'a pu être récupéré. La nervure 0 est restée fixée, de même qu'une partie de longeron de la gouverne de direction allant jusqu'au point d'articulation 4. Une petite partie des deux panneaux latéraux de la gouverne de direction est restée fixée au longeron, dans la zone située entre les points d'articulation 2 et 4, ainsi que dans le coin où le longeron rejoint la nervure 0. Les carénages de bord d'attaque situés entre les points d'articulation 2 et 4, et au-dessous du point d'articulation 1, étaient toujours fixés. Le carénage de bord d'attaque entre les points d'articulation 1 et 2 s'est détaché, et certaines pièces étaient coincées entre la gouverne de direction et la dérive. Au niveau des points d'articulation 5 et 6, de petits morceaux du longeron de la gouverne de direction sont restés fixés au bras d'articulation. Au point d'articulation 7, la ferrure d'articulation côté dérive a cédé, puis s'est détachée, ce qui fait qu'il ne restait rien de la gouverne de direction.

    1.11.3.2 Description détaillée des dommages à la gouverne de direction

    La face avant du longeron de la gouverne de direction était plus propre au niveau des points d'articulation, ce qui s'explique si les zones de charnière avaient été nettoyées en vue d'une inspection. La face arrière du longeron de la gouverne de direction était globalement propre sur toute sa longueur, pour devenir légèrement plus sale vers la partie inférieure. Des traces de coulures orientées vers le bas et commençant au niveau des trous d'allègement ont été constatées; celles-ci correspondent à des taches causées habituellement en service par les coulures de liquide hydraulique, d'inhibiteur de corrosion ou d'autres liquides. Des taches sombres ont été observées à l'intérieur des panneaux latéraux, à l'endroit où les boulons de renfort traversent les blocs en GFRP au niveau des points d'articulation. Ces taches ont pris naissance au niveau des boulons, puis elles se sont propagées vers le bas. Les feuilles qui recouvrent habituellement les trous d'allègement disposés sur le longeron de la gouverne de direction étaient absentes, et les traces de saleté présentes autour de chaque trou d'allègement laissent penser que les feuilles ont dû être retirées longtemps avant l'incident. La surface supérieure de la nervure 0 était très sale. Aucune tache laissant supposer que du liquide se serait accumulé dans la partie inférieure de la gouverne de direction n'a été décelée à l'intérieur de la partie inférieure. Les trous d'évacuation de liquides et les voies de drainage situés à la partie inférieure de la gouverne de direction n'étaient pas obstrués. Les alvéoles des nids d'abeilles ne présentaient aucune tache laissant croire à la présence de liquide emprisonné; à noter qu'il restait peu de nids d'abeilles à inspecter.

    Un examen de la section transversale du revêtement externe de la gouverne de direction a révélé la présence de 10 couches de peinture composées de peinture primaire, d'enduit antistatique, d'enduit d'apprêt et de couche de finition. Une superposition de trois couches de peinture successives a été constatée. Un calcul a permis de déterminer que la masse des deux couches de peinture supplémentaires avoisinait les 19,3 kg. La masse totale d'une gouverne de direction avec le revêtement standard par peinture est d'environ 190 kg.

    On a examiné la petite partie de gouverne de direction restante à la recherche de trace d'impact avec du matériel de maintenance, des corps étrangers ou de dommage causé par une mauvaise utilisation. Seule une marque de meulage circulaire sur l'extérieur du panneau latéral droit a été relevée. Un examen de section transversale a permis de constater que cette marque entamait uniquement les premières couches de peinture et qu'il n'y avait ni dommage au niveau du CFRP ni ternissement causé par la chaleur.

    Trois plaques de protection contre la foudre sont disposées dans le sens de la corde, de chaque côté de la gouverne de direction. Sur la gouverne de direction du C-GPAT, la plaque inférieure droite avait été remplacée lors d'une opération de maintenance récente, en mai 2004. Seule une petite partie de cette plaque est restée en place, et son extrémité brisée était recourbée vers l'avant. Une section du panneau latéral situé au niveau de cette plaque a été prélevée pour subir d'autres analyses en laboratoire.

    La feuille de surface extérieure du panneau latéral droit comportait une multitude de petites marques de surface se propageant dans toutes les directions. Des marques similaires ont été relevées sur un autre avion (numéro de série 600) dont la gouverne de direction avait été inspectée et déclarée intacte. Une coupe transversale de ces marques, sur la gouverne de direction du C-GPAT, a révélé qu'il s'agissait de criques ayant pris naissance dans la peinture et causées par une épaisseur de peinture excessive. Il a par la suite été constaté que lorsqu'une crique dans la peinture était parallèle au sens des fibres de CFRP, la crique pouvait se propager en profondeur dans la matrice de la résine CFRP. Ces criques étaient limitées à la matrice et elles n'ont pas détérioré les fibres.

    Les feuilles de surface en CFRP se sont séparées de l'âme en nid d'abeilles, et cette séparation s'est faite différemment selon qu'il s'agissait d'une feuille de surface intérieure ou extérieure. De manière générale, les feuilles de surface intérieures se sont détachées du nid d'abeilles de façon très nette à proximité de la ligne de jonction. En revanche, les feuilles de surface extérieures se sont détachées du nid d'abeilles en dentelles, et les décollements se sont produits à différentes profondeurs dans le nid d'abeilles.

    L'examen microscopique du décollement du revêtement intérieur a démontré qu'il s'agissait principalement de ruptures cohésives dans le plan de jonction à travers le ménisqueNote de bas de page 10. Le nid d'abeilles a été tellement endommagé durant l'incident qu'il n'a pas été possible de discerner les dommages aux alvéoles du nid d'abeilles qui ont pu être causés par le gel d'eau piégée. Au niveau des actionneurs, les feuilles de surface intérieures en CFRP se sont décollées en quatre plis. Aucun espace majeur n'a été repéré dans la zone d'application de la colle de jonction au niveau des bordures des feuilles de nid d'abeilles. Dans les zones où un décollement s'est produit près d'une jonction du nid d'abeilles, ce décollement s'est le plus souvent manifesté là où la densité du nid d'abeilles était plus faible, et non dans le plan de jonction. Les zones de nid d'abeilles exposées qui n'étaient plus maintenues par le CFRP ont eu tendance à se diviser en une multitude de petits « doigts » dans le sens de la corde, chacun mesurant environ 25 à 50 mm de largeur.

    La rupture du longeron de la gouverne de direction s'est produite juste au-dessus des fixations de l'actionneur hydraulique. L'examen des fibres arrachées indique que le longeron s'est détaché à la fois vers le haut et vers l'arrière. La bande métallique située le long du profilé en Z, au niveau du bord avant de chaque panneau latéral, s'est également rompue à cet endroit, et l'examen a révélé qu'il s'agissait d'une rupture ductile due à une surcharge.

    La Photo 1 montre que seule une petite partie de panneau latéral de gouverne de direction est restée fixée entre les points d'articulation 1 et 2. Dans cette zone, il est resté davantage de nid d'abeilles du côté droit et davantage de revêtement intérieur du côté gauche. Le joint assurant l'interface entre les panneaux latéraux et le longeron, qui comporte des attaches mécaniques aveugles, ne s'est pas rompu, et les attaches étaient intactes. L'examen des ruptures constatées au niveau du joint, entre le longeron avant et les panneaux latéraux, a montré que les panneaux latéraux ou une partie des panneaux latéraux se sont séparés vers l'extérieur. Sur toute la longueur du longeron de la gouverne de direction, entre les points d'articulation 1 et 2, les profilés en Z ont cédé et se sont détachés, de même que le panneau latéral de chaque côté. Le carénage du bord de fuite étant fixé aux profilés en Z, on comprend pourquoi ce carénage manquait dans cette partie. Les raccords de fixation métalliques de l'actionneur au niveau des charnières 2, 3 et 4 n'ont présenté aucun signe de dommage, de déformation ou de desserrage.

    Le joint situé entre les panneaux latéraux et la nervure 0, qui comporte des attaches mécaniques aveugles, n'a pas cédé, et les attaches étaient intactes. Une marque de frottement en travers de la partie supérieure de la nervure 0, compatible avec la section rompue du panneau latéral gauche qui s'est déplacée vers la droite et vers le bas, a été constatée. Il est resté davantage de profilé en Z au niveau de la séparation du panneau latéral gauche que du côté droit. Les orifices des attaches ont été arrachés selon un mouvement orienté vers le bas, ce qui laisse penser que le panneau latéral gauche ou une partie du panneau latéral s'est détaché de la nervure 0 selon une trajectoire allant vers le bas ou vers l'extérieur. Le panneau latéral gauche a également subi un dommage par compression, ce qui indique que le revêtement intérieur s'est déplacé vers le bas durant la séparation. Une rupture décelée dans les restes du profilé en Z montre que le revêtement extérieur s'est déplacé vers l'extérieur pendant la séparation.

    Au niveau de la séparation du panneau latéral droit, une section de profilé en Z s'est rompue et détachée. Des marques ont été relevées sur le bord en CFRP qui était toujours en place, et leur espacement coïncide avec celui des attaches mécaniques manquantes. Ces marques laissent penser que le panneau latéral droit ou une partie du panneau latéral s'est détaché dans un mouvement vers le haut. L'examen de ce même panneau latéral a montré qu'il s'était séparé de la nervure 0 lors d'une rupture en flexion sous tension. Les bandes métalliques disposées le long du profilé en Z ont cédé en raison d'une surcharge, une combinaison de tension et de flexion dirigée vers l'extérieur. Le revêtement était gondolé sur chaque panneau latéral, ce qui s'explique par le déplacement de la nervure 0 vers le haut. Une crique a également été décelée à l'extrémité de la nervure 0, dont l'orientation confirme que cette nervure a été tordue vers la droite.

    L'examen des autres gouvernes de direction, réalisé dans le cadre de l'inspection visant l'ensemble de la flotte suite à l'incident du 8 mars 2005, a permis de constater une détérioration du panneau latéral, au niveau des points de levage et des attaches du bord de fuite. Aucune de ces parties n'ayant été retrouvée sur la gouverne de direction du C-GPAT, il n'a pas été possible de les examiner. De même, étant donné que toute l'extrémité supérieure de la gouverne de direction n'a pas été récupérée, la zone située autour du dommage causé par la foudre en 1997 n'a pas pu être examinée.

    Seule une petite partie du longeron de gouverne de direction au niveau de la charnière 5, soit environ 23 cm de haut sur 26 cm de large, est restée en place. La surface inférieure de la section de longeron englobait le rebord d'un trou d'allègement. La plaque de renfort arrière était toujours fermement fixée au longeron, et toutes ses attaches étaient en place et visiblement intactes. La séparation entre le nid d'abeilles et le revêtement en CFRP a principalement touché le nid d'abeilles à diverses profondeurs, mais pas le long de la ligne de jonction nid d'abeilles/CFRP. Sur la surface avant du longeron, la ferrure d'articulation côté gouverne de direction s'est rompue. Cette surface est typique d'une rupture causée par une surcharge en traction-flexion sans trace de fatigue. L'analyse métallurgique a révélé que les ferrures étaient fabriquées dans un alliage d'aluminium et selon un traitement thermique approprié.

    Seule une petite partie du longeron de gouverne de direction au niveau de la charnière 6, soit environ 15 cm de haut sur 22 cm de large, est restée en place. La surface inférieure de la section de longeron englobait le rebord d'un trou d'allègement. La plaque de renfort arrière était toujours fermement fixée au longeron, et toutes ses attaches étaient en place et visiblement intactes. La séparation entre le nid d'abeilles et le revêtement en CFRP a principalement touché le nid d'abeilles à diverses profondeurs, mais pas le long de la ligne de jonction nid d'abeilles/CFRP. Sur la surface avant du longeron, la ferrure d'articulation côté gouverne de direction s'est rompue. La surface en question est typique d'une rupture causée par une surcharge en traction-flexion sans trace de fatigue. L'analyse métallurgique a permis de conclure que les ferrures étaient fabriquées dans un alliage d'aluminium et selon un traitement thermique approprié.

    1.11.4 Attaque chimique et contamination

    On a vérifié les restes de la gouverne de direction pour explorer la possibilité d'une contamination et d'une altération par une exposition à des produits chimiques. Le constructeur a fourni une liste de consommables approuvés, ainsi que les procédures à suivre pour faire approuver des produits ne figurant pas sur cette liste. Rien n'indique que des consommables non approuvés par l'exploitant aient été utilisés. Aucune utilisation en service ne permet de déduire que des attaques chimiques causées par des consommables approuvés ont posé un problème systématique. Lors du processus de qualification des matériaux mis en oeuvre au stade de la certification, on a effectué des essais poussés afin d'identifier l'interaction entre les matériaux et des contaminants éventuels, y compris du liquide hydraulique. Cependant, l'interface de collage entre le nid d'abeilles et les feuilles de surface en CFRP n'a pas été prise en compte par ces essais, car elle se trouvait dans la structure intérieure et était considérée comme protégée de toute attaque chimique.

    Tout mélange de liquide hydraulique et d'eau peut réagir lorsqu'il atteint certaines concentrations pour donner de l'acide phosphorique, lequel peut attaquer la résine époxyde et provoquer des dommages irréversibles à l'interface nid d'abeilles/feuille de surface. Un examen microscopique de la gouverne de direction de l'avion numéro de série 361, qui a été contaminée par du liquide hydraulique, a révélé que le liquide hydraulique avait attaqué la matrice de la couche en GFRP voisine du nid d'abeilles, ce qui a altéré l'adhésion, sans conduire à un décollement.

    D'après l'expérience acquise en exploitation avec les gouvernes de direction des avions numéros de série 361 et 545, le liquide hydraulique pénètre dans la structure en sandwich en s'infiltrant autour des attaches aveugles situées au niveau des bords avant et inférieur des panneaux latéraux. Trois méthodes ont été mises en oeuvre pour déceler la présence de contamination par du liquide hydraulique : la spectroscopie des rayons X par dispersion d'énergie (EDX), la spectroscopie des photoélectrons X (XPS) et la spectroscopie infrarouge. La gouverne de direction de l'avion numéro de série 361, dont on sait qu'elle a été contaminée par du liquide hydraulique, a été utilisée pour étalonner ces trois méthodes d'analyse. Les essais par EDX réalisés sur les zones franchement tachées par du liquide hydraulique ont révélé une teneur en phosphore d'environ 2 %, et les essais par XPS ont décelé une teneur en ester d'acide phosphorique d'environ 0,8 %.

    La surface supérieure de la nervure 0 du C-GPAT était très sale; une zone située à l'avant, près du longeron, a été analysée. Les résultats des essais par EDX ont indiqué une teneur en phosphore de 0,4 %Note de bas de page 11, ce qui est bien inférieur aux 2 % décelés dans la zone très contaminée de la gouverne de direction de l'avion numéro de série 361. Une portion de revêtement interne (hors nid d'abeilles) provenant du coin inférieur avant du panneau latéral gauche a été analysée. Les résultats des essais par EDX ont indiqué une teneur en phosphore de moins de 0,1 %, ce qui est bien inférieur aux valeurs obtenues avec la gouverne de direction de l'avion numéro de série 361. Une portion de revêtement interne (côté nid d'abeilles) provenant du coin inférieur avant du panneau latéral gauche a été analysée. Les résultats des essais par EDX ont indiqué une teneur en phosphore de 0,3 %, et les résultats des essais par XPS ont indiqué une teneur en ester d'acide phosphorique de 0,18 %, les deux teneurs étant considérablement inférieures aux valeurs obtenues avec la gouverne de direction de l'avion numéro de série 361. Une portion de revêtement interne (côté nid d'abeilles) provenant du coin inférieur avant du panneau latéral droit a été analysée. Les résultats des essais par EDX ont indiqué une teneur en phosphore inférieure à 0,1 %, et les résultats des essais XPS ont indiqué une teneur en ester d'acide phosphorique de 0,07 %, les deux teneurs étant considérablement inférieures aux valeurs obtenues avec la gouverne de direction de l'avion numéro de série 361.

    La voie d'infiltration du liquide hydraulique se situant vraisemblablement autour des attaches aveugles, des spécimens ont été prélevés autour de ces attaches sur les deux panneaux latéraux, au niveau du longeron avant et de la nervure 0. Des mesures ont été prises à l'intérieur de la structure en sandwich, sur la face interne du revêtement. Les résultats des essais par EDX concernant le phosphore présent sur les surfaces intérieures indiquaient tous une teneur inférieure à la limite de détection de 0,1 %. Les résultats des essais par EDX réalisés sur les surfaces externes, au niveau des rivets, ont indiqué des valeurs pouvant atteindre 3,0 %. Par ailleurs, l'examen au microscope de la section transversale de la zone de collage n'a révélé aucune trace visuelle d'attaque chimique. Ces résultats montrent donc la présence de contamination par liquide hydraulique sur les surfaces extérieures, mais aucun signe d'infiltration dans la structure.

    1.11.5 Inspection et mise à l'essai du circuit

    L'inspection du circuit gouverne de direction du a montré que le débattement de la gouverne de direction, en vol de croisière à 270 noeuds, n'aurait pas dépassé 7° de chaque côté; le limiteur de débattement de la direction l'aurait en effet empêché (le limiteur de débattement de la direction ne limite pas seulement les ordres au niveau de la pédale de direction, il limite aussi la somme des commandes provenant du compensateur, des pédales ou de la servocommande en lacet du pilote automatique et de l'amortisseur de lacet). Le pilote automatique était enclenché au moment de l'incident. L'amortisseur de lacet l'était également (l'amortisseur de lacet est également enclenché en vol manuel). L'amortisseur de lacet était réglé pour limiter le débattement de la gouverne de direction à 3,7° maximum de chaque côté afin de compenser la tendance naturelle de l'appareil au roulis hollandais.

    Le dernier contrôle de synchronisation des servocommandes de la gouverne de direction, effectué par le personnel de maintenance d'Air Transat le 1er mars 2005, n'avait révélé aucune anomalie, et aucun réglage ne s'était avéré nécessaire. À Varadero, le contrôle de synchronisation n'a indiqué aucun déplacement entre la position neutre des trois servocommandes; et aucune résistance mutuelle n'a été constatée entre les différentes servocommandes. Par conséquent, la synchronisation entre les servocommandes était conforme aux paramètres du manuel d'entretien aéronef d'Airbus avant et après l'incident.

    L'inspection et l'enquête sur les circuits de commande de vol de l'avion ainsi que sur les composants des sous-systèmes connexes ont été réalisées par l'équipe d'enquête à Varadero après l'incident; elles n'ont révélé aucune anomalie. Le circuit de commande de la gouverne de direction a été vérifié; son bon fonctionnement a été testé à Varadero et aucune anomalie n'a été décelée. Les servocommandes de direction et les bielles de commande à ressort ont ensuite été déposées, inspectées, puis testées en laboratoire, et aucune anomalie susceptible d'avoir altéré le bon fonctionnement de la gouverne de direction n'a été détectée. De plus, tous les dispositifs de sécurité associés aux servocommandes et aux bielles à ressort, qui sont destinés à assurer un fonctionnement sécuritaire en cas de défaillance des servocommandes, fonctionnaient normalement.

    La mesure des jeux sur les points d'articulation 1 à 6 a révélé que le jeu du point d'articulation 2 était hors tolérance. De plus, 3 des 10 roulements de bras d'articulation côté dérive étaient partiellement grippés, mais ils pouvaient toujours tourner. Airbus précise que le jeu du roulement du bras d'articulation n'a aucune incidence sur l'intégrité structurale de la gouverne de direction. Tout jeu au niveau des roulements de bras d'articulation se traduirait par des vibrations perceptibles de la gouverne de direction, lesquelles donneraient lieu à un processus d'inspection pour cause de panne spécifique. Aucune vibration en vol de la gouverne de direction n'a été signalée. Les exploitants possèdent certaines directives de dépannage qui répertorient les causes de vibration les plus probables. À noter que la principale cause des vibrations de la gouverne de direction est la présence d'un jeu au niveau des paliers de servocommandes, plutôt qu'au niveau des bras d'articulation. En vertu de la politique de dépannage d'Airbus, quand aucun jeu n'est constaté au niveau des paliers de servocommandes, ou lorsque les servocommandes sont remplacées et que la situation ne s'améliore pas, l'exploitant doit contacter Airbus pour qu'une enquête soit menée. L'expérience en service d'Airbus a confirmé la pertinence de cette approche.

    1.11.6 Champs de rayonnement à haute intensité (HIRF)

    La possibilité qu'une interférence HIRF ait pu compromettre le fonctionnement normal de la gouverne de direction en vol a été étudiée. Toute oscillation provenant de l'amortisseur de lacet à une fréquence de 20 Hz, ce qui représente la différence de fréquence entre le radar et les fréquences de synchronisation de la gouverne de direction, serait atténuée par l'actionneur de l'amortisseur de lacet et les trois servocommandes qui serviraient de filtres. L'étude du débattement théorique de la gouverne de direction lorsque l'amortisseur de lacet est soumis à des HIRF, en supposant une vulnérabilité à 20 Hz, a établi que le débattement maximum de la gouverne de direction serait inférieur à 0,1°. L'enquête a donc montré que l'effet des HIRF aurait une incidence négligeable sur la gouverne de direction.

    1.11.7 Examen des photos prises avant l'incident

    Photo 4. Photo de l'avion prise avant l'incident
    Image
    Photo of Photo de l'avion prise avant l'incident

    Des photographies de l'avion prises avant l'incident montrent de curieuses caractéristiques visuelles sur la gouverne de direction. La Photo 4 montre une de ces caractéristiques. La photo a été prise 11 jours avant l'incident; on peut y remarquer des lignes verticales de couleur claire sur le côté gauche de la gouverne de direction, en dessous des actionneurs hydrauliques. D'autres photographies, prises quelque temps plutôt, ont également permis de repérer des lignes circulaires sur le panneau latéral gauche, juste à l'arrière des actionneurs hydrauliques, ainsi que des points blancs visibles sur le bord de fuite. Ces détails n'apparaissent pas sur les photographies plus récentes.

    La résolution des photographies n'était pas assez bonne pour procéder à une analyse photogrammétrique qui aurait permis de déterminer si ces lignes verticales représentaient une déformation hors plan, comme une bulle de décollement par exemple. Les caractéristiques des lignes verticales ont été observées sur des photographies prises des jours différents, dans des conditions d'éclairage différentes et par des photographes différents, ce qui signifie qu'elles représentent des caractéristiques physiques réelles de la gouverne de direction et pas simplement des reflets ou des saletés sur l'objectif.

    Les lignes verticales ont été repérées pour la première fois sur des photographies prises au début de l'année 2003. L'aéronef a subi entre-temps toutes les inspections périodiques auxquelles il était assujetti. L'examen d'autres avions a révélé que les taches situées sur la gouverne de direction, près des actionneurs hydrauliques, n'avaient rien d'inhabituel. Des essais plus poussés ont permis de constater que du liquide hydraulique pouvait dissoudre le matériau du décalcomanie de queue Air Transat, et l'analyse d'une traînée verticale sur un avion semblable portant le numéro de série 600 a conclu que la traînée consistait en un mélange de liquide hydraulique et de matériau de décalcomanie dissous.

    1.12 Essais et recherches

    1.12.1 Généralités

    Une série d'examens et d'essais en laboratoire a été effectuée sur les restes de la gouverne de direction du C-GPAT, sur d'autres gouvernes de direction et sur des échantillons. Des analyses de la dynamique du vol, des vibrations aéroélastiques et des données radar ont également eu lieu. Ces travaux ont été exécutés par le constructeur dans ses installations, avec la participation des autorités d'enquêtes nationales concernées et de conseillers spécialistes venus de France, d'Allemagne, des États-Unis et du Canada. La progression des essais a été surveillée et validée par l'équipe d'enquête.

    Un certain nombre d'essais et d'analyses ont permis d'éliminer certaines pistes et d'axer l'enquête sur d'autres pistes jugées pertinentes. Dans un souci de clarté, le rapport est centré sur ce second groupe d'activités.

    Un petit nombre de programmes d'essais élaborés à la suite du présent incident sont toujours en cours sous l'autorité d'autres organismes. Dans chaque cas, les objectifs du programme se sont écartés de la présente enquête pour cibler des problèmes plus génériques.

    1.12.2 Examen de deux gouvernes de direction semblables

    Les gouvernes de direction des avions numéros de série 592 et 614 ont été retirées du service, puis inspectées dans les installations du constructeur. Ces deux gouvernes de direction ont été choisies parce que leurs panneaux latéraux avaient été fabriqués par l'entreprise Soko dans le cadre du même lot de production que la gouverne de direction du C-GPAT. Ces deux gouvernes de direction ont fait l'objet d'une inspection visuelle et d'une mesure de la rigidité des stratifiés (elasticity laminate checker test ou test ELCH) sous la supervision du BST, et aucun dommage n'a été constaté.

    1.12.3 Mesure de la rigidité des stratifiés

    1.12.3.1 Description du test ELCH

    Le test ELCH est une méthode de contrôle non destructif élaborée par Airbus pour détecter la présence de feuilles de surface décollées sur les panneaux en nid d'abeilles. L'appareil utilisé applique une succion à une petite partie de la surface externe d'un panneau et mesure la déflexion qui en résulte. Si la feuille de surface intérieure ou extérieure se décolle, une déflexion plus grande que la normale sera mesurée. L'avantage de cette méthode d'essai est qu'elle permet de repérer tout décollement sur les feuilles de surface intérieures qui sont difficiles d'accès. Le rapport Airbus TN-EV37-579/90 (18 décembre 1990) décrit les résultats de qualification de la procédure d'inspection ELCH.

    1.12.3.2 ELCH 1-Examen complet par grilles de 24 gouvernes de direction de conception similaire

    Une grille de 75 mm a été apposée sur la partie extérieure des panneaux latéraux des gouvernes de direction, et une lecture ELCH a été effectuée à chaque point de grille. Chaque gouverne de direction comportait environ 2000 points d'essais par côté. Cet essai permet de déceler des défauts dont le diamètre peut atteindre une taille minimale de 120 mm. Au total, 24 gouvernes de direction ont subi le test, ce qui inclut les premiers avions de la flotte, en termes de cycles de vol et d'heures de vol. Aucun décollement n'a été constaté.

    1.12.3.3 ELCH 2-Examen effectué sur certaines gouvernes de direction

    Treize gouvernes de direction, dont le numéro de série est proche de la gouverne de direction HF1090 (avion numéro de série 361), ont été sélectionnées pour subir des tests ELCH plus poussés. La zone d'essai consistait en une grille de 50 mm disposée le long de tout le profilé en Z, autour des points de levage et le long des attaches de bord de fuite. Aucun décollement important n'a été constaté.

    1.12.4 Examen subi par d'autres gouvernes de direction

    Au cours de l'enquête, des gouvernes de direction endommagées sur des aéronefs d'autres exploitants ont fait l'objet d'un examen plus poussé.

    L'extrémité inférieure de la gouverne de direction de l'avion numéro de série 251 a été endommagée accidentellement par un équipement d'entretien lors d'opérations de maintenance périodique ordinaires. Une réparation, incluant le remplacement de la plaque de protection contre la foudre inférieure au moyen d'une polymérisation renforcée par chauffage, a été exécutée. L'essai de percussion effectué après la réparation n'a révélé aucun défaut. Un test ELCH a ensuite été réalisé par mesure de précaution. Il a permis de conclure que la chaleur appliquée lors du remplacement de la plaque n'avait provoqué aucun décollement du revêtement intérieur dans la zone de remplacement de la plaque. En revanche, la zone située derrière les fixations du bord de fuite, autour de la réparation visant le dommage par contact, n'a pas réussi l'essai de percussion, et un examen supplémentaire en laboratoire a révélé que le revêtement intérieur était presque entièrement décollé dans la zone de réparation.

    Photo 5. Nid d'abeilles de l'avion numéro de série 361 présentant des taches causées par l'infiltration de liquide hydraulique
    Image
    Photo of Nid d'abeilles de l'avion numéro de série 361 présentant des taches causées par l'infiltration de liquide hydraulique

    Le bord de fuite de la gouverne de direction de l'avion numéro de série 361 a été endommagé après avoir été heurté accidentellement par une plateforme de maintenance lors d'une opération de maintenance. L'inspection effectuée après l'incident a permis de constater un décollement mesurant environ 830 mm de longueur sur 350 mm de hauteur sur la feuille de surface intérieure gauche, près du coin inférieur avant. Une étude des contraintes a indiqué que le décollement n'a pas été provoqué par l'impact contre la plateforme de maintenance. Ce décollement interne n'a pas été décelé par l'essai de percussion externe recommandé dans le AOT-1 (Télex à tous les exploitants - voir le paragraphe 1.14.1). Un examen approfondi a révélé que du liquide hydraulique s'était infiltré dans le panneau latéral gauche autour des attaches aveugles du longeron avant, comme le montre la Photo 5, et que ce liquide avait altéré l'interface de collage entre le nid d'abeilles et la feuille de surface. Outre la contamination par du liquide hydraulique, cette gouverne de direction présentait des traces d'infiltration d'eau autour de certaines attaches de bord de fuite et au bord d'attaque immédiatement derrière le profilé en Z.

    Lors de l'inspection qui a précédé l'application de la nouvelle peinture, environ un litre d'eau a été évacué de la zone entourant le point de levage arrière inférieur droit de la gouverne de direction de l'avion numéro de série 378. L'inspection subséquente a indiqué qu'un ponçage excessif de la vieille peinture avait mis à nu des alvéoles, dans la partie supérieure en GRFP. Le constructeur a alors soumis la surface intégrale des deux panneaux latéraux à un examen aux rayons X, et a constaté d'autres infiltrations d'eau au niveau de certaines vis de bord de fuite. Un examen endoscopique autour des points de levage a montré que des parois alvéolaires du nid d'abeilles avaient été endommagées ou déchirées dans certaines zones touchées.

    Lors de l'inspection AOT-1 de la gouverne de direction de l'avion numéro de série 530, deux traces d'irrégularités potentielles ont été relevées sur la face extérieure du panneau latéral droit, leurs dimensions étant respectivement 80 cm² et 670 cm². Aucune indication visuelle de dommage causé par un impact n'a été constatée à ces endroits. L'examen destructif en laboratoire a permis de déterminer qu'il s'agissait d'un écrasement de l'âme et non d'un décollement. On a ensuite conclu que cet écrasement était survenu durant la polymérisation lors de la fabrication initiale. L'étude des registres de fabrication n'a indiqué aucune dérogation liée à ce dommage. Rien n'indique que cet écart de fabrication a pris de l'ampleur en cours de service. Une analyse des contraintes a permis de déterminer que cet écart avait eu un effet négligeable sur la résistance structurale de la gouverne de direction. La gouverne de direction avait été fabriquée avant la modification 8408 et elle comportait un nid d'abeilles de densité inférieure, plus susceptible de subir un tel dommage par écrasement. Le C-GPAT a été construit après la modification 8408, ce qui signifie qu'il était doté d'un nid d'abeilles ayant une densité supérieure.

    Photo 6. Accumulation de liquide dans le nez de la gouverne de direction de l'avion numéro de série 701
    Image
    Photo of Accumulation de liquide dans le nez de la gouverne de direction de l'avion numéro de série 701

    À l'occasion de l'inspection recommandée par l'AOT-2, du liquide emprisonné a été trouvé dans la zone avant inférieure de la gouverne de direction de l'avion numéro de série 701 (Photo 6). Le liquide n'a pas été formellement identifié, mais il s'agirait principalement d'eau mélangée à des saletés contenant peut-être du liquide hydraulique et des fragments de mastic d'étanchéité. D'après les constatations, le niveau de liquide atteignait le trou d'inspection inférieur. En revanche, le caisson de la gouverne de direction à l'arrière du longeron était sec. Les deux orifices de vidange situés dans le nez étaient bouchés. L'essai de percussion n'a révélé aucun signe de décollement. Une inspection aux rayons X et par thermographie effectuée sur les panneaux latéraux, à proximité du liquide, n'a révélé aucune présence de liquide piégé à l'intérieur du sandwich.

    1.12.5 Programme portant sur la contamination par des liquides

    À la suite des résultats obtenus sur l'avion numéro de série 361, une autre enquête a été diligentée par le National Transportation Safety Board (NTSB), avec l'aide d'Airbus, afin d'aborder les problèmes de contamination par des liquides hydrauliques et leur incidence sur la résistance structurale. Ce programme est en cours, mais les conclusions préliminaires indiquent d'ores et déjà ce qui suit :

    • La contamination par des liquides hydrauliques n'a pas d'effets immédiats sur la résistance mécanique; les effets apparaissent au bout d'un certain temps.
    • Les effets d'un mélange de liquide hydraulique et d'eau sont plus graves que ceux du liquide hydraulique seul.
    • Les effets d'un mélange de liquide hydraulique et d'eau ou d'un liquide hydraulique seul ne sont pas réversibles, tandis que les effets de l'eau seule le sont.

    1.12.6 Essais de résistance aux chocs

    Une série d'essais de résistance aux chocs a été réalisée pour permettre de savoir s'ils pouvaient provoquer un décollement entre le nid d'abeilles et les feuilles de surface en CFRP. Des épreuves de chute à partir d'une tour ont été effectuées avec des impacteurs sphériques dotés d'un nez ayant un rayon compris entre 12,5 mm et 100 mm. Les panneaux d'essais comportaient des âmes en nid d'abeilles de 40 mm d'épaisseur ayant une densité de 32 kg/m3, ainsi que des feuilles de surface avec un pli en CFRP et un pli en GFRP. Des épreuves de chute plus poussées à partir d'une tour ont été effectuées avec un impacteur sphérique doté d'un nez ayant un rayon de 2000 mm et avec un impacteur cylindrique ayant un rayon de 100 mm. Ces essais se sont soldés par l'écrasement du nid d'abeilles ou la perforation des feuilles de surface, selon le niveau d'énergie appliquée, mais aucun décollement ne s'est produit.

    Les chapitres 12-21-11 (Nettoyage), 12-31-11 (Antigivrage) et 12-31-12 (Déneigement et déglaçage) du manuel d'entretien aéronef d'Airbus précisent que la pression d'impact générée par des buses de pulvérisation ne doit pas dépasser 0,35 bar. Les pulvérisations haute pression peuvent endommager la structure en nid d'abeilles. Une enquête dans les installations de maintenance et de dégivrage a démontré que l'utilisation de pressions de pulvérisation comprises entre 3,4 et 4,1 bars était monnaie courante, et que des pressions maximales pouvaient atteindre 10,2 bars. Il faut cependant souligner que la force d'impact générée par une buse de pulvérisation dépend de nombreux facteurs, incluant la largeur de la pulvérisation et la distance de la buse par rapport à l'avion. Airbus signale qu'elle n'a pas connaissance de dommages causés par des pressions pouvant atteindre 1 bar au point d'impact. Aucun essai de dommages par impact de liquide n'a été effectué au cours de la présente enquête. Par contre, on considère que la mauvaise utilisation d'une pulvérisation haute pression causerait fort probablement des dommages semblables à ceux causés par l'impact d'un objet contondant et entraînerait l'écrasement de l'âme, mais aucun décollement. On a également indiqué que le C-GPAT avait été dégivré pour la dernière fois le 19 février 2005, soit deux semaines environ avant l'incident.

    1.12.7 Essais en laboratoire des restes de la gouverne de direction

    1.12.7.1 Généralités

    Seule une petite partie de la gouverne de direction du C-GPAT a été récupérée. Les résidus de nid d'abeilles ont été examinés, et leur densité était conforme aux dessins de fabrication.

    Un examen par microscopie photonique des spécimens de la gouverne de direction a dévoilé la section transversale en forme de haricot typique des fibres de carbone Toray T300, qui est conforme aux spécifications de conception.

    Des spécimens ont été prélevés sur les feuilles de surface en CFRP des deux panneaux latéraux, la nervure 0, le longeron avant et la ferrure côté empennage du point d'articulation 7. Un seul écart par rapport aux dessins techniques a été constaté : une couche de renfort supplémentaire disposée sur le longeron avant, autour d'un des trous d'accès, était orientée dans le mauvais sens. Les registres de fabrication ne font état d'aucune dérogation concernant cet écart. La rupture du longeron avant n'a pas traversé cette superposition de couches. Une étude des contraintes a permis de conclure que cet écart avait une incidence négligeable sur la résistance et la rigidité. Hormis cet écart, toutes les superpositions de couches étaient conformes aux dessins du constructeur.

    1.12.7.2 Collage entre le nid d'abeilles et les feuilles de surface

    On évalue habituellement la qualité du collage entre le nid d'abeilles et les feuilles de surface au moyen d'un essai de pelage par cylindre rotatif. Les restes intacts de la gouverne de direction étant insuffisants, il n'a pas été possible de procéder à cet essai. La seule autre méthode d'évaluation de ce collage consiste à examiner la forme du ménisque à l'interface entre le nid d'abeilles et les feuilles de surface. On a prélevé un certain nombre de spécimens de section transversale afin d'en examiner le ménisque. Globalement, la formation du ménisque était identique à celle des panneaux de référence.

    1.12.7.3 Collage au niveau du profilé en Z
    Figure 6. Pression de collage insuffisante près du profilé en Z
    Image
    Photo of Pression de collage insuffisante près du profilé en Z

    Les bords avant et inférieur de chaque panneau latéral de gouverne de direction sont garnis d'un profilé en Z. Des spécimens de collage du revêtement intérieur prélevés près du profilé en Z, le long du bord avant du panneau latéral gauche de la gouverne de direction, comportaient un ménisque dont l'aspect est révélateur d'une pression de collage insuffisante sur une largeur de 20 mm. L'enquête a montré que cet aspect était dû soit à une pression insuffisante de la plaque d'acier durant la polymérisation résultant d'un mauvais positionnement du profilé en Z ou d'une succession de jeux au niveau des composants. À la Figure 6, le croquis du haut montre l'application appropriée de l'autoclave durant la polymérisation, tandis que le croquis du bas montre comment des tolérances dimensionnelles peuvent entraîner une pression de collage insuffisante près du profilé en Z.

    1.12.7.4 Collage interlaminaire entre les couches de feuilles de surface

    La qualité du collage interlaminaire entre les différentes couches de feuilles de surface a été évaluée par l'intermédiaire d'un examen microscopique des sections. Aucune caractéristique inhabituelle qui aurait indiqué une mauvaise qualité de collage n'a été observée.

    1.12.7.5 Collage de jonction

    Une pâte a été utilisée pour effectuer le collage sur le pourtour des blocs de nid d'abeilles. De petits jeux ont été observés dans la zone de collage à certains endroits, mais leurs conséquences sur la résistance de la jonction sont minimes. Des essais par spectroscopie infrarouge ont confirmé que le matériau de collage de jonction utilisé était approprié.

    1.12.7.6 Type de résines

    Des résines prélevées sur les restes de la gouverne de direction ont été identifiées au moyen d'essais par spectroscopie infrarouge combinés à des examens microscopiques visuels. Les résines de la gouverne de direction correspondaient à des résines Hexcel F550 pour le CFRP et EHG250 ou EP112 pour le GFRP, mais il n'a pas été possible de discerner les résines EHG250 des résines EP112, leur formulation et leur processus de fabrication étant similaires. Les essais ont confirmé que des types de résines approuvés ont été utilisés.

    1.12.7.7 Polymérisation des résines

    Des analyses calorimétriques à compensation de puissance ont été réalisées afin de déterminer la conformité de la polymérisation des résines. Toutes les polymérisations ont dépassé les 98 %. Avec ces types de résine, toute valeur supérieure à 95 % est acceptable.

    1.12.7.8 Remplacement des plaques de protection contre la foudre

    La zone englobant la plaque inférieure droite de protection contre la foudre réparée récemment a été examinée. La spectroscopie infrarouge a permis de constater que l'adhésif utilisé pour coller les nouvelles plaques était de l'Hysol EA934 NA, comme le précisait le manuel de réparations structurales. Un spécimen de section transversale de la couche en CFRP apposée sous la plaque a été inspecté au microscope, et la seule caractéristique inhabituelle décelée a été une fissure de matrice dans le CFRP. Afin d'avoir une référence aux fins de comparaison, une plaque a été pelée d'un panneau latéral de gouverne de direction comparable. L'essai de percussion effectué sur le spécimen de comparaison a révélé que le pelage n'avait pas entraîné de décollement, et un examen microscopique de la section transversale de CFRP a permis de déceler une fissure de matrice identique à celle décelée dans la gouverne de direction en question.

    1.12.7.9 Particules de peinture au niveau du profilé en Z

    La zone voisine des particules de peinture du profilé en Z a été examinée par EDX. Cette analyse n'a montré aucune trace de titane ou de limailles d'acier dans les zones montrant des particules de peinture, qui aurait été causée par un contact avec des attaches mécaniques de la partie supérieure de la gouverne de direction qui s'est détachée vers le bas.

    1.12.7.10 Dommages causés par une explosion

    Les restes de la gouverne de direction et la dérive ont été inspectés à l'oeil nu par des spécialistes en explosifs de la police allemande. L'inspection n'a révélé aucun signe de dommage ou de traces de résidus en forme d'étoile, comme cela aurait été le cas si une explosion s'était produite.

    1.12.8 Essais sur double éprouvette en porte-à-faux (DCB)

    L'essai DCB (double cantilever beam test), spécification D5528 de l'American Society for Testing and Materials, a été adapté pour déterminer la ténacité à la rupture de l'interface entre l'âme en nid d'abeilles et les feuilles de surface. L'éprouvette standard mesure 50 mm de largeur, 220 mm de longueur et comporte une crique ayant une longueur initiale de 35 mm. Dans le cadre de la présente enquête, on a modifié l'éprouvette par rapport à la norme afin d'installer des tôles de renfort en aluminium de 0,8 mm et 1,6 mm d'épaisseur par-dessus les feuilles de surface en vue d'obtenir des angles de pelage plus représentatifs d'un décollement qui se propage. Les échantillons DCB subissent actuellement des essais statiques et de fatigue.

    1.12.9 Propagation du décollement

    1.12.9.1 Éléments d'information concernant les gouvernes de direction AFRP de conception antérieure

    Auparavant, lorsqu'ils concevaient les gouvernes de direction, les constructeurs utilisaient du GFRP en guise de couche de raccordement entre le nid d'abeilles et le CFRP uniquement dans la zone renforcée entourant les actionneurs hydrauliques. Ailleurs, les constructeurs utilisaient du plastique AFRP. Le plastique AFRP se caractérisait par une mauvaise résistance de l'adhésion du revêtement intérieur. Les revêtements intérieurs de ce type de gouvernes de direction ont subi des décollements importants en cours d'exploitation. Les gouvernes de direction AFRP de conception antérieure étaient dotées de panneaux latéraux en deux parties, une partie supérieure et une partie inférieure. Sur la gouverne de direction de l'avion numéro de série 237, la propagation du décollement a été arrêtée par la jonction de ces deux parties et ne s'est pas étendue au-delà. Des décollements ont été décelés en cours d'exploitation à l'occasion d'une vérification périodique, mais ils n'ont pas entraîné la séparation de la gouverne de direction ni altéré les performances de l'appareil. Les gouvernes de direction en AFRP ne sont plus en service.

    1.12.9.2 Effets de la température

    Des essais ont été réalisés pour permettre d'étudier les effets de la température sur la résistance hors plan, en termes de résistance au pelage par cylindre rotatif et de ténacité à la rupture (G1c) mesurées au moyen d'un test DCB modifié. Les essais de pelage par cylindre rotatif se sont déroulés à température ambiante et à −55 °C. À température ambiante, les ruptures se sont le plus souvent produites dans l'âme en nid d'abeilles, tandis qu'à −55 °C., elles se sont produites dans le plan de jonction d'interface entre le nid d'abeilles et la feuille de surface. On a constaté que la résistance au pelage à basse température était considérablement réduite, jusqu'à environ 45 à 67 % de sa valeur à température ambiante. L'angle de pente utilisé dans cette méthode d'essai n'est pas représentatif de l'angle faible auquel un décollement se propagerait dans la gouverne de direction, c'est pourquoi des essais DCB ont également eu lieu.

    Des essais DCB ont été effectués à température ambiante et à −55 °C.. Dans tous les cas, la rupture avait tendance à se produire dans l'âme en nid d'abeilles, quelle que soit la température. En revanche, les essais réalisés à basse température ont démontré des valeurs de ténacité à la rupture inférieures d'environ 20 %. De plus, la propagation du décollement à température ambiante était stable et continue, tandis qu'elle était instable à basse température.

    1.12.9.3 Essais de cycles de fonctionnement sous vide

    Des panneaux d'essais présentant divers dommages naturels et artificiels ont été placés dans une chambre à vide et ont subi des cycles à une pression différentielle de -0,7 bar afin de simuler des cycles de fonctionnement sol-air. Les essais ont été accélérés, chaque cycle ayant une durée de 90 secondes depuis le sol jusqu'en altitude et de l'altitude jusqu'au sol. En temps réel, un cycle de vol dure 540 minutes. La durée de vie d'un avion est de 48 000 cycles. Pour obtenir des résultats prudents, on a scellé complètement les bords de tous les panneaux mis à l'essai afin d'éviter toute infiltration d'air.

    Les résultats suivants ont été obtenus :

    • Un échantillon prélevé sur le panneau latéral gauche endommagé de la gouverne de direction de l'avion numéro de série 361, qui comportait la zone décollée (environ 2256 cm²), a été soumis à des cycles de fonctionnement sous vide à température ambiante. La zone englobant le dommage a pratiquement doublé instantanément à une pression de 0,44 bar (absolue). Le phénomène, dont la propagation a été rapide, s'est traduit par une explosion forte et violente et a causé des dommages à l'intérieur de l'enceinte d'essais. Pendant l'essai, une crique superficielle s'est propagée dans la feuille de surface en CFRP au niveau de la bordure du panneau (Photo 7). Cette fracture a interrompu la propagation du dommage en supprimant la pression différentielle.
    Photo 7. Propagation des dommages après un cycle de fonctionnement sous vide (gouverne de direction de l'avion numéro de série 361)
    Image
    Photo of Propagation des dommages après un cycle de fonctionnement sous vide (gouverne de direction de l'avion numéro de série 361)
    • Un échantillon prélevé sur le panneau latéral droit de la gouverne de direction de l'avion numéro de série 361 a également été soumis à des tests. Du fait qu'il était intact, un décollement artificiel (environ 338 cm²) a été créé. L'échantillon a ensuite été soumis à un cycle de fonctionnement sous vide avec un changement de pression (DELTA P) de -0,7 bar à température ambiante. Le spécimen a subi l'ensemble du programme d'essai sans se rompre.
    • Huit panneaux d'essai ont été construits comprenant des âmes d'une densité de 24 et de 32 kg/m3 et des épaisseurs de 30 et 40 mm. On a causé des dommages en allongeant un décollement au moyen d'un coup de couteau. Les dommages artificiels avaient des diamètres compris entre 100 et 250 mm. Lorsqu'ils ont été exposés à des charges cycliques sous vide, quatre de ces panneaux ont montré une croissance lente mais constante du décollement et ont fini par se rompre à la suite d'une propagation rapide.
    • Une éprouvette provenant du programme d'essai d'impact par objet contondant et dont l'âme avait été écrasée mais qui ne présentait aucun décollement a subi 10 000 cycles de vol sans que le dommage ne se propage.

    1.12.10 Simulation sur ordinateur de la propagation du décollement

    • Le panneau latéral de la gouverne de direction (avion numéro de série 361) touché par le décollement, tel qu'il était au moment où il a été détecté, était suffisamment grand pour faire l'objet d'une propagation instable à une altitude-pression réduite. La propagation ne s'étant pas produite en vol, il est fort probable que le panneau a subi une fuite durant le laps de temps qui a précédé la détection.
    • Un décollement, ayant une taille correspondant à la zone contaminée initiale de la gouverne de direction (avion numéro de série 361), ne s'est pas propagé à une altitude-pression réduite.
    • Lorsqu'un décollement, ayant une taille correspondant à la zone contaminée initiale de la gouverne de direction (avion numéro de série 361), a été combiné à un décollement au niveau des profilés en Z, dans le coin avant inférieur du panneau latéral, une propagation instable du décollement s'est produite à une altitude-pression réduite.

    1.12.11 Effets de la température et de l'humidité

    L'eau à l'état liquide qui est piégée dans le nid d'abeilles se dilate à mesure qu'elle gèle, et la répétition du cycle gel-dégel peut, au fil du temps, détériorer les parois des alvéoles. Sur d'autres gouvernes de direction, pour lesquelles l'infiltration d'eau dans les nids d'abeilles a été documentée, cette infiltration s'est le plus souvent produite autour des points de levage ou à proximité des attaches de bord de fuite. Ces zones représentent les voies d'infiltration d'eau les plus probables, car ces caractéristiques de conception présentent une cassure dans la continuité des feuilles de surface en CFRP. Sur la gouverne de direction du C-GPAT, ces zones n'ont pas été retrouvées, et il n'a pas été possible de déterminer si le nid d'abeilles de la gouverne de direction avait fait l'objet d'infiltrations d'eau liquide.

    La matrice époxyde des feuilles de surface et le matériau de l'âme en Nomex® peuvent absorber l'humidité présente dans l'air humide ou dans l'eau condensée. L'absorption d'humidité altère les propriétés mécaniques, notamment celles des feuilles de surface où la matrice ou l'interface matricielle prédomine, et plus particulièrement à des températures élevées. Lors de la certification, la résistance statique de la structure composite a été corroborée sur la foi d'un cas pessimiste de teneur en humidité maximum en service et d'essais à une température élevée.

    La température d'un aéronef peut atteindre des niveaux extrêmes lorsqu'il est stationné au sol, en raison de la température ambiante, du rayonnement solaire et de la couleur de l'appareil. La gouverne de direction du C-GPAT était peinte en bleu foncé, et la livrée précédente se caractérisait par une bande noire peinte en travers de la gouverne de direction. Le document DOT/FAA/AR-04/30 du département des Transports des États-Unis décrit des essais de panneaux en stratifié CFRP de couleurs différentes, dont la température a été mesurée lors d'une exposition aux rayons du soleil. La température la plus élevée était de 82 °C à une température ambiante de 33 °C. Aucune analyse thermique n'a été effectuée concernant la gouverne de direction de l'A310, mais l'analyse thermique du caisson de dérive d'un autre modèle d'avion de transport a permis de relever des températures maximales de 91 °C en air calme au sol, et de 76 °C en déplacement.

    Des températures élevées peuvent avoir des conséquences néfastes sur les propriétés mécaniques des matériaux composites. Si la température de transition vitreuse du matériau est dépassée alors qu'il endure une contrainte, il se peut que la structure subisse une déformation plastique. Le début de la température de transition vitreuse de la résine F550/EHG250 est de 102 °C à sec ou 75 °C en conditions humides. Étant donné l'âge de la gouverne de direction du C-GPAT, l'apparition de sa température de transition vitreuse a probablement atteint son état saturé ou d'équilibre et était plus proche de 75 °C.

    1.12.12 Dégradation des structures et des matériaux liée au vieillissement

    La possibilité que certains phénomènes inconnus à l'oeuvre aient pu causer une diminution de la rigidité structurale au fil du vieillissement de l'avion a été étudiée. Une telle diminution de la rigidité a pu entraîner une réduction de la vitesse à laquelle apparaissaient des vibrations aéroélastiques et mener à l'apparition de celles-ci. En 2004, Airbus a effectué des essais de vibration au sol dans le cadre de son programme MRTT. Les essais ont été effectués sur un vieil appareil A310 (numéro de série 523) qui totalisait plus de 28 000 heures de vol. La conception de la gouverne de direction et de la dérive de cet appareil était identique à celle du C-GPAT. Les résultats des essais de vibration au sol ont permis de constater que les fréquences de flexion de la dérive et de rotation de la gouverne de direction de l'avion d'essai de type MRTT coïncidaient avec celles relevées au cours de la certification initiale de l'appareil A310-300. Rien n'indique que la rigidité ait diminué avec l'âge de l'avion.

    Le rapport Airbus TN-ESWCG-1181/02 présente les résultats d'une enquête précédente portant sur la modification des propriétés des matériaux avec le vieillissement. La température de transition vitreuse (Tg) a été mesurée sur des échantillons de matériaux CFRP Hexcel F913 et F550 ainsi que sur des échantillons de matériaux GFRP EHG250. Ces résultats ont été comparés avec ceux relevés sur des échantillons analysés 14 ans plus tôt lors d'une qualification de matériaux, et aucun signe de dégradation Tg liée au vieillissement n'a été observé.

    Des essais de pelage par cylindre rotatif ont été réalisés sur des spécimens prélevés sur les deux panneaux de référence non utilisés, qui avaient approximativement le même âge que la gouverne de direction du C-GPAT. Les résultats des essais correspondaient aux attentes, et aucun signe de dégradation de la résistance au pelage liée à l'âge n'a été observé.

    1.12.13 Analyse de la dynamique du vol

    1.12.13.1 Contexte

    Pour étudier les réactions de l'avion au cours de l'incident, le modèle de vol de l'Airbus A310 a été configuré de manière à simuler le comportement de l'appareil à la suite d'une perte de gouverne de direction. Il a d'abord fallu déterminer le mouvement des gouvernes (ailerons, gouverne de direction, gouverne de profondeur et déporteurs). Pour ce faire, les données DFDR et DAR ont été exploitées. Il a également été nécessaire de dériver des paramètres qui n'étaient pas directement accessibles dans le DFDR, tels que la glissade, et de modifier les paramètres existants afin de prendre en compte la latence des données. Les caractéristiques de masse de l'appareil (masse, inertie, CG) au moment de l'incident ont été obtenues à l'aide du devis de masse et centrage du vol TSC961. Pour modifier la configuration de l'aéronef afin de simuler la perte de la gouverne de direction, il a fallu modifier les coefficients aérodynamiques sur l'axe transversal/directionnel pour tenir compte de la perte de surface. Cette modification a été réalisée par l'application d'un ratio modulable aux coefficients aérodynamiques appropriés, ce qui permet d'étudier des pertes de gouverne de direction d'importance variée.

    1.12.13.2 Simulations initiales

    Sept simulations initiales ont été effectuées, et les résultats ont été comparés avec les données FDR et DAR pour qu'on sache s'il était possible de les appliquer au scénario simulant l'incident. Parmi les sept simulations, quatre avaient trait à des pertes de gouverne de direction d'importance variée et des caractéristiques de masse de l'appareil différentes. Trois simulations ont été réalisées dans le but d'évaluer d'autres comportements de l'avion liés à l'incident. La tranche horaire visée allait de 7 h 1 min 57 s (environ 4 secondes avant que le pilote automatique no 2 soit débrayé) à 7 h 2 min 14 s (environ 13 secondes après que le pilote automatique no 2 a été débrayé). L'événement réel n'a pas été simulé, car le simulateur de dynamique de vol ne pouvait pas prendre en compte certains aspects importants de dynamique structurale.

    Les résultats des simulations ont été présentés sous forme de graphique et ils indiquaient différents paramètres de vol horizontal/directionnel, déduits de la simulation, comparés aux données FDR et DAR. Dans tous les cas, les propriétés présentant un intérêt aux fins de comparaison avec les données de vol étaient l'amplitude et la fréquence. La possibilité de faire concorder ces deux propriétés pour l'ensemble des paramètres de l'aéronef permettrait d'obtenir une configuration de simulation identique à celle de l'avion au moment de l'incident.

    La seule simulation qui a fait correspondre raisonnablement la fréquence et l'amplitude des données FDR et DAR est celle portant sur une réduction de 84 % de la gouverne de direction utilisable ainsi qu'une réduction de 10 % du moment d'inertie en lacet. Les calculs du moment d'inertie de l'avion au moment de l'incident étaient précis à 10 % uniquement, ce qui signifie que les caractéristiques de masse de cette simulation étaient dans les limites de calcul de l'aéronef.

    1.12.13.3 Simulations en vue de déterminer la force latérale au niveau de la queue de l'appareil pendant l'incident

    L'événement initial a été caractérisé par des excursions par accélération latérale importantes, ce qui laisse penser que le côté droit de l'avion a subi une force latérale pendant l'événement. Le simulateur de dynamique de vol d'Airbus n'a pas permis d'étudier les aspects de dynamique structurale associés à l'événement initial, mais il a permis d'obtenir des indications quant à l'amplitude de la force requise pour amorcer le mouvement de roulis hollandais.

    La seule manière, pour le simulateur, d'appliquer cette force sur l'appareil a consisté à générer des mouvements de la gouverne de direction. La sollicitation des pédales de direction a été assujettie aux limites de commande des vérins de la gouverne de direction de 60° par seconde. L'accélération latérale simulée induite par la sollicitation des pédales de direction a ensuite été comparée aux données FDR et DAR. Le débattement de la gouverne de direction nécessaire pour obtenir l'accélération latérale a été important si l'on compare avec les données FDR et DAR. Un mouvement de cette amplitude et de cette durée aurait été enregistré par le FDR et le DAR; ce qui indique que la gouverne de direction n'a pas été à l'origine de la force appliquée. La force générée par ce mouvement de gouverne de direction a atteint une valeur maximale de 108 000 newtons (N) appliquée à 7 h 1 min 54 s. Même si l'origine de la force n'est pas connue, cela donne une idée de l'amplitude de la force latérale présente lors de l'événement initial.

    1.12.13.4 Simulations en vue de déterminer la force longitudinale et la force verticale au niveau de la queue de l'appareil pendant l'incident

    Outre l'accélération latérale, les données FDR et DAR ont révélé une augmentation de l'angle d'inclinaison longitudinale, de l'angle d'attaque et de l'accélération verticale durant l'événement initial, ce qui est le signe d'un mouvement de cabré, alors que la position du stabilisateur commandait un mouvement de piqué. Le simulateur de dynamique de vol d'Airbus a été utilisé pour étudier l'amplitude des forces longitudinales et verticales requises pour générer ce mouvement.

    La simulation des forces a été réalisée par la modification du coefficient du moment de tangage, du coefficient de portance et du coefficient de traînée. La combinaison de ces modifications qui a corroboré le mieux les données FDR et DAR a montré qu'une force verticale vers le bas d'environ 36 000 N, exercée 28 m derrière le CG, et qu'une force horizontale vers l'arrière d'environ 35 000 N, exercée à environ 9,5 m au-dessus du CG, s'étaient exercées sur l'avion une seconde environ après l'application de la force latérale décrite plus haut, soit à 7 h 1 min 55 s.

    1.12.13.5 Autres simulations

    D'autres simulations ont été réalisées afin de mieux comprendre les résultats des premières simulations. Ces simulations complémentaires ont couvert une tranche horaire comprise entre 7 h 1 min 50 s et 7 h 2 min 15 s et ont englobé l'épisode de débattement excessif de la gouverne de direction. Quatre simulations ont mis en oeuvre différents scénarios de rupture de la gouverne de direction. La simulation correspondant le plus aux données FDR et DAR a démontré une perte de gouverne de direction de 76 % à 7 h 1 min 28 s, laquelle est passé à 80 % entre 7 h 1 min 32,5 s et 7 h 1 min 33 s, puis à 84 % entre 7 h 1 min 34,5 s et 7 h 1 min 35 s. Fait important constaté à l'occasion de ces simulations : le mouvement de la gouverne de direction enregistré par le FDR et le DAR a été causé par une partie de gouverne de direction qui n'était pas efficace d'un point de vue aérodynamique.

    En combinant les résultats de ces simulations avec ceux de l'enquête consacrée aux forces latérales, longitudinales et verticales, il est possible de déduire le scénario suivant :

    • À 7 h 1 min 54 s, une force latérale d'environ 108 000 N a été appliquée sur l'appareil.
    • Une seconde plus tard, à 7 h 1 min 55 s, une force horizontale de 35 000 N a été appliquée 9,5 m au-dessus du CG, et une force verticale de 36 000 N a été appliquée 28 m derrière le CG.
    • L'application des forces horizontale et verticale a coïncidé avec une perte initiale de 76 % de la gouverne de direction.
    • Pendant environ sept secondes après la perte initiale de la gouverne de direction, cette dernière a continué de se rompre; la perte a atteint 80 % entre 7 h 1 min 59,5 s et 7 h 2, et 84 % à 7 h 2 min 2 s.
    • Les résultats indiquent également que le débattement excessif de la gouverne de direction enregistré par le FDR et le DAR à 7 h 2 min a été causé par une partie de gouverne de direction qui n'était plus efficace d'un point de vue aérodynamique.
    1.12.13.6 Modélisation de l'amortisseur de lacet

    Après l'événement initial, les données FDR et DAR indiquent que le mouvement de la gouverne de direction était de type sinusoïdal, et l'analyse de sa fréquence indique que celle-ci était identique à la fréquence de l'accélération latérale. Cela signifierait que le mouvement de la gouverne de direction était lié à celui de l'avion. L'une des théories envisagées pour le mouvement de la gouverne de direction est le fonctionnement de l'amortisseur de lacet. Pour confirmer cette théorie, l'amortisseur de lacet a été modélisé d'après les informations sur la mécanisation de l'amortisseur de lacet fournies par Airbus.

    Lorsque le modèle d'amortisseur de lacet a été comparé aux données FDR et DAR concernant les mouvements de la gouverne de direction, corrigées afin qu'on extraie un écart du détecteur de mouvement de la gouverne de direction et un décalage de temps introduit par le concentrateur d'acquisition de données du système, il a montré que les mouvements de la gouverne de direction ont concordé de près avec les résultats prédits de l'amortisseur de lacet. Le seul écart significatif est survenu environ cinq secondes après l'événement initial, lorsque les données FDR et DAR ont révélé un débattement de gouverne de direction important qui a dépassé les limites mécaniques de cette dernière. Ce mouvement a été attribué à la perte de rigidité de la gouverne de direction en raison de la rupture.

    1.12.14 Effet d'une bulle de décollement sur des charges statiques aérodynamiques

    1.12.15 Analyse des vibrations aéroélastiques

    1.12.15.1 Analyse d'un événement dynamique

    Les indications de charge latérale relevées dans les données DFDR et DAR coïncidaient, excepté pendant un intervalle de deux secondes au début de l'incident, ce qui laisse penser qu'un événement dynamique a pu se produire. La cadence d'échantillonnage étant seulement de 4 Hz, il n'a pas été possible de déterminer l'amplitude et la fréquence du signal dynamique. Le signal a donc été analysé au moyen d'une méthode d'ajustement de courbes expérimentale manuelle simpliste. Cette méthode d'analyse n'a pas abouti à une solution unique.

    Il a cependant été possible de corroborer les données DFDR et DAR en supposant une composante de fréquence basse et élevée, ainsi qu'une perte d'amortissement, et en supposant que la première partie du signal était divergente et que la seconde partie était stable. Étant donné qu'un événement dynamique s'est produit, et que les vibrations aéroélastiques sont un phénomène dynamique, on a analysé les vibrations aéroélastiques afin de savoir s'il était possible de trouver un scénario indiquant la présence des vibrations aéroélastiques avant ou après la rupture de la gouverne de direction, qui corrobore les données disponibles.

    1.12.15.2 Méthode d'analyse

    On a réalisé une analyse théorique des vibrations aéroélastiques afin d'étudier les effets des différents scénarios de rupture sur les caractéristiques de vibrations aéroélastiques de l'aéronef. L'analyse a été réalisée sur un modèle d'avion complet, à partir des calculs de vibrations aéroélastiques avec 70 modes et un amortissement structural de 1 %. La même méthode d'analyse des vibrations aéroélastiques a été utilisée pour la certification initiale, et à l'époque, celle-ci a été corroborée à la fois par des essais de vibrations au sol et des essais en vol. La méthode d'analyse de treillis en doublet utilisée a des limites susceptibles d'influencer la précision des prédictions lorsque, par exemple, le panneau de revêtement est décollé sur un seul panneau latéral. Une enquête préliminaire portant sur les techniques de pointe a été menée, mais le stade de développement de ces approches n'était pas suffisamment élaboré pour apporter une valeur ajoutée à l'analyse.

    1.12.15.3 Analyse de référence

    Le cas de référence représentait un avion exempt de dommages structuraux. L'analyse des vibrations aéroélastiques a révélé que le mécanisme de couplage de partie inférieure comprenait un mode de flexion de la dérive de 6,76 Hz et un mode de rotation de la gouverne de direction de 13,18 Hz. Les marges d'amortissement étaient suffisantes, tant à la vitesse de l'incident, soit une vitesse de 270 KCAS, qu'à la vitesse de conception en piqué de 406,5 KCAS.

    1.12.15.4 Scénarios de rupture

    Des analyses de vibrations aéroélastiques ont été réalisées afin d'étudier les conséquences des scénarios de rupture structurale ci-dessous :

    Figure 7. Scénarios de décollement étudiés lors de l'analyse des vibrations aéroélastiques
    Image
    Figure of Scénarios de décollement étudiés lors de l'analyse des vibrations aéroélastiques
    • Décollement - Les scénarios présentaient des degrés de décollement variables entre l'âme en nid d'abeilles et la feuille de surface intérieure, comme le montre la Figure 7. Des décollements sur une seule face ont été étudiés sur le panneau gauche, sur le panneau droit et sur les deux panneaux. On a réalisé une simulation de décollement entre l'âme et la feuille de surface au cours de l'analyse en diminuant la rigidité de la feuille de surface jusqu'à zéro ou 20 % de sa valeur d'origine dans la zone concernée. L'analyse a indiqué une augmentation de la tendance aux vibrations aéroélastiques en présence de décollements plus importants; elle a par ailleurs démontré que des décollements sur les deux faces étaient plus critiques que des décollements sur une seule face. Aucune différence notoire n'a été relevée entre les décollements du côté gauche et ceux du côté droit. Aucune vibration aéroélastique n'a été observée lorsque la rigidité a été réduite à 20 %. Lorsqu'elle a été réduite à 0 %, le scénario de décollement de 2,9 m² sur les deux faces et le scénario de décollement de 5,6 m² sur une seule face ont été caractérisés par des vibrations aéroélastiques brutales au-dessous de 150 KCAS. Un examen plus poussé du scénario de décollement de 5,6 m² sur une seule face, dans une plage de rigidité comprise entre 0 et 20 %, a démontré que la vitesse d'apparition des vibrations aéroélastiques diminuait au fur et à mesure que l'on réduisait la rigidité, et que cette diminution était stable et continue jusqu'à une rigidité d'environ 5 %, moment à partir duquel les vibrations ont commencé. Avec une rigidité inférieure à 5 %, la fréquence et l'amortissement ont diminué rapidement, ce qui a entraîné des vibrations aéroélastiques.
    • Séparation de la gouverne de direction (free rudder) - Ce scénario simulait une fracture de la gouverne de direction dans le sens de la corde juste au-dessus des actionneurs hydrauliques, ce qui a conduit à une séparation de la partie supérieure de la gouverne de direction. Ce modèle a démontré des modes de vibration multiples au-dessous de 270 KCAS, vitesse de l'appareil au moment de l'incident.
    • Enlèvement des vis de bord de fuite - Ce scénario simulait le retrait de toutes les vis de bord de fuite. L'analyse a montré que le comportement des vibrations de ce modèle n'avait pratiquement pas changé par rapport au scénario de référence. Ceci s'explique par le fait que le raccord de bord de fuite était toujours intact, ce qui fait que la cellule de torsion était toujours fermée.
    • Enlèvement du raccord de bord de fuite - Ce scénario simulait l'enlèvement, à des degrés variables, du raccord de bord de fuite. L'analyse a montré que la tendance aux vibrations augmentait au fur et à mesure que la taille du dommage augmentait, et que des vibrations à l'intérieur du domaine de vol étaient possibles en présence d'une zone endommagée plus grande.
    • Rupture du longeron avant - Ce scénario supposait une rupture du longeron avant de la gouverne de direction, au-dessus des actionneurs hydrauliques. L'analyse n'a révélé qu'une légère altération du couplage des vibrations aéroélastiques des modes de rotation de la gouverne de direction et de flexion de la dérive par rapport au scénario de référence.
    • Perte de la gouverne de direction au-dessous de la charnière 2 - Ce scénario supposait que la partie de la gouverne de direction située au-dessous du point d'articulation 2 avait été perdue. L'analyse a indiqué que la fréquence de rotation de la gouverne de direction avait augmenté considérablement en raison de la masse amoindrie de la gouverne de direction, mais qu'il n'y avait pas de couplage.
    • Décollement dans l'extrémité supérieure - Ce scénario supposait un décollement important sur une seule face au niveau de l'extrémité supérieure de la gouverne de direction. Une rigidité de 20 % a été prise en compte dans la zone de décollement. L'analyse n'a révélé qu'une petite modification de l'amortissement par rapport au scénario de référence.
    • Rupture des charnières - Les cinq scénarios de rupture ci-après ont été évalués : rupture de la charnière 1; rupture de la charnière 7; rupture des charnières 1 et 7; rupture des charnières 6 et 7; rupture des charnières 5, 6 et 7. L'analyse a montré que les scénarios de rupture de la charnière 7 et des charnières 1 et 7 ont conduit à des vibrations aéroélastiques, mais que celles-ci sont survenues au-delà de 400 KCAS, en dehors du domaine de conception. Les autres scénarios n'ont révélé aucun couplage critique de vibrations aéroélastiques.
    • Rigidité des charnières - Les trois scénarios de rupture suivants ont été évalués : 75 % de rigidité nominale avec les 7 charnières; 50 % de rigidité nominale avec les 7 charnières; 25 % de rigidité nominale avec les 7 charnières. Aucun de ces scénarios n'a révélé une détérioration importante du couplage des modes de flexion de dérive et de rotation de la gouverne de direction, par rapport au scénario de référence.
    • Rigidité des actionneurs hydrauliques - Les trois scénarios de rupture suivants ont été évalués : 75 % de rigidité nominale avec les 3 actionneurs hydrauliques; 50 % de rigidité nominale avec les 3 actionneurs hydrauliques; 25 % de rigidité nominale avec les 3 actionneurs hydrauliques. L'analyse a montré que la réduction de la rigidité des actionneurs hydrauliques a entraîné une augmentation de la tendance aux vibrations aéroélastiques. À une rigidité de 25 %, une vitesse de vibration de 268 KCAS a été calculée.
    • Désaccouplement d'un seul actionneur hydraulique - Les trois scénarios de rupture suivants ont été évalués : désaccouplement de l'actionneur au niveau de la charnière 2; désaccouplement de l'actionneur au niveau de la charnière 3; désaccouplement de l'actionneur au niveau de la charnière 4. L'analyse n'a révélé aucune vibration aéroélastique avec un seul actionneur désaccouplé. Une analyse approfondie a révélé que, lorsqu'on simule une double panne hydraulique, la réduction de la fréquence du mode de rotation de la gouverne de direction était seulement de 0,33 Hz et qu'elle n'entraînait pas de vibrations.
    • Rigidité de l'actionneur par rapport au désaccouplement de l'actionneur - Une analyse comparative des deux scénarios précédents a indiqué que le désaccouplement d'un seul actionneur hydraulique avait les mêmes conséquences qu'une rigidité nominale de 66 % pour chacun des trois actionneurs.
    • Rupture du raccord de fixation de la dérive - Une analyse de vibrations aéroélastiques a été effectuée en vue de déterminer les conséquences découlant de la rupture des raccords de fixation principale de la dérive en cas de vibrations. L'analyse a montré que la rupture d'un raccord ou des deux raccords de fixation arrière de la dérive n'avait pas entraîné un couplage critique des vibrations aéroélastiques.
    • Augmentation de la masse de la gouverne de direction - Ce type de gouverne de direction n'est pas équilibré statiquement. Toute circonstance qui fait augmenter la masse de la gouverne de direction et qui déplace son CG vers l'arrière, très loin de l'axe de charnière, a un effet défavorable sur la marge de vibrations. Des couches de peintures excessives ou une infiltration de liquide sont des exemples de phénomènes susceptibles de provoquer de tels effets.
      • Augmentation de la masse au niveau du bord de fuite - L'analyse simulait une augmentation de la masse de la gouverne de direction par l'augmentation du poids des vis du bord de fuite. L'analyse a permis de constater qu'il était nécessaire de répartir 142 kg au niveau du bord de fuite pour générer des vibrations aéroélastiques à une vitesse de 270 noeuds, vitesse de l'appareil lors de l'incident. L'analyse a également établi qu'avec une masse supplémentaire de 71 kg, l'amortissement était approprié dans les conditions de l'incident.
      • Augmentation de la masse de la peinture - L'analyse simulait une augmentation de masse répartie uniformément sur la surface de la gouverne de direction. Il a été établi qu'à la vitesse à laquelle s'était produit l'incident (270 noeuds), le supplément de masse n'avait pas réduit l'amortissement de manière importante. À des vitesses élevées, l'ajout de la peinture supplémentaire initiale de 19,3 kg a considérablement réduit l'amortissement.
      • Accumulation de liquide dans la gouverne de direction - Une analyse des vibrations aéroélastiques a été effectuée afin de déterminer les conséquences d'une accumulation de liquide dans le bord d'attaque de la gouverne de direction, telle qu'elle a été constatée dans la gouverne de direction de l'avion numéro de série 701. On a déduit que cette masse supplémentaire a eu des effets négligeables sur les vibrations aéroélastiques, car elle était concentrée très près de l'axe de charnière.
    1.12.15.5 Synthèse des analyses portant sur les vibrations aéroélastiques

    Les analyses ont indiqué que des vibrations aéroélastiques pouvaient se produire dans les limites du domaine de certification pour trois scénarios de détérioration :

    • séparation de la gouverne de direction (free rudder) ou d'une partie de la gouverne de direction;
    • diminution importante de la rigidité des actionneurs hydrauliques;
    • réduction importante de la rigidité en torsion de la gouverne de direction en raison d'un décollement important ou de la rupture du raccord de bord de fuite.

    Dans tous ces scénarios, les dommages nécessaires étaient importants et dépassaient les exigences de certification.


    1.12.16 Analyse des vibrations aéroélastiques dans le domaine temporel

    1.12.16.1 Généralités

    Les résultats des analyses de vibrations aéroélastiques décrits ci-dessus ont été présentés graphiquement sous forme de courbes de fréquence et d'amortissement en fonction de la vitesse. Afin de corréler ces analyses de vibrations aéroélastiques avec les résultats de l'analyse de la dynamique du vol et les données d'enregistrement, qui étaient présentés sous forme de courbes en fonction du temps, l'analyse des vibrations aéroélastiques dans le domaine temporel ci-après a été réalisée afin d'observer l'amplitude des vibrations aéroélastiques en fonction du temps.

    1.12.16.2 Méthode d'analyse

    Une analyse des vibrations aéroélastiques dans le domaine temporel a été réalisée pour deux des trois scénarios de détérioration : décollement de 5,6 m² sur une seule face avec un panneau d'origine ayant une rigidité inférieure à 5 %; et séparation de la partie supérieure de la gouverne de direction. L'objectif était de produire des diagrammes de variation en fonction du temps et de corréler les charges résultantes. L'analyse a été exécutée par intervalles de 0,001 seconde. La structure a été excitée avec une force latérale de 1 kilonewton (kN) à l'extrémité de la dérive, qui a fait office d'impulsion démarrant à l'intervalle de temps 100 avec une durée de 0,1 seconde.

    Les variables ci-dessous ont été examinées :

    • débattement de la gouverne de direction (parties supérieure, intermédiaire et inférieure);
    • charges au niveau des sept charnières;
    • forces au niveau des trois actionneurs;
    • charges au niveau des raccords de fixation de la dérive (partie avant, intermédiaire et arrière);
    • accélérations latérales (poste de pilotage, CG/DFDR, fixation de la dérive, extrémité de la dérive, parties supérieure et inférieure de la gouverne de direction)
    1.12.16.3 Résultats
    Figure 8. Réaction caractéristique aux charges démontrée par l'analyse des vibrations aéroélastiques dans le domaine temporel
    Image
    Figure of Réaction caractéristique aux charges démontrée par l'analyse des vibrations aéroélastiques dans le domaine temporel

    Dès l'excitation, les amplitudes de toutes les réactions ont commencé à croître. La Figure 8 montre une réaction caractéristique aux charges au niveau de la fixation de dérive arrière gauche. En présence d'une charge ultime de calcul, la force maximale qui s'exerce au niveau de la fixation de dérive arrière est d'environ 700 kN et, d'après les dommages causés aux raccords de fixation, on sait que les charges appliquées durant l'incident ont dépassé la résistance ultime. C'est pourquoi l'intervalle de temps durant lequel la charge a excédé 700 kN a été choisi comme point de référence pour chaque scénario. Toutes les autres variables surveillées ont été mesurées à l'intérieur d'un domaine englobant l'intervalle de temps de référence, tous les maxima ne s'étant pas manifestés au même moment. Leur valeur de pointe dans cette enveloppe a été enregistrée. Les deux scénarios étudiés n'ont mis en lumière aucune contradiction par rapport aux contraintes, comme la charge de rupture de la fixation de la dérive et la rotation maximale de la gouverne de direction. Le scénario de rupture de la partie supérieure de la gouverne de direction n'a démontré aucune charge de charnière importante dirigée vers l'avant ou vers l'arrière, et les fixations de la dérive auraient cédé avant les charnières. Du fait que ces constatations vont à l'encontre des dommages observés, ce scénario n'a pas été retenu comme scénario de détérioration réaliste.

    Le scénario d'un décollement de 5,6 m² sur une seule face avec un panneau d'origine ayant une rigidité inférieure à 5 % a démontré des charges de charnière importantes vers l'avant ou vers l'arrière. L'analyse des vibrations aéroélastiques dans le domaine temporel a indiqué que la charnière 5 aurait cédé en premier et que cette rupture serait survenue avant que les raccords de fixation principale de la dérive soient endommagés. Une deuxième analyse des vibrations aéroélastiques dans le domaine temporel a été effectuée afin d'étudier ce scénario avec une charnière 5 défaite. Cette analyse a prouvé qu'après la rupture de la charnière 5, les charges de la charnière 6 ont dépassé les charges admissibles alors que les fixations arrière de la dérive atteignaient un niveau excédant les charges ultimes sans toutefois dépasser les charges de rupture.

    1.12.17 Synthèse des analyses de vibrations aéroélastiques et de vibrations aéroélastiques dans le domaine temporel

    Des analyses de vibrations aéroélastiques et de vibrations aéroélastiques dans le domaine temporel ont été effectuées pour un certain nombre de scénarios de rupture. Le scénario d'un décollement de 5,6 m² sur une seule face avec un panneau d'origine ayant une rigidité inférieure à 5 % a présenté une réaction crédible et montré une bonne corrélation par rapport aux dommages observés, aux données des enregistreurs et à l'analyse de la dynamique de vol.

    1.12.18 Étude analytique des données radar du National Transportation Safety Board

    1.12.19 Autres appareils à proximité

    Les relevés ATC révèlent qu'aucun autre appareil affichant un code transpondeur discret et évoluant selon les règles de vol aux instruments (IFR) ne se trouvait à une altitude similaire à celle du C-GPAT dans un rayon de 60 nm au moment de l'incident. L'avion le plus proche se trouvait au FL320, à environ 70 nm à l'est. Tous les autres appareils volaient à des altitudes bien inférieures et bien plus loin.

    1.12.20 Objets spatiaux

    Les autorités militaires ont déclaré qu'au moment et à l'endroit où s'est produit l'incident, les relevés n'ont fait état d'aucun objet artificiel en train de rentrer dans l'atmosphère. Aucun relevé n'était disponible s'agissant d'objets naturels rentrant dans l'atmosphère.

    1.13 Renseignements sur l'organisme et sur la gestion

    1.13.1 Exploitation de la compagnie

    Transports Canada autorise Air Transat à fournir les types de services spécifiés dans son certificat d'exploitation aérienne (AOC). La partie I du certificat autorise, en partie, l'exécution de vols internationaux réguliers et non réguliers entre le Canada et l'étranger, et entre des points à l'étranger au moyen de ses avions A310.

    1.13.2 Organisme de maintenance

    Depuis février 2002, le C-GPAT était entretenu par Air Transat, qui exploite une flotte de 14 gros porteurs (A310 et A330) conformément à un système de gestion de la qualité et de la sécurité (SGQS). Le SGQS d'Air Transat fait partie d'un système de contrôle de la gestion ciblé sur la qualité et la sécurité. Les composantes du SGQS sont les suivantes : un gestionnaire supérieur responsable, un plan de gestion de la sécurité, une supervision de la sécurité, la formation, l'assurance de la qualité, la documentation et un plan d'intervention en cas d'urgence.

    Le programme de maintenance d'Air Transat en vigueur au moment de l'incident avait été approuvé par Transports Canada le 10 décembre 2004 sous le numéro d'approbation Q-0188. Air Transat est titulaire d'un certificat d'organisme de maintenance agréé (OMA) portant le numéro AMO 32-87 délivré par Transports Canada, conformément à la Sous-partie 73 de la Partie 5 du RAC. La compagnie, qui emploie environ 285 employés dans le secteur de la maintenance, peut effectuer de la maintenance sur piste et des révisions majeures, des réparations mineures et majeures ainsi que des modifications visant les appareils Lockheed 1011, Airbus 310, Airbus 330 et Boeing 757.

    Air Transat est aussi titulaire des avantages associés à une qualification de maintenance spécialisée visant les structures en tôle, les structures composites, la catégorie soudage à l'arc, les systèmes et composants destinés aux équipements de bord, conformément à l'article 573.02 du RAC. L'étude portant sur l'OMA d'Air Transat révèle que le manuel de contrôle de maintenance et le manuel de politiques de maintenance de l'organisme, qui énoncent les exigences relatives aux opérations techniques, sont à jour.

    La dernière vérification d'Air Transat effectuée par Transports Canada s'est déroulée du 6 au 17 mai 2002. Air Transat n'a pas reçu d'approbation pour effectuer des visites C sur ses appareils Airbus. La dernière visite C sur le C-GPAT a été réalisée par TAP Portugal en mai 2004. On a fait appel aux services d'Air Canada Technics pour effectuer les visites C sur le C-GPAT et sur d'autres avions d'Air Transat.

    1.14 Renseignements supplémentaires

    1.14.1 Télex à tous les exploitants (AOT)-Inspection des gouvernes de direction de la flotte

    1.14.1.1 AOT-1-Inspection de l'extérieur des gouvernes de direction de la flotte
    Figure 9. Schéma des zones d'inspection visées par l'AOT-1
    Image
    Figure of Schéma des zones d'inspection visées par l'AOT-1

    À la suite de la présente enquête, l'avionneur a publié, en date du 17 mars 2005, les télex à tous les exploitants (AOT) A310-55A2035, A300-55A6035, A330-55A3035 et A340-55A4030 pour leur demander d'inspecter tous les avions équipés d'une gouverne de direction portant la référence A55471500 (Figure 9). Ces AOT ont ensuite été rendus obligatoires par une consigne de navigabilité publiée par la Direction Générale de l'Aviation Civile (DGAC) de France, l'État constructeur. Cette inspection visait 222 Airbus A310, 146 Airbus A300-600, 6 Airbus A330 et 34 Airbus A340. L'objectif consistait à vérifier l'intégrité structurale de la gouverne de direction et de ses fixations en procédant à des inspections visuelles détaillées non récurrentes accompagnées d'un essai de percussion. Ces inspections comprenaient un essai de vibration au sol de la face arrière du longeron arrière de la dérive, un examen visuel détaillé des bras d'articulation et des raccords de soutien des actionneurs, un examen visuel détaillé des raccords d'articulation de la gouverne de direction et un essai de percussion des panneaux latéraux de la gouverne de direction. L'essai de percussion a été réalisé sur le pourtour extérieur des panneaux latéraux de la gouverne de direction conformément à l'inspection standard aux 5 ans, de même que l'inspection des bandes supplémentaires passant à travers le centre, comme le montre la Figure 9. Il importe de préciser qu'un essai de percussion extérieur ne permet pas de déceler des décollements sur les feuilles de surface intérieures. Les exploitants ont communiqué à Airbus des résultats sur plus de 80 % des avions visés. Ces résultats sont les suivants :

    • Des décollements et des délaminages du panneau latéral ont été constatés sur un petit nombre d'avions, mais ils étaient tous conformes aux limites de réparation spécifiées dans le manuel de réparations structurales.
    • Des dommages ont été constatés au niveau des points de levage, mais leurs dimensions étaient inférieures aux limites qui imposent une réparation immédiate, et ils étaient conformes aux limites de réparation du manuel de réparations structurales.
    • De la corrosion a été signalée au niveau des raccords d'articulation, mais on a estimé qu'elle n'avait aucune conséquence sur l'intégrité structurale.
    • Certains jeux ont été constatés au niveau des roulements d'articulation, mais on a estimé qu'ils n'avaient aucune conséquence sur l'intégrité structurale.
    • L'étude des données sur les dommages n'a révélé aucun signe qui laisserait entendre que les dommages étaient généralisés à tous les lots.
    • Aucune des constatations n'a permis de penser qu'une rupture aurait pu se produire en vol.
    1.14.1.2 AOT-2-Inspection de l'intérieur des gouvernes de direction de la flotte
    Figure 10. Schéma des zones d'inspection visées par l'AOT-2
    Image
    Photo of Schéma des zones d'inspection visées par l'AOT-2

    Le 2 mars 2006, le constructeur a envoyé une seconde série de télex (AOT A310-A552043, AOT A300-A556042, AOT A330-A553036 et AOT A340-A554031) pour demander l'inspection de tous les avions dotés de gouverne de direction portant la référence A55471500. Ces AOT ont ensuite été rendus obligatoires par deux consignes de navigabilité publiées par l'Agence européenne de la sécurité aérienne (AESA), qui représente l'État constructeur. L'objectif consistait à vérifier l'intégrité structurale de la gouverne de direction en procédant à une inspection non récurrente avec essai de percussion des feuilles de surface intérieures des panneaux latéraux de la gouverne de direction, ainsi qu'à un contrôle des trous de vidange situés à la partie inférieure de la gouverne de direction et à un nettoyage du liquide hydraulique se trouvant sur les surfaces extérieures. On a accédé à l'intérieur de la gouverne de direction en passant par les trous d'inspection disposés sur le longeron avant de la gouverne de direction. Il importe de noter que l'accès aux surfaces intérieures à partir des trous d'inspection est limité. La Figure 10 montre les zones d'inspection. Les exploitants ont communiqué à Airbus des résultats sur plus de 90 % des avions visés, et aucun décollement n'a été constaté.

    2.0 Analyse

    2.1 Généralités

    Le vol régulier TSC961 au départ de Varadero était effectué par un équipage qualifié conformément à la réglementation et aux procédures en vigueur. L'appareil était équipé et exploité conformément à la réglementation et aux procédures en vigueur. La météo et les aides à la navigation n'ont joué aucun rôle dans l'incident.

    2.2 Système de commandes de vol

    2.2.1 Généralités

    L'enquête portant sur le système de commandes de vol et les composants des sous-systèmes connexes n'a révélé aucune anomalie ni phénomène susceptible d'avoir provoqué la dislocation de la gouverne de direction.

    2.2.2 Capacité à diagnostiquer la cause des problèmes de contrôle de l'avion

    Pendant le vol, il n'a pas été possible d'identifier avec précision l'origine des dommages structuraux. C'est seulement lorsque les pédales de direction ont été actionnées durant les phases finales de l'approche et à l'atterrissage que le pilote a constaté que la gouverne de direction ne répondait pas correctement.

    Les difficultés auxquelles a fait face l'équipage pourraient être qualifiées de « problèmes de contrôle d'origine indéterminée ». Il n'existe aucune procédure établie concernant ce type de problème. La nature ambiguë des symptômes n'a pas permis à l'équipage d'évaluer efficacement la situation et de poser un diagnostic clair sur l'origine des problèmes de contrôle de l'avion.

    2.2.3 Redressement de l'avion en cas de roulis hollandais

    Durant leur formation initiale, les pilotes ont pu se familiariser avec le roulis hollandais sur simulateur; c'est la seule expérience qu'ils ont eu du phénomène. La fiabilité de toute liste de vérifications applicable en situation anormale repose sur le principe que, pour une situation donnée, seule la procédure appropriée doit être appliquée, et que cette procédure doit être suivie dans son intégralité. Sur l'A310, la plupart des procédures sont affichées sur l'ECAM, et au fur et à mesure qu'un élément est exécuté correctement, cet élément disparaît de l'écran d'affichage. L'exécution de la procédure connexe garantit une meilleure sécurité du vol. Aucune procédure de l'index des procédures ou de l'ECAM ne traite du roulis hollandais. Seul le Airplane Upset Recovery Training Aid fournit des directives générales, et il n'aborde pas spécifiquement les systèmes comme le pilote automatique. Il n'y avait pas suffisamment de directives sur la technique de redressement de l'avion en cas de roulis hollandais. Des renseignements supplémentaires auraient pu empêcher l'équipage d'aggraver les caractéristiques de vol, comme ce fut le cas quand le pilote automatique a été embrayé de nouveau.

    2.2.4 Décision de retourner à Varadero

    Peu après la perte de la gouverne de direction, l'équipage a pris la décision d'amorcer une descente et de se dérouter sur l'aéroport le plus proche. Le roulis hollandais s'est atténué progressivement, puis a cessé pendant la descente. Alors que l'équipage était fin prêt à effectuer une approche sur Miami ou Fort Lauderdale, les équipements de bord ont indiqué que l'appareil pouvait poursuivre le vol normalement. Les éléments d'information qui ont dicté le lieu d'atterrissage sont les suivants : il n'y avait plus aucune indication de bruit, de vibrations ou de roulis hollandais; il n'y avait ni message ECAM ni voyant lumineux ni indication dans le poste de pilotage en rapport avec le problème de contrôle de l'avion; le vol pouvait se poursuivre à basse altitude; la compagnie était mieux équipée pour prendre en charge les passagers et l'avion à Varadero.

    L'enquête a établi que l'appareil ne risquait pas de perdre sa dérive en vol, que ce soit en raison d'une perte de résistance statique ou de rigidité.

    2.2.5 Décision de ne pas déclarer une situation d'urgence

    Le fait de déclarer une situation d'urgence au bon moment permet aux équipages de bénéficier de la meilleure assistance possible lorsqu'ils sont confrontés à une situation anormale ou d'urgence.

    Le fait de déclarer une situation d'urgence et de signaler clairement la nature d'un problème permet à l'ATC d'assurer une meilleure coordination entre les unités et de prévoir les besoins de l'équipage afin de mieux planifier la gestion du trafic. Cela permet aussi d'assurer que le vol fera l'objet d'une attention immédiate de la part des contrôleurs en cas de changement de situation. Lorsque l'ATC sait que le pilote éprouve des difficultés de contrôle de son appareil, il peut prendre en compte cette information pour sa planification, et accorder, entre autres, un espace de manoeuvre plus important et permettre une approche finale plus longue. Sans cette information, des conséquences imprévues et indésirables peuvent se produire, par exemple un pilote pourrait être incapable de se conformer aux demandes de l'ATC et se voir contraint d'exécuter une approche interrompue ou toute autre manoeuvre susceptible de retarder l'atterrissage.

    Le manuel d'exploitation de la compagnie Air Transat reconnaît qu'il existe une grande variété de situations d'urgence potentielles et laisse à la discrétion de l'équipage le soin de décider du moment pour déclarer une urgence. Dans le présent incident, lorsque l'équipage a été en mesure de communiquer avec l'ATC, il avait le contrôle de l'appareil et il n'a pas jugé nécessaire de déclarer une situation d'urgence.

    2.2.6 Communication entre les membres d'équipage et prise de décision

    En cas de situation anormale ou d'urgence, une communication efficace entre les membres d'équipage permet d'améliorer la prise de décision du pilote, en ce sens que les décisions prennent en compte tous les renseignements disponibles. Dans le présent incident, les renseignements dignes de mention, notamment l'ampleur des contraintes dans l'office arrière et les conséquences indésirables qui en ont résulté, ou une description du bruit (volume et type de bruit) perçu par les agents de bord, n'ont pas été communiquées à l'équipage de conduite.

    Cette information n'a pas été communiquée car, du fait de l'intensité du bruit et des vibrations, tous les membres de l'équipage de cabine ont supposé que les phénomènes avaient également été ressentis dans toute la cabine. De même, le commandant de bord a supposé que, si l'équipage de cabine avait eu une information potentiellement importante à communiquer, le directeur de vol aurait reçu cette information et l'aurait transmise de son propre chef.

    Les suppositions ont persisté en dépit de la formation suivie par tous les membres d'équipage, qui met l'accent sur l'importance d'échanger l'information et de ne pas supposer que les autres membres d'équipage ont pleinement conscience des événements. Les procédures d'Air Transat sont présentées dans un format structuré que l'équipage de conduite doit respecter lorsqu'il fait un exposé à l'équipage de cabine, mais elles ne recommandent pas au directeur de vol de demander aux autres membres d'équipage de lui fournir toute l'information qu'ils possèdent.

    Dans le présent cas, la communication de l'information liée à la gravité des événements dans la cabine arrière n'aurait peut-être pas eu une incidence notable sur les décisions prises par l'équipage ou sur l'issue de l'incident. Dans d'autres circonstances cependant, le manque d'information pourrait avoir des conséquences graves. Les procédures et les pratiques qui ne favorisent pas l'échange d'information entre les membres d'équipage augmentent le risque de prendre des décisions basées sur de l'information incomplète ou inexacte, ce qui peut compromettre la sécurité des passagers et de l'équipage.

    2.3 Maintenance

    2.3.1 Programme de maintenance

    Aucune lacune n'a été relevée dans l'organisme de maintenance d'Air Transat, ni dans ses installations et procédures de maintenance, ni dans ses activités de contrôle de maintenance ou dans les qualifications de son personnel. L'enquête a conclu que le C-GPAT était entretenu conformément au programme de maintenance approuvé.

    2.3.2 Dossiers de maintenance

    Les enquêteurs ont examiné les dossiers de maintenance d'Air Transat et ceux de l'ancien propriétaire de l'avion. L'examen n'a révélé aucun problème notoire concernant la gouverne de direction, hormis la retouche environ huit ans avant l'incident du 6 mars 2005 de certains petits dommages causés par la foudre à l'extrémité de la dérive.

    2.3.3 État des roulements d'articulation

    Bien que le roulement d'articulation no 2 du C-GPAT ait dépassé les tolérances de roulement énoncées dans le manuel d'entretien aéronef et que 3 des 10 roulements de bras d'articulation de la dérive aient été partiellement grippés, aucune vibration de la gouverne n'a été signalée pour cet avion, aucun jeu important n'a été mesuré sur les restes de la gouverne, et les roulements partiellement grippés pouvaient toujours tourner. On a par conséquent conclu que l'état général des charnières de la gouverne de direction n'avait joué aucun rôle dans l'incident.

    2.3.4 Programme d'inspection de la gouverne de direction

    Les vérifications quotidiennes et en transit de la gouverne de direction consistent en une inspection visuelle générale à partir du sol. Ces vérifications permettent de déceler uniquement les dommages extérieurs importants, car la gouverne de direction peut atteindre une hauteur de 15 m du sol et parce que la vue de la gouverne est partiellement obstruée par le stabilisateur. L'efficacité des vérifications quotidiennes et en transit est donc limitée lorsqu'il s'agit de repérer un dommage sur la gouverne de direction.

    Air Transat soumet la gouverne de direction à une vérification de type 2-C tous les 30 mois. Celle-ci comprend une inspection visuelle générale effectuée à une certaine distance. Ce type d'inspection permet de déceler uniquement les dommages extérieurs qui sont très visibles. Elle ne permet pas d'évaluer l'intérieur de la gouverne de direction, ni de déceler des anomalies comme un décollement du revêtement intérieur ou une infiltration de liquide. L'efficacité des vérifications de type 2-C est donc limitée.

    Un essai de percussion des panneaux latéraux de la gouverne de direction est effectué dans le cadre de l'inspection aux cinq ans. La portée de cet essai se limite à une bande large de 40 mm le long du bord avant des panneaux latéraux de la gouverne de direction et à une bande étroite similaire le long de la partie inférieure du bord de fuite. Cette inspection ne permet pas de déceler un décollement des panneaux latéraux à l'extérieur de ces zones; de plus, l'essai de percussion ne permet de déceler que les décollements importants du revêtement intérieur. L'efficacité de l'inspection aux cinq ans est donc limitée.

    Lors de l'inspection de toute la flotte effectuée après l'incident, d'autres techniques de contrôle non destructif ont été utilisées, comme le test ELCH, l'inspection aux rayons X, aux ultrasons et la thermographie, et celles-ci ont démontré leur efficacité lorsqu'il s'agit de repérer des dommages qui passent inaperçus lors des essais de percussion ou des inspections visuelles. Ces techniques ont notamment permis de déceler des cas d'infiltration d'eau et de décollement du revêtement intérieur. Bien que ces autres techniques de contrôle non destructif soient disponibles et qu'elles soient d'ailleurs utilisées sur d'autres parties de l'avion (thermographie utilisée pour inspecter les gouvernes de profondeur par exemple), elles ne font pas partie du programme de maintenance régulier visant la gouverne de direction. En conséquence, il existe des techniques de contrôle non destructif plus efficaces que celles recommandées par le programme de maintenance actuel.

    Un programme d'inspection efficace doit raisonnablement permettre de déceler tout dommage avant qu'il atteigne une taille critique. La gouverne de direction a subi son inspection aux 5 ans, dont un essai de percussion, en mai 2001. Entre temps, elle a fait l'objet d'inspections visuelles conformes au programme de maintenance qui n'ont rien révélé. Néanmoins, les limites des techniques d'inspection ne permettent pas d'assurer qu'il n'y a pas eu de dommage susceptible d'atteindre une taille critique en passant inaperçu. Il s'avère par conséquent que le programme d'inspection actuel ne permet pas de déceler, à temps et systématiquement, des dommages à la gouverne de direction.

    2.4 Enregistreurs de bord

    2.4.1 Capacité d'enregistrement du CVR

    Le CVR avait une capacité d'enregistrement de 30 minutes. Le manque de données sur la perte de la gouverne de direction, les bruits entendus dans le poste de pilotage et par l'équipage de cabine ainsi que les vibrations connexes ont gêné l'enquête. Un CVR avec une capacité d'enregistrement de deux heures aurait enregistré le bruit des vibrations sur le microphone d'ambiance, apportant ainsi de précieuses données sur la fréquence des vibrations. Le manque de données pertinentes a augmenté la charge de travail des enquêteurs et a diminué leur capacité de comprendre rapidement et précisément ce qui s'était passé.

    2.4.2 Échantillonnage des données du DFDR

    Un événement très dynamique de deux secondes a été identifié lorsque les données FDR et DAR ont été fusionnées et que les accélérations latérales ont été comparées. Il n'a pas été possible de déterminer les fréquences présentes en raison de la faible cadence d'échantillonnage des accélérations enregistrées. Même si les cadences d'échantillonnage satisfont aux normes de rendement actuelles imposées par les règlements, elles n'ont pas suffi à capter les conditions très dynamiques qui peuvent survenir lors d'un accident.

    2.4.3 Données DFDR filtrées

    Une analyse de rendement nécessitant des données de position des gouvernes précises a été entreprise pour permettre d'étudier la défaillance de la gouverne de direction et la réaction subséquente de l'avion. Les données de position des gouvernes enregistrées par le DFDR ne correspondent pas aux données brutes du capteur. Avant d'être enregistrées, les données brutes du capteur sont filtrées par le convertisseur analogique de données du système. L'historique probable des positions des gouvernes a été calculé à l'aide de données filtrées. L'analyse laisse supposer que le filtrage a généré une latence de données de 0,4 seconde et réduit l'amplitude d'environ 1° durant les oscillations initiales à haute fréquence. Le filtrage de la position de la gouverne de direction et la nécessité d'une analyse additionnelle ont compromis la précision et l'efficacité de l'enquête.

    2.4.4 Préservation des enregistrements

    Au cours de l'incident, le fait de désactiver le CVR au moment de l'arrêt des moteurs n'aurait pas empêché la perte de donnés enregistrées au moment de la défaillance de la gouverne de direction, car le CVR avait une capacité d'enregistrement de 30 minutes, et l'incident est survenu plus d'une heure avant l'atterrissage à Varadero. Cependant, dans certains cas, le fait de mettre en sécurité les enregistreurs après l'atterrissage permet de conserver des indices importants, comme l'ont démontré des enquêtes antérieures (rapports A00A0185, A00P0040 et A01W0117 du BST). Aucune procédure sur la façon de désactiver les enregistreurs après l'atterrissage n'a été fournie à l'équipage.

    2.5 Analyse du mécanisme de défaillance de la gouverne de direction

    2.5.1 Généralités

    L'enquête a envisagé deux cas de défaillance potentiels : une défaillance découlant d'un phénomène de charge statique et une défaillance causée par un phénomène de charge dynamique

    2.5.2 Phénomène de charge statique

    2.5.2.1 Débattement excessif de la gouverne de direction

    Le circuit de commande de la gouverne de direction fonctionnait correctement, et rien n'indique que les débattements de la gouverne de direction aient dépassé les limites autorisées. L'enquête a conclu que la défaillance n'avait pas été causée par un débattement excessif de la gouverne de direction.

    2.5.2.2 Charge statique élevée

    Les enquêteurs ont passé en revue les essais de charge statique, les essais de sous-composants, et les essais de tolérance aux dommages qui ont été réalisés lors de la certification initiale. Ils ont conclu que la gouverne de direction était conçue selon une résistance appropriée pour prendre en compte les charges statiques présentes dans le domaine de conception structurale. Une étude des données enregistrée a révélé que l'avion était exploité à l'intérieur de son domaine de conception et qu'il n'a pas subi une charge élevée lors du vol de l'incident ou lors d'un vol précédent. L'enquête a conclu que la défaillance n'avait pas été causée par un phénomène de charge statique élevée.

    2.5.3 Phénomène de charge dynamique

    L'analyse du signal de charge latérale du DFDR et du DAR a montré que l'incident était lié à un événement dynamique. Les circonstances ci-après ont été examinées pour déterminer les causes probables de cet événement dynamique.

    2.5.3.1 Sollicitation de commande haute fréquence

    L'enquête sur les circuits de l'avion n'a révélé aucune condition susceptible d'avoir provoqué un événement dynamique induit par une gouverne. Les données DFDR et DAR n'ont montré aucun signe de mouvement de gouverne haute fréquence dans la période ayant précédé l'incident. On a conclu que l'événement dynamique n'était pas dû à une sollicitation haute fréquence provenant du système de commande.

    2.5.3.2 Vibrations aéroélastiques

    Les signaux de charge latérale enregistrés, les dommages constatés sur les raccords de fixation principale de la dérive, les dommages aux bras d'articulation de la gouverne de direction au niveau des charnières 5 et 6, ainsi que le bruit et les vibrations ressenties durant l'événement, corroborent l'existence de vibrations aéroélastiques.

    2.5.4 Causes probables des vibrations aéroélastiques

    2.5.4.1 Vibrations aéroélastiques sans problème structural préalable

    L'analyse des vibrations aéroélastiques a confirmé qu'une gouverne de direction sans problème structural ne vibrerait pas à l'intérieur du domaine de conception. L'enquête a par ailleurs montré que la gouverne de direction fonctionnait à l'intérieur du domaine de conception; par conséquent, la gouverne de direction n'a pas subi de vibrations sans problème structural préalable.

    2.5.4.2 Vibrations aéroélastiques consécutives à un problème structural

    L'enquête a permis de découvrir qu'un déséquilibre de la gouverne de direction et que des jeux au niveau des charnières n'auraient pas conduit à des vibrations aéroélastiques. On a déterminé qu'un décollement important était la cause la plus probable des vibrations. La présence d'autres facteurs mineurs, comme de l'eau piégée dans le nid d'abeilles et des couches de peinture excessives, permettrait de réduire légèrement la taille du décollement nécessaire pour provoquer les vibrations.

    2.5.5 Propagation des dommages à la gouverne de direction

    Les essais de cycles de fonctionnement sous vide ont entraîné une propagation des dommages. Il se peut donc que la différence de pression entre l'air situé à l'intérieur du nid d'abeilles et la pression d'air extérieur réduite à l'altitude de croisière ait contribué à l'aggravation de la séparation entre le nid d'abeilles et les feuilles de surface ou à des fractures de l'âme dans le plan.

    Ce type de gouverne de direction ne comporte aucune caractéristique permettant d'interrompre la propagation des dommages dans les panneaux latéraux, comme une barrière mécanique. Lorsque la détérioration commence à se propager, elle peut continuer de s'aggraver jusqu'à ce qu'elle ait atteint une taille critique. Une telle caractéristique de protection n'était pas spécifiquement exigée pour la certification.

    2.5.6 Causes probables des dommages à la gouverne de direction

    2.5.6.1 Processus de fabrication

    L'examen des restes de la gouverne de direction a indiqué que les matrices de résine utilisées étaient appropriées, de même que le degré de polymérisation. Même si cette analyse ne s'appuie que sur l'examen d'une petite quantité de fragments de gouverne de direction - chaque panneau latéral, longeron ou nervure étant polymérisé séparément - l'état de ces petits fragments est représentatif des composants dans leur ensemble. L'ensemble de la gouverne de direction a donc très certainement été construit à l'aide de résines appropriées et polymérisé selon les règles en vigueur.

    L'assurance qualité à la fabrication a permis de découvrir certaines non-conformités sur la gouverne de direction du C-GPAT, et elles ont été corrigées. Comme la plus grande partie de la gouverne de direction était manquante, il n'a pas été possible d'examiner ces anomalies sur ce qui restait de la gouverne ni de les exclure comme causes de l'incident. Cependant, on a revu les plans de réparation, les procédures de réparation et l'assurance qualité utilisés pour remédier à ces non-conformités, et aucune anomalie n'a été observée. Il est peu probable que ces réparations soient à l'origine de l'incident.

    Les résidus ont laissé paraître des signes de pression de collage probablement insuffisante lors de la polymérisation au niveau du collage entre le nid d'abeilles et le revêtement intérieur, le long des bords du profilé en Z du panneau latéral gauche, sur une largeur de 20 mm. Une enquête plus poussée a révélé qu'un collage insuffisant juste à l'arrière du profilé en Z a pu découler d'une pression de plaque d'acier insuffisante lors de la polymérisation, elle-même due au mauvais positionnement du profilé en Z ou à une combinaison de tolérances défavorable. Il n'est pas nécessaire que ce défaut soit ensuite mis à nu; il a pu s'aggraver à la suite de charges de cycles de fonctionnement sous vide aboutissant à un décollement. Une analyse numérique complémentaire a montré qu'il était possible qu'un tel décollement se propage sous l'effet de cycles de fonctionnement sous vide. Ce défaut remonterait au stade de la fabrication, et il est probablement à l'origine du dommage initial à la gouverne de direction.

    2.5.6.2 Détérioration des matériaux

    Il est peu probable que la gouverne de direction du C-GPAT ait été endommagée à la suite d'une dégradation due à la fatigue, au vieillissement, à une contamination chimique ou à une exposition à des températures élevées.

    2.5.6.3 Dommage mécanique

    Il est peu probable que le dommage initial de la gouverne de direction ait été causé par un ponçage, par une infiltration d'eau dans le nid d'abeilles, par un point d'articulation grippé ou par la réparation de la plaque de protection contre la foudre.

    Les essais de dommages par impact révèlent que si un impact par objet contondant peut écraser l'âme en nid d'abeilles, il ne peut cependant pas causer de décollements. Des essais subséquents de cycles de fonctionnement sous vide ont montré que les dommages d'écrasement de l'âme ne s'étaient pas propagés. Par conséquent, il est peu probable que le dommage initial ait été causé par un impact par objet contondant. La mauvaise utilisation de jets de pulvérisation haute pression pourrait probablement causer des dommages semblables à ceux d'un impact par objet contondant, mais il est peu probable que le dommage initial à la gouverne de direction ait été causé par la mauvaise utilisation de ce type de jet.

    Aucun signe de dommage causé par un impact n'a été décelé sur les restes de la gouverne du C-GPAT, mais seule une petite partie de gouverne a pu être récupérée et inspectée. L'enquête n'a pas écarté la possibilité que la gouverne de direction ait pu subir un événement distinctNote de bas de page 12 susceptible d'avoir causé d'importants dommages au sol ou en vol.

    Le foudroiement de l'extrémité supérieure de la dérive environ huit ans avant l'incident du 6 mars 2005 est un événement distinct qui n'a pu être écarté comme cause possible du dommage initial, car toute l'extrémité supérieure de la gouverne était manquante et n'a pu être examinée.

    2.5.7 Scénarios de rupture

    2.5.7.1 Récapitulatif des points importants
    • L'événement dynamique a fort probablement été causé par un flottement (vibrations aéroélastiques) de la gouverne de direction. L'analyse des vibrations aéroélastiques a montré que la gouverne de direction ne vibrerait dans les conditions caractéristiques de l'incident que si elle était endommagée. La gouverne de direction était donc fort probablement endommagée. L'analyse des vibrations aéroélastiques indique que les dommages nécessaires pour provoquer ces vibrations devaient être considérables. L'appareil avait déjà été soumis aux conditions caractéristiques de l'incident de nombreuses fois auparavant, mais la gouverne de direction n'avait pas subi de vibrations ni de flottement ni de rupture. Le dommage initial était donc fort probablement mineur, puis il s'est aggravé avec le temps.
    • Bien que les essais de cycle mécanique réalisés à l'occasion de la certification d'origine n'aient révélé aucune propagation de dommage, les essais de cycles sous vide effectués pendant l'enquête ont démontré qu'il était possible qu'un dommage initial se propage du fait de la différence de pression liée à l'altitude.
    • Les résultats des divers examens n'étayent pas la probabilité d'un impact par objet contondant. La majeure partie de la gouverne de direction n'ayant pu être récupérée et examinée, l'hypothèse d'un événement distinct n'a pas été écartée. L'enquête a révélé des indications suggérant un collage insuffisant au niveau du profilé en Z à l'intérieur de la partie avant inférieure du panneau latéral gauche, et les analyses indiquent que ce type de dommage peut se propager sous l'effet de charges sous vide.
    • Le revêtement intérieur n'est pas facile d'accès pour l'inspection, et aucun programme d'inspection visant le revêtement intérieur n'existait au moment de l'incident. Si le dommage s'était propagé à l'intérieur, il n'aurait pas été décelé par les inspections actuelles. Un collage insuffisant du profilé en Z se serait manifesté de lui-même au niveau du raccord du revêtement intérieur.
    • Au cours de la période qui a précédé l'incident et au moment de l'incident, l'avion n'effectuait aucune manoeuvre et ne traversait pas de turbulences. Par conséquent, la différence de pression entre l'intérieur du nid d'abeilles et l'air ambiant en altitude aurait représenté la charge la plus importante exercée sur la gouverne de direction. Cela laisse supposer que la différence de pression pourrait être à l'origine de l'événement.
    • L'enquête révèle que le premier événement de l'incident est une forte détonation. Les essais de propagation de dommage par cycle sous vide révèlent que, lorsque le dommage a eu atteint une taille critique, il a explosé et dégagé une brusque énergie qui s'est traduite par un violent bruit.
    • Les essais de cycle sous vide ont montré que la propagation explosive du dommage a été si violente qu'elle a endommagé l'intérieur de la chambre d'essai. En vol, un événement d'une telle violence pourrait bien endommager le panneau latéral opposé. L'analyse de la dynamique du vol indique qu'une force latérale importante s'est exercée au niveau de la gouverne de direction; il s'agit probablement du dommage explosif dans un panneau latéral qui s'est propagé vers l'autre panneau latéral.
    • La propagation explosive soudaine du dommage dans un panneau latéral et les dommages indirects éventuellement subis par le panneau opposé seraient à l'origine d'une diminution brusque de la rigidité de la gouverne de direction. L'analyse des vibrations aéroélastiques a montré qu'une telle perte de rigidité pouvait conduire à des vibrations dans les conditions de l'incident.
    • L'analyse des vibrations aéroélastiques dans le domaine temporel sur un décollement important a montré que peu de temps après l'apparition des vibrations, une force importante exercée vers l'arrière au niveau de la charnière 5 aurait dépassé la charge de rupture - ce qui confirme l'analyse de la dynamique du vol dont les résultats ont montré que, peu de temps après l'événement initial, la queue avait fait l'objet d'une traction importante vers l'arrière et vers le bas, ce qui correspond aussi aux dommages relevés sur la charnière 5.
    • L'analyse des vibrations aéroélastiques dans le domaine temporel sur un décollement important a également montré que c'est la charnière 6 qui aurait cédé ensuite, et que les charges appliquées sur les raccords de fixation principale arrière de la dérive auraient dépassé la résistance maximale à la rupture - ce qui confirme les dommages relevés sur la charnière 6 et au niveau des fixations de la dérive.
    2.5.7.2 Scénario de rupture le plus probable

    Quelque temps avant le vol de l'incident, un décollement ou une fracture de l'âme dans le plan s'est produit. Il se peut que ce dommage initial ait été causé par un événement distinct ou par un collage insuffisant au niveau du profilé en Z. Une indication de collage insuffisant a été relevée au niveau du profilé en Z le long de la partie interne avant inférieure du panneau latéral gauche. Ce dommage a ensuite progressé, vraisemblablement en raison des charges de cyclage à pression réduite associées au vol en conditions normales, sans être décelé jusqu'à ce qu'il atteigne une taille critique.

    Pendant le vol de l'incident, le dommage qui avait alors atteint une taille critique s'est rapidement propagé pour provoquer une forte explosion du revêtement. Cette séparation peut avoir détérioré le panneau latéral opposé et généré une force latérale importante sur l'empennage. La perte soudaine de rigidité en torsion résultante s'est traduite par un flottement (vibrations aéroélastiques) de la gouverne de direction. Environ une seconde plus tard, une force importante vers l'arrière et vers le bas, associée à la rupture des points d'articulation supérieurs, s'est exercée alors que la gouverne de direction se détachait. La séparation de la gouverne de direction a duré environ sept secondes, après quoi, seule une partie de gouverne d'une efficacité de 16 % est restée fixée à la dérive. Durant le reste du vol, d'autres parties de la gouverne de direction se sont détachées, et l'avion a atterri avec une gouverne de direction incomplète et dépourvue de toute efficacité aérodynamique.

    3.0 Faits établis

    3.1 Faits établis quant aux causes et aux facteurs contributifs

    1. Au décollage de Varadero, la gouverne de direction de l'avion présentait un décollement ou une fracture de l'âme dans le plan, causé soit par un événement distinct mais non par un impact par objet contondant, soit par un collage insuffisant au niveau du profilé en Z du panneau latéral gauche. Ce dommage s'est aggravé en vol, et l'avion a perdu sa gouverne de direction.
    2. Le programme d'inspection recommandé par le constructeur pour l'avion ne permettait pas de déceler tous les défauts au niveau de la gouverne de direction; il se peut que le dommage ait été présent sur la gouverne de direction de l'avion lors de nombreux vols avant le vol de l'incident.
    3. Les panneaux sandwich de ce modèle de gouverne de direction ne comportent aucune caractéristique de conception permettant d'interrompre mécaniquement la propagation d'un décollement ou d'une défaillance d'âme dans le plan, avant que la zone endommagée atteigne une taille critique (une telle caractéristique n'était pas spécifiquement exigée pour la certification).

    3.2 Faits établis quant aux risques

    1. L'avion était équipé d'un enregistreur de la parole dans le poste de pilotage (CVR) ayant une capacité d'enregistrement de 30 minutes. Du fait de son autonomie, le CVR n'a pas enregistré les événements associés à la perte de la gouverne de direction, ce qui a privé les enquêteurs de données essentielles concernant la défaillance de la gouverne de direction.
    2. Il n'y avait aucune procédure écrite sur la façon de désactiver les enregistreurs lorsque l'avion est au sol; de l'information précieuse pour une enquête peut être perdue si les données ne sont pas préservées.
    3. Les intervalles d'échantillonnage des accélérations latérales et longitudinales enregistrées par l'enregistreur numérique de données de vol (DFDR) n'ont pas permis d'enregistrer les conditions très dynamiques qui prévalaient au moment de l'incident; de ce fait, l'information enregistrée était incomplète.
    4. Le filtrage de la position de la gouverne de direction et la nécessité d'une analyse additionnelle ont compromis la précision et l'efficacité de l'enquête.
    5. Les membres d'équipage de conduite ne disposent pas de suffisamment de procédures écrites sur la technique de redressement en cas de roulis hollandais.
    6. Le fait de déclarer une situation d'urgence et de signaler clairement la nature d'un problème permet au contrôle de la circulation aérienne (ATC) d'assurer une meilleure coordination entre les unités, de prévoir les besoins de l'équipage et de mieux planifier la gestion du trafic.
    7. Les procédures et les pratiques qui ne favorisent pas l'échange d'information entre les membres d'équipage augmentent le risque de prendre des décisions basées sur de l'information incomplète ou inexacte, ce qui peut compromettre la sécurité des passagers et de l'équipage.

    3.3 Autres faits établis

    1. Lors de l'incident, l'équipage n'a reçu aucun message du moniteur électronique centralisé de bord (ECAM) en rapport avec le problème de contrôle de l'avion, et aucun voyant lumineux ni indication dans le poste de pilotage n'ont signalé un défaut de fonctionnement de l'avion.
    2. Après la perte de la gouverne de direction, l'avion ne risquait pas de perdre sa dérive en vol, que ce soit en raison de la perte de résistance statique ou de la perte de rigidité.

    4.0 Mesures de sécurité

    4.1 Mesures prises

    4.1.1 Mesures prises par le Bureau de la sécurité des transports du Canada

    4.1.1.1 Recommandations du BST - Programme d'inspection des gouvernes de direction en matériau composite d'Airbus

    La perte de la gouverne de direction de l'avion assurant le vol 961 d'Air Transat (TSC961) ainsi que les dommages relevés pendant les inspections de la flotte effectuées après l'incident donnent à penser que le programme actuel d'inspection des gouvernes de direction en composite d'Airbus ne permet peut être pas de déceler les défauts à temps. De plus, des essais préliminaires montrant que les décollements pouvaient progresser en raison de la différence de pression liée à l'altitude permettent de croire qu'une attention plus soutenue est nécessaire pour limiter les risques de défaillance structurale d'autres gouvernes de direction. La perte de la gouverne de direction d'un aéronef cause des problèmes de maîtrise en direction et peut occasionner la perte de la dérive.

    En conséquence, le 27 mars 2006, le Bureau a recommandé que :

    Le ministère des Transports du Canada, en collaboration avec les autres instances de réglementation concernées et l'industrie, élabore et mette en oeuvre en urgence un programme d'inspection qui permettra de faire une détection précoce et constante des dommages à la gouverne de direction des avions équipés d'une gouverne portant la référence A55471500.
    (A06-05, émise en mars 2006)
    Recommandation A06-05 du BST (émise en mars 2006)

    Transports Canada a répondu à la recommandation A06-05 du BST le 14 juin 2006. Il s'est dit d'accord avec l'avis du BST voulant que l'actuel programme d'inspection des A310-300 ne permet peut-être pas de déceler à temps les défauts des gouvernes de direction.

    Transports Canada a notamment indiqué que les mesures correctives suivantes seront prises :

    • Transports Canada enverra à Airbus et à la Direction Générale de l'Aviation Civile (DGAC) française une lettre décrivant en détail les résultats de l'inspection additionnelle d'un A310-300 immatriculé au Canada.
    • Transports Canada recommandera qu'une inspection détaillée visant à déceler tout blocage de la voie de drainage de la gouverne de direction soit ajoutée au programme d'inspection actuel, le but étant de s'assurer de la présence d'un bon drainage.
    • Transports Canada demandera qu'Airbus passe en revue le programme d'inspection actuel portant sur la dérive et la gouverne de direction des Airbus A300 et A310.
    • Comme un essai de percussion risque de ne pas être efficace pour déceler les petits endroits de délaminage ou de décollement des matériaux composites, Transports Canada travaille actuellement avec le Conseil national de recherches du Canada afin de déterminer des techniques d'inspection plus appropriées permettant de déceler les défaillances dans les matériaux composites.
    • Pour mieux déceler les défaillances des matériaux composites, Transports Canada coordonnera ses activités avec l'International Maintenance Review Board afin de revoir la logique utilisée dans l'élaboration des programmes de maintenance.

    Le BST a pris connaissance de la réponse de Transports Canada et estime qu'elle dénote une intention satisfaisante.

    Par ailleurs, le 27 mars 2006, le Bureau a recommandé que :

    L'Agence européenne de la sécurité aérienne, en collaboration avec les autres instances de réglementation concernées et l'industrie, élabore et mette en oeuvre en urgence un programme d'inspection qui permettra de faire une détection précoce et constante des dommages à la gouverne de direction des avions équipés d'une gouverne portant la référence A55471500.
    Recommandation A06-06 du BST (émise en mars 2006)

    Le 22 novembre 2006, l'Agence européenne de la sécurité aérienne (AESA) a indiqué qu'elle était d'accord avec la recommandation A06-06 du Bureau et que la consigne de navigabilité 2006-0066 publiée le 24 mars 2006 exigeant une inspection non récurrente obligatoire répondait de façon satisfaisante à la recommandation du Bureau.

    Toutefois, même si l'AESA est d'accord avec la recommandation du Bureau, la consigne de navigabilité 2006-0066 mentionnée dans sa réponse du 22 novembre 2006 ne prévoit pas un cycle d'inspections répétitives permettant de déceler des dommages de façon précoce et systématique, comme l'indiquait l'essentiel de la recommandation A06-06. Néanmoins, le BST a estimé que l'AESA était bien placée pour assumer le leadership au sein de l'industrie dans la promotion de l'élaboration et de l'intégration d'un programme d'inspection portant sur les matériaux composites. Dans cet esprit, un appel conférence a eu lieu le 20 décembre 2006.

    À la suite de l'appel conférence du BST, l'AESA a publié une autre réponse le 17 janvier 2007. Elle indiquait que tous les éléments qui pouvaient avoir causé la propagation du dommage faisaient toujours l'objet d'un examen. De plus, l'AESA a précisé que, au sein du processus de maintien de la navigabilité aérienne et en collaboration avec Airbus, elle poursuit ses efforts visant à déterminer les mesures correctives les plus appropriées. Par la suite, l'AESA envisagera de rendre ces mesures obligatoires, y compris la modification du programme de maintenance pour qu'il prévoie des inspections répétitives.

    La réponse du 17 janvier 2007 témoigne de l'engagement de l'AESA à poursuivre l'élaboration de mesures correctives qui pourraient comprendre la modification du programme de maintenance pour qu'il exige des inspections répétitives. Comme la réponse de l'AESA renferme une proposition de mesure qui, si elle est mise en oeuvre, réduira ou éliminera les risques associés à l'anomalie visée, le BST estime que la réponse à la recommandation A06-06 dénote une intention satisfaisante.

    4.1.1.2 Avis de sécurité du BST - Capacité d'enregistrement du CVR

    L'avion assurant le vol TSC961 était équipé d'un enregistreur de la parole dans le poste de pilotage (CVR) muni d'un ruban magnétique à boucle continue d'une durée de 30 minutes. Les événements associés à la perte de la gouverne de direction de l'avion ont été enregistrés par le CVR de l'avion environ 60 minutes avant l'atterrissage. Les conversations des membres de l'équipage et les bruits dans le poste de pilotage avant le début de l'enregistrement CVR auraient pu fournir des renseignements importants sur tout signe précurseur ou sur tout événement à l'origine de l'incident. Comme il s'avère nécessaire de disposer de plus longues périodes d'enregistrement sonore pour connaître les événements à l'origine des accidents d'aviation et puisqu'il y a sur le marché des CVR d'une capacité d'enregistrement de deux heures, le Bureau croit que ces enregistreurs devraient être rendus obligatoires par les organismes de réglementation partout dans le monde.

    En conséquence, le BST a envoyé un avis de sécurité à Transports Canada en date du 3 mars 2006 pour réitérer sa préoccupation face au fait qu'en 2005 certains appareils commerciaux n'étaient toujours pas équipés de CVR ayant une capacité d'enregistrement d'au moins 2 heures.

    4.1.1.3 Avis de sécurité du BST - Enregistrement des données filtrées sur le DFDR

    Avec le filtrage, la possibilité de faire la différence entre une excursion de la gouverne de direction et un phénomène de filtrage de données est restreinte. Dans le cas qui nous occupe, le filtrage des données brutes du capteur a nécessité une analyse complémentaire pour estimer l'historique probable des positions de la gouverne de direction du C-GPAT, ce qui a gêné l'enquête en termes de précision et de respect des délais. À la différence du 14 CFR (Code of Federal Regulations) des États-Unis, le Règlement de l'aviation canadien (RAC) ne contient aucune exigence concernant la conduite de tests de précision des paramètres en conditions statiques et dynamiques. Le RAC continue de faire référence aux spécifications de performances opérationnelles minimales (MOPS) précédentes visant les enregistreurs de vol (document ED55 d'EUROCAE) plutôt qu'au document ED112 actuel qui énonce des directives relatives au filtrage des données. L'avis de projet de réglementation (NPRM) de la Federal Aviation Administration (FAA), publié le 28 février 2005, portant sur la révision de la réglementation relative aux enregistreurs numériques de données de vol (DFDR) ne fait nullement mention du problème récurrent lié aux données filtrées.

    En conséquence, le BST a envoyé un avis de sécurité à Transports Canada en date du 3 mars 2006 pour lui faire part de sa préoccupation face au fait que le filtrage des données peut empêcher les enquêteurs de déterminer les positions exactes des gouvernes à partir des données enregistrées, notamment dans des conditions dynamiques.

    4.1.1.4 Avis de sécurité du BST - Faibles vitesses d'enregistrement du DFDR

    L'incident survenu à l'avion d'Air Transat le 6 mars 2005 montre qu'il est nécessaire de perfectionner les DFDR pour pouvoir établir plus efficacement la chronologie des événements, tant en termes de précision que de délais. À titre d'exemple, en raison de l'enregistrement à faible vitesse des données d'accélération, il n'a pas été possible de déduire de manière fiable que l'existence d'effets aéroélastiques constituait un mode de défaillance possible. Les données restreintes sur l'accélération latérale n'ont pas permis non plus de caractériser l'événement à l'origine de l'incident.

    En conséquence, le BST a envoyé un avis de sécurité à Transports Canada en date du 8 mars 2006 portant sur la possibilité de mener une étude sur les vitesses d'enregistrement des données DFDR pour assurer que toutes les données pertinentes sont disponibles pour analyser les événements dynamiques.

    4.1.1.5 Avis de sécurité du BST - Procédure de rétablissement en cas de roulis hollandais

    Lors de l'incident du 6 mars 2005, l'absence de directives suffisantes sur la technique de redressement de l'avion en cas de roulis hollandais a conduit l'équipage à embrayer le pilote automatique, ce qui a empiré les caractéristiques de vol. Même si l'embrayage du pilote automatique n'a pas aggravé la situation, dans d'autres circonstances, cela aurait pu provoquer un déséquilibre de l'avion.

    En conséquence, le BST a envoyé un avis de sécurité à Transports Canada en date du 8 mars 2006 pour lui suggérer de procéder, en collaboration avec l'industrie, la FAA, la DGAC et l'AESA, à la révision des procédures publiées pour assurer que les pilotes possèdent les connaissances nécessaires pour redresser l'aéronef en cas de roulis hollandais.

    4.1.2 Mesures prises par le National Transportation Safety Board

    À la suite d'une enquête sur un Airbus A300-600 exploité par FedEx, qui avait été endommagé au cours d'opérations de maintenance courantes le 27 novembre 2005, le National Transportation Safety Board (NTSB) des États-Unis a recommandé, en date du 24 mars 2006, que la FAA

    [Traduction]

    exige que tous les exploitants d'Airbus A-300 se conforment immédiatement (si possible avant tout autre vol) aux télex à tous les exploitants (AOT) A300-55A6042, A310-55A2043, A330-55A3036 et A340-55A403, en date du 2 mars 2006. Tout décollement qui se produit au niveau des revêtements de la gouverne de direction en présence d'une contamination par du liquide hydraulique doit être réparé, ou la gouverne de direction doit être remplacée le plus tôt possible, bien avant les 2500 vols spécifiés dans les AOT.
    Recommandation A06-27 du BST (émise en mars 2006)

    Le NTSB a également recommandé que la FAA

    [Traduction]

    définisse un intervalle d'inspection répétitif pour les gouvernes de direction construites avant la modification Airbus 8827 jusqu'à ce qu'une mesure définitive soit élaborée. L'intervalle doit se situer bien avant les 2500 vols.
    Recommandation A-06-28 du BST (émise en mars 2006)

    4.1.3 Mesures prises par le Bureau d'Enquêtes et d'Analyses pour la sécurité de l'aviation civile

    Le 10 mars 2006, le Bureau d'Enquêtes et d'Analyses pour la sécurité de l'aviation civile (BEA) de France a recommandé que l'AESA

    impose au plus tôt un programme d'inspections appropriées des gouvernes concernées (PN A55471500). (000153/BEA/D, émise en mars 2006)

    4.1.4 Mesures prises par Airbus

    4.1.4.1 Télex à tous les exploitants (AOT-1)

    À partir de l'information préliminaire recueillie dans le cadre de l'enquête du BST sur le présent incident, Airbus a publié un AOT en date du 17 mars 2005 demandant aux exploitants d'inspecter tous les avions équipés d'une gouverne de direction portant la référence A55471500. Cette inspection visuelle non récurrente accompagnée d'un essai de percussion visait 222 Airbus A310, 146 Airbus A300-600, 6 Airbus A330 et 34 Airbus A340, soit un total de 408 avions. De plus, les panneaux latéraux de la gouverne de direction de plus de 20 avions ont fait l'objet d'une mesure de la rigidité des stratifiés (test ELCH), un contrôle plus poussé. Comme le présent incident a attiré l'attention sur les gouvernes de direction, les exploitants font maintenant un examen plus minutieux des gouvernes de direction lors des opérations de maintenance. Ces diverses inspections ont permis de déceler des décollements, des dommages aux environs des points de levage et des fixations du bord arrière de la gouverne de direction, des charnières qui présentaient de la corrosion et de l'usure, des charnières grippées, ainsi que des charnières ayant trop de jeu et de l'infiltration d'eau.

    4.1.4.2 Télex à tous les exploitants (AOT-2)

    Le 2 mars 2006, le constructeur de l'avion a publié une seconde série d'AOT demandant aux exploitants d'inspecter tous les aéronefs dotés d'une gouverne de direction portant la référence A55471500. Ces AOT ont ensuite été rendus obligatoires par deux consignes de navigabilité publiées par l'AESA, qui représente l'État constructeur. L'objectif consistait à vérifier l'intégrité structurale de la gouverne de direction en procédant à une inspection non récurrente par essai de percussion des feuilles de surface intérieures des panneaux latéraux de la gouverne de direction, ainsi qu'à un contrôle des trous de vidange situés à la partie inférieure de la gouverne de direction et à une évacuation du liquide hydraulique piégé dans les surfaces extérieures. On a accédé à l'intérieur de la gouverne de direction en passant par les trous d'inspection disposés sur le longeron avant de la gouverne de direction. À noter que l'accès aux surfaces intérieures à partir des trous d'inspection est limité. Aucun décollement n'a été constaté.

    4.1.5 Mesures prises par Air Transat

    4.1.5.1 Situation anormale

    À partir de l'information préliminaire recueillie dans le cadre de la présente enquête, Air Transat a publié, le 10 novembre 2006, de nouvelles procédures en cas de situation anormale. Le texte ci-après a été ajouté au Manuel d'exploitation du personnel navigant commercial d'Air Transat :

    [...]

    Lors d'une situation anormale, vous devez rapporter au Directeur de vol aussitôt que possible et décrire l'événement tel que, mais sans se limiter à :

    • la présence d'odeur inhabituelle
    • la présence de bruit inhabituel
    • l'instabilité d'objets, de passagers ou membre d'équipage
    • des comportements inadéquats de passagers
    • une situation médicale

    Ne prenez jamais pour acquis que d'autres ont éprouvé les mêmes effets que vous ou sont entièrement conscients de l'événement. La communication est primordiale pour une évaluation appropriée de la situation et des mesures correctives adéquates. Si le Directeur de vol ne peut pas être rejoint et le moment est critique, le PNC [personnel navigant commercial] doit entrer en contact avec le PNT [personnel navigant technique] sans délai.

    4.1.5.2 Préservation des enregistrements

    Air Transat a publié en date du 16 mai 2006 une nouvelle liste de vérifications en cas d'accident ou d'incident, liste qui a été intégrée au manuel de l'équipage de conduite des A-310. Le document décrit la procédure à suivre pour déclencher les disjoncteurs pour préserver les données recueillies par le CVR et le DFDR. Cette nouvelle procédure d'utilisation normalisée (SOP) souligne également que la préservation des données enregistrées est cruciale pour le processus d'enquête qui fait suite à tout incident.

    Le présent rapport met un terme à l'enquête du Bureau de la sécurité des transports du Canada (BST) sur cet événement. Le Bureau a autorisé la publication du rapport le .

    5.0 Annexes

    Annexe A -Comparaison des données DAR et des données DFDR

    Nota : Ce document n'existe pas en français.

    Annexe B - Sigles et abréviations

    AESA
    Agence européenne de la sécurité aérienne
    AFRP
    plastique renforcé à la fibre aramide
    agl
    au-dessus du sol
    AOC
    certificat d'exploitation aérienne
    AOT
    télex à tous les exploitants
    ARINC
    Aeronautical Radio Incorporated
    asl
    au-dessus du niveau de la mer
    ATC
    contrôle de la circulation aérienne
    BEA
    Bureau d'Enquêtes et d'Analyses pour la sécurité de l'aviation civile (France)
    BST
    Bureau de la sécurité des transports du Canada
    CCP
    contrôle de compétence pilote
    CFRP
    plastique renforcé par fibres de carbone
    CG
    centre de gravité
    cm
    centimètre
    CVR
    enregistreur de la parole dans le poste de pilotage
    daN
    décanewton
    DAR
    enregistreur à accès direct
    DCB
    essai sur double éprouvette en porte-à-faux (double cantilever beam test)
    DFDR
    enregistreur numérique de données de vol
    DGAC
    Direction Générale de l'Aviation Civile (France)
    ECAM
    moniteur électronique centralisé de bord
    EDX
    spectroscopie des rayons X par dispersion d'énergie
    ELCH
    mesure de la rigidité des stratifiés (elasticity laminate checker)
    EUROCAE
    Organisation européenne pour l'équipement électronique de l'aviation civile
    FAA
    Federal Aviation Administration (États-Unis)
    FCC
    calculateur de commandes de vol
    FL
    niveau de vol
    FOD
    dommage par corps étranger
    g
    facteur de charge
    GFRP
    plastique renforcé à la fibre de verre
    HF
    haute fréquence
    HIRF
    champ de rayonnement à haute intensité
    Hz
    hertz
    IFR
    règles de vol aux instruments
    ILS
    système d'atterrissage aux instruments
    KCAS
    vitesse corrigée en noeuds
    kg
    kilogramme
    KIAS
    vitesse indiquée en noeuds
    kN
    kilonewton
    L
    piste gauche
    m
    mètre
    mm
    millimètre
    MOPS
    spécifications de performances opérationnelles minimales
    MRTT
    avion de transport et de ravitaillement multi-rôle
    N
    newton
    nm
    mille marin
    NPRM
    avis de projet de réglementation (Notice of Proposed Rule Making)
    NTSB
    National Transportation Safety Board (États-Unis)
    OMA
    organisme de maintenance agréé
    PN
    référence
    QRH
    index des procédures (quick reference handbook)
    R
    piste droite
    RAC
    Règlement de l'aviation canadien
    sec
    seconde
    SGQS
    système de gestion de la qualité et de la sécurité
    SRM
    manuel de réparations structurales (structural repair manual)
    Tg
    température de transition vitreuse
    TSC961
    vol 961 d'Air Transat
    UTC
    temps universel coordonné
    XPS
    spectroscopie des photoélectrons X
    °
    degré
    °C
    degré Celsius

    Appendix B - Glossary

    AFD
    assistant flight director
    AFRP
    aramid fibre-reinforced plastic
    agl
    above ground level
    AIM
    Aeronautical Information Manual
    AMM
    aircraft maintenance manual
    AMO
    approved maintenance organization
    AOC
    air operating certificate
    AOT
    all operators telex
    APYA
    autopilot yaw actuator
    ARINC
    aeronautical radio incorporated
    asl
    above sea level
    ASTM
    American Society for Testing and Materials
    ATC
    air traffic control
    ATPL
    airline transport pilot licence
    CARs
    Canadian Aviation Regulations
    CFRP
    carbon fibre-reinforced plastic
    CG
    centre of gravity
    cm
    centimetre(s)
    cm2
    square centimetre(s)
    CVR
    cockpit voice recorder
    daN
    decanewton(s)
    DAR
    direct access recorder
    DCB
    double cantilever beam
    DFDR
    digital flight data recorder
    DGAC
    Direction Générale de l'Aviation Civile (France)
    DVI
    detailed visual inspection
    EASA
    European Aviation Safety Agency
    ECAM
    electronic centralized aircraft monitor
    EDX
    energy dispersion X-ray spectroscopy
    ELCH
    elasticity laminate checker
    EUROCAE
    European Organisation for Civil Aviation Equipment
    FA
    flight attendant
    FAA
    Federal Aviation Administration
    FCC
    flight control computer
    FD
    flight director
    FL
    flight level
    FOD
    foreign object damage
    g
    load factor
    GFRP
    glass fibre-reinforced plastic
    GVI
    general visual inspection
    GVI (G)
    general visual inspection from the ground of empennage
    GVI (A)
    general visual inspection at arm's length of empennage
    GVT
    ground vibration test
    HIRF
    high-intensity radiated fields
    Hz
    hertz
    IR
    infrared
    KCAS
    knot(s) calibrated airspeed
    KFLL
    Fort Lauderdale/Hollywood International Airport
    kg
    kilogram(s)
    KIAS
    knot(s) indicated airspeed
    KMIA
    Miami International Airport
    kN
    kilonewton(s)
    LPP
    lightning protection plate
    m
    metre(s)
    m2
    square metre(s)
    m3
    cubic metre(s)
    mm
    millimetre(s)
    mm2
    square millimetre(s)
    MOPS
    minimum operational performance specifications
    MRTT
    multi-role tanker transport
    MSN
    manufacturer's serial number
    MUVR
    Varadero/Juan Gualberto Gómez International Airport
    N
    newton(s)
    NDI
    non-destructive inspection
    nm
    nautical mile(s)
    NTSB
    National Transportation Safety Board
    PPC
    pilot proficiency check
    QRH
    quick reference handbook
    QSMS
    quality safety management system
    RTL
    rudder travel limiter
    SB
    Service Bulletin
    SRM
    structural repair manual
    TC
    Transport Canada
    Tg
    glass transition temperature
    TSB
    Transportation Safety Board of Canada
    TSC921
    Air Transat Flight 921
    UFDR
    universal flight data recorder
    UTC
    Coordinated Universal Time
    VTP
    vertical tail plane
    XPS
    X-ray photoelectron spectroscopy
    YD
    yaw damper
    °
    degree(s)
    °C
    degree(s) Celsius